Extension Soeknad Enebolig

Tilbygg til enebolig i Svingenveien 141, Elverum

📍 Svingenvegen 139 , 2406 ELVERUM

Nøkkelinfo

Sakstype
Tilbygg
Bygningstype
Enebolig
Bruksareal
170 m²
Boenheter
1
Kommune
Elverum
Fylke
Innlandet
Gnr / Bnr
14 / 161
Saksnummer
2026/2125
Fase
Søknad

Om byggesaken

Ny tilbygg på ca. 50 m² til eksisterende enebolig i Svingenveien 141. Tilbygget er i én etasje med trekledning og saltak, og utvider boligens areal med blant annet hall/kjøkken, vaskerom og teknisk rom. Eksisterende bolig på eiendommen oppgraderes og skal erstatte en gammel bolig som rives. Bygget har flere vinduer og dører i tre, og det planlegges sammenslåing av matrikkelenheter for å tilpasse eiendommen. Fasader er i tre med saltak, og det finnes pipe og garasjeport på eksisterende bolig. Prosjektet inkluderer også oppgradering av utearealer og tilpasning til gjeldende krav for helårsbolig.

Produkter og materialer

Dører Ytterdører i tre

🧱 Tre

Antall: 7

Ytterdører i tre på fasader, inkludert dører til stue, gang, bod, vaskerom, teknisk rom og inngangspartier

Ytterdører i tre til tilbygg og eksisterende bolig

Grunnarbeid Fundamentering og grunnarbeid

Grunnarbeid for nytt tilbygg på ca. 50 m²

Fundamentering og grunnarbeid for tilbygg

Maling Innvendig og utvendig maling

Maling av treflater utvendig og innvendig i tilbygg og eksisterende bolig

Maling for beskyttelse og estetikk

Vinduer Fasadevindu i tre

🧱 Tre

Antall: 15

Vinduer i tre på fasader, inkludert 1 vindu i hall/kjøkken, 3 i vinterhage, 1 i vaskerom, 1 i bod, 5 på sørfasade, 5 på østfasade, 3 på nordfasade

Fasadevinduer i tre til tilbygg og eksisterende bolig

Fasade Trekledning

🧱 Tre

Trekledning på tilbygg og eksisterende bolig

Fasade i tre på nytt tilbygg og eksisterende bolig

Betong Betongfundament og plate

🧱 Betong

Betongfundament og plate for tilbygg

Betongfundament og plate for nytt tilbygg

VVS Sanitærinstallasjoner

Bad, vaskerom og teknisk rom med sanitærinstallasjoner

VVS-installasjoner for bad, vaskerom og teknisk rom i tilbygg

Tak Saltak

🧱 Takstein eller lignende (ikke spesifisert)

Saltak på tilbygg og eksisterende bolig

Saltak på tilbygg og eksisterende bolig

Gulv Innvendige gulvflater

Gulv i stue, gang, soverom, bad, vaskerom og teknisk rom

Innvendige gulvflater i tilbygg og eksisterende bolig

Isolasjon Isolasjon for vegger og tak

Isolasjon i vegger og tak for nytt tilbygg og oppgradering av eksisterende bolig

Isolasjon for energieffektivitet og komfort

Trapper Innvendig trapp

Antall: 1

En innvendig trapp i eksisterende bolig

Innvendig trapp i eneboligen

Tømrer Tømrerarbeid for tilbygg

🧱 Tre

Tømrerarbeid for reisverk, takstoler og innvendige konstruksjoner

Tømrerarbeid i tilbygg og oppgradering av eksisterende bolig

Elektro Elektrisk anlegg

Elektrisk anlegg for nytt tilbygg og oppgradering av eksisterende bolig

Elektrisk installasjon i tilbygg og eksisterende bolig

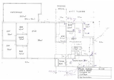
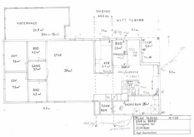
Plantegning

Enebolig 120.5 m²

Etasje 1 120.5 m²

Rom Areal Vinduer Dører
Stue 101 37.4 m² 1 1
Gang 102 3.7 m² 0 2
Sov 103 7.6 m² 1 1
Sov 104 7.6 m² 1 1
Bad 105 4.2 m² 0 1
Bod 106 4.2 m² 0 1
Vinterhage 107 22.9 m² 3 1
KTR 108 5.4 m² 1 1
Bod 109 2.2 m² 1 1
Hall/Kjøkken 110 20.3 m² 1 1
WC 111 1.5 m² 0 1
Vaskerom 112 8.0 m² 1 1
Tekn Rom 113 0.0 m² 0 1
Terr 114 5.2 m² 1 0

Eksisterende bolig 44.1 m²

Etasje 1 44.1 m²

Rom Areal Vinduer Dører
Gang GANG 1.9 m² 0 1
Bod BOD 8.0 m² 0 1
Soverom SOV 34.2 m² 0 1

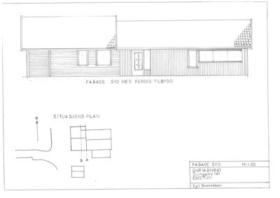
Fasader

Enebolig

Vest
Materiale
Tre
Taktype
Saltak
Vinduer
1
Dører
2
Synlige etasjer
1
Øst
Materiale
Tre
Taktype
Saltak
Vinduer
5
Dører
0
Synlige etasjer
1
Nord
Materiale
Tre
Taktype
Saltak
Vinduer
3
Dører
1
Synlige etasjer
1
Sør
Materiale
Tre
Taktype
Saltak
Høyde
2.5 m
Mønehøyde
2.5 m
Vinduer
5
Dører
1
Synlige etasjer
1

Nytt tilbygg

Nord
Materiale
Tre
Vinduer
0
Dører
0
Synlige etasjer
1

Hendelser

23.04.2026 Nabovarsel - Svingenveien 141 - gbnr 14/161
23.04.2026 Gbnr 14/161 - Svingenveien 141 - Byggesøknad - tilbygg bolig