Extension UnderBehandling Enebolig

Tilbygg, fasadeendring og bruksendring på enebolig i Teppemyra 2, Godøya

📍 Teppemyra 2 , 6055 GODØYA

Nøkkelinfo

Sakstype
Tilbygg
Bygningstype
Enebolig
Bruksareal
187 m²
Boenheter
2
Kommune
Giske
Fylke
Møre og Romsdal
Gnr / Bnr
124 / 163
Saksnummer
2025/3673
Fase
Under behandling

Om byggesaken

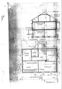
Prosjektet omfatter oppgradering og tilbygg til en eksisterende enebolig med sekundærleilighet på adressen Teppemyra 2, Godøya. Tilbygget er på ca. 118 m² BYA i én etasje med moderne stil og flatt tak, som bryter med den eksisterende saltakarkitekturen, men med samme type kledning for helhetlig uttrykk. Det planlegges bruksendring i kjeller fra tilleggsdel til hoveddel med nye rom som soverom, bad og kjøkken/stue, samt endring av bæring og nye trapper. Fasadeendringer inkluderer utskifting og endring av vinduer, større vinduer i kjeller og hovedetasje, samt nye skråvinduer i loftsark. Riving av deler av eksisterende tilbygg inngår også. Bygget har saltak med tegl, trepanel på fasader, og pipe. Arealet etter tilbygg blir ca. 186,9 m² BRA, med utnyttelse på ca. 34 % BYA inklusive parkeringsplass. Tiltaket ligger i gul støysone ved fylkesvei og krever lydisolerte vinduer. Geoteknisk vurdering konkluderer med tilfredsstillende områdestabilitet. Det er søkt og gitt dispensasjon for avvik fra byggegrenser mot fylkes- og kommunal vei. Prosjektet er i fase under behandling med rammetillatelse søkt.

Produkter og materialer

Maling Utvendig maling

Maling av trepanel på fasader

Overflatebehandling av fasade

Fasade Trepanel kledning

🧱 Tre

Samme type kledning på eksisterende og tilbygg for helhetlig uttrykk

Kledning for eksisterende og nytt tilbygg

Trapper Innvendig trapp ny plassering

Antall: 1

Eksisterende trapper fjernes, ny trapp settes inn i annen posisjon

Trapp for endring av bæring og planløsning

Dører Ytterdører og innvendige dører

Antall: 10

Nye dører i tilbygg og endret planløsning

Dører for tilbygg og bruksendring

Betong Ringmur og fundamentering

Ringmur og fundamentering tilpasset tilbygg og eksisterende konstruksjoner

Fundamentering for tilbygg

Gulv Innvendige gulv i tilbygg og oppgraderte rom

Gulv i nye og endrede rom, materialvalg ikke spesifisert

Innvendige gulv

Isolasjon Lydisolasjon i vinduer

Lydisolerte vinduer i tilbygget pga. gul støysone

Isolasjon for lydreduksjon

Rekkverk Eventuelle rekkverk ved trapper og terreng

Rekkverk iht. forskrifter ved trapper og utvendige avsatser

Sikkerhetsrekkverk

Terrasse Uteareal og parkeringsplass

Parkeringsplass på terreng, uteoppholdsareal minst 100 m² MUA per boenhet

Uteareal og parkering

Elektro Elektrisk infrastruktur for lading

Parkeringsplass klargjøres for elbil-ladeinfrastruktur

Elektroarbeid for parkeringsplass

Ventilasjon Ventilasjon i tilbygg og oppgraderte rom

Ventilasjon må tilpasses nye rom og våtrom

Ventilasjonssystem

Vinduer Blandet størrelse og type, inkludert skråvinduer og takvinduer

Antall: 20

Lydisolerte vinduer i tilbygget pga. gul støysone, nye vinduer i kjeller, hovedetasje og loft, inkludert skråvinduer i ark

Vinduer for fasadeendring og tilbygg

Grunnarbeid Utgraving og sikring

Utgraving må sikre at eksisterende konstruksjoner ikke mister bæreevne, hensyn til VA-ledninger og støyskjerm

Grunnarbeid for tilbygg og oppgradering

Tak Saltak og flatt tak

🧱 Tegl takstein på saltak, flatt tak på tilbygg

Eksisterende saltak med tegl, tilbygg med moderne flatt tak

Taktekking for eksisterende og nytt tilbygg

VVS Sanitær og våtrom

Endring av våtrom i kjeller, etablering av bad, uavhengig kontroll ikke påkrevd for bruksendring

VVS-installasjoner for nye bad og våtrom

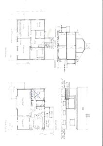
Plantegning

Enebolig 38.4 m²

Etasje 0 38.4 m²

Rom Areal Vinduer Dører
Kjeller 001 18.0 m² 0 1
Hobbyrom 002 18.0 m² 0 1
Vaskerom 003 4.2 m² 0 1
Gang 004 2.4 m² 0 2
Matbod 005 3.6 m² 0 1
Div. lager 006 2.4 m² 0 1
Brensel 007 1.2 m² 0 1
Hyller 008 0.6 m² 0 0

Etasje 1 0.0 m²

Rom Areal Vinduer Dører
Stue 101 32.0 m² 1 1
Kjøkken 102 15.0 m² 1 1
Bad 103 0.0 m² 0 1
Gang 104 0.0 m² 0 0
Trapp 105 0.0 m² 0 0
Gang 106 5.0 m² 0 0
Sovev. 3 107 0.0 m² 0 0
Sovev. 4 108 0.0 m² 0 0

Etasje 2 0.0 m²

Rom Areal Vinduer Dører
Soverom 101 9.0 m² 1 1
Soverom 102 14.0 m² 1 1
Bad 103 0.0 m² 0 1
Gang 104 0.0 m² 1 0
Soverom 201 21.0 m² 1 1
Soverom 202 22.0 m² 1 1
Bad 203 0.0 m² 0 0
Gang 204 0.0 m² 0 0

Fasader

Enebolig

Nord
Materiale
Tre
Taktype
Saltak
Takmat.
Tegl
Høyde
6.2 m
Mønehøyde
8.5 m
Vinduer
2
Dører
1
Synlige etasjer
2
Sør
Materiale
Tre
Taktype
Saltak
Takmat.
Tegl
Høyde
6.2 m
Mønehøyde
8.5 m
Vinduer
2
Dører
1
Synlige etasjer
2
Vest
Materiale
Tre
Taktype
Saltak
Takmat.
Tegl
Høyde
6.2 m
Mønehøyde
8.5 m
Vinduer
2
Dører
1
Synlige etasjer
2
Øst
Materiale
Tre
Taktype
Saltak
Takmat.
Tegl
Høyde
6.2 m
Mønehøyde
8.5 m
Vinduer
2
Dører
1
Synlige etasjer
2

Hendelser

20.04.2026 Gbnr 124/163 - Teppemyra 2 - endring av bygg - Førebels tilbakemelding
16.04.2026 Gbnr 124/163 - Teppemyra 2 - Etterspør status arkivsak
21.01.2026 Gbnr 124/163 - Teppemyra 2 - fv 5950 - dispensasjon frå byggegrense etter veglova for tilbygg
21.01.2026 Gbnr 124/163 - Teppemyra 2 - Høringssvar - Giske kommune - oppføring av tilbygg til bustad - dispensasjon frå kommuneplan
09.12.2025 Gbnr 124/163 - Teppemyra 2 - Tilbygg - Søknad om dispensasjon - Sender sak til uttale
09.12.2025 Gbnr 124/163 - Teppemyra 2 - tilbygg til bustad - uttale - dispensasjon
24.10.2025 Gbnr 124/163 - Teppemyra 2 - endring av bygg - fasade - bruksendring - søknad om rammetillatelse
07.07.2025 Gbnr 124/163 - fv 5950 - merknad til nabovarsel
24.06.2025 Gbnr 124/163 - Teppemyra 2 - endring av bygg - fasade - bruksendring - nabovarsel