Extension Rammetillatelse Enebolig

Tilbygg, riving og fasadeendring på enebolig i Thore Bjerkes veg 23

📍 Thore Bjerkes veg 23 , 2380 BRUMUNDDAL

Nøkkelinfo

Sakstype
Tilbygg
Bygningstype
Enebolig
Bruksareal
387 m²
Boenheter
1
Kommune
Ringsaker
Fylke
Innlandet
Gnr / Bnr
683 / 28
Saksnummer
26/6186
Fase
Rammetillatelse

Om byggesaken

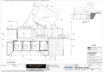
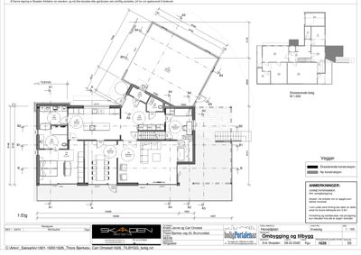
Prosjektet omfatter riving av eksisterende tilbygg og garasje på til sammen 55 m² BRA, samt oppføring av nye tilbygg med totalt 127 m² BRA på en enebolig i Thore Bjerkes veg 23, Brumunddal. Tilbygget inkluderer ny garasje med inngangsparti, utvidelse mot nord med nytt soverom og bad, samt en ny balkong mot vest i hovedplan som delvis underbygges med boder. I tillegg forlenges valmtaket for å overbygge verandaen mot sør. Eksisterende bolig har to etasjer med flere rom, og tilbyggene vil modernisere fasaden og øke boligens areal. Bygget har saltak og murfasade, og tiltaket inkluderer også tekniske oppgraderinger som balansert ventilasjon og radonreduserende tiltak i tilbygget.

Produkter og materialer

Maling Utvendig og innvendig maling

🧱 Maling og beis

Overflatebehandling av fasade og innvendige vegger i tilbygg

Maling for estetisk og beskyttende overflate

Bad Nytt bad i tilbygg

🧱 Sanitærutstyr, fliser, membran

Antall: 1

Bad med våtromsmembran og sanitærutstyr i tilbygget mot nord

Nytt bad med moderne standard i tilbygg

Vinduer Fasadevindu og balkongdør

🧱 3-lags energiglass

Antall: 10

Nye vinduer i tilbygget og balkongdør i hovedplan mot vest

Energieffektive vinduer som gir godt lysinnslipp og utsyn uten innsyn fra naboer

Tilbygg Nytt tilbygg med garasje og boligrom

🧱 Mur, bindingsverk, isolasjon, saltak

Nye tilbygg med totalt 127 m² BRA, inkludert garasje, soverom, bad, balkong og overbygd veranda

Oppføring av nye tilbygg som utvider boligen med moderne fasade og funksjoner

Isolasjon Yttervegger og tak

🧱 Isolasjon i henhold til TEK17 krav, med dispensasjon for enkelte krav

Isolasjon i yttervegger og tak, med unntak for radonsperre i eksisterende bygg

Isolasjon for energieffektivitet og komfort i nytt tilbygg og fasadeendring

Ventilasjon Balansert ventilasjonssystem

Montering av balansert ventilasjon i tilbygget

Ventilasjonssystem for godt inneklima og energieffektiv drift

Riving Riving av tilbygg og garasje

Riving av eksisterende tilbygg og garasje med totalt 55 m² BRA

Fjerning av eksisterende tilbygg og garasje mot øst for å gi plass til nytt tilbygg

Tak Saltak med valmtak

🧱 Takstein, isolasjon

Forlenget valmtak over veranda, saltak på nytt tilbygg

Takløsning som matcher eksisterende bolig med moderne isolasjon og taktekking

Grunnarbeid Plate på mark

🧱 Betong, isolasjon

Ny plate på mark som erstatning for kjelleretasjen i tilbygget mot øst

Fundamentering av nytt tilbygg med plate på mark løsning

Dører Ytterdører og balkongdør

🧱 Isolert, med glassfelt

Antall: 3

Ytterdører til inngangsparti og boder, samt balkongdør

Isolerte dører tilpasset ny fasade og funksjon

Elektro Elektrisk installasjon

Elektriske installasjoner i nytt tilbygg og oppgraderinger i eksisterende bygg

El-installasjon for belysning, strøm og sikkerhet

Gulv Innvendige gulv i tilbygg

🧱 Parkett, fliser

Gulvbelegg i nye rom, inkludert boder og gangarealer

Innvendige gulv med parkett og fliser tilpasset romfunksjon

Tømrer Bindingsverk og konstruksjon

🧱 Trevirke, stålbeslag

Konstruksjon av tilbygg med bindingsverk og bærende elementer

Tømrerarbeid for oppføring av tilbygg og fasadeendring

Fasade Modernisering og fasadeendring

🧱 Murfasade, valmtak

Endring av fasade med ny balkong og forlenget valmtak over veranda

Oppgradering og modernisering av boligens fasade og takløsning

Fasader

Enebolig

Ukjent
Materiale
Mur
Taktype
Saltak
Vinduer
10
Dører
3
Balkonger
1
Synlige etasjer
2

Eksisterende bolig

Ukjent
Taktype
Saltak
Vinduer
4
Dører
1
Synlige etasjer
1

Hendelser

17.04.2026 Rammetillatelse for fasadeendring, riving av deler av bolig og oppføring av tilbygg - Gbnr. 683/28, Thore Bjerkes veg 23, Brumunddal
27.03.2026 Søknad om tillatelse - Riving av deler av bolig, tilbygg og fasadeendring, Gbnr 683/28, Thore Bjerkes veg 23, Brumunddal