Extension Soeknad Enebolig

Tilbygg, fasadeendring og bruksendring på enebolig i Thornegata 51

📍 Thornegata 51 , 3015 DRAMMEN

Nøkkelinfo

Sakstype
Tilbygg
Bygningstype
Enebolig
Bruksareal
18 m²
Boenheter
1
Kommune
Drammen
Fylke
Buskerud
Gnr / Bnr
113 / 522
Saksnummer
26/09967
Fase
Søknad

Om byggesaken

Ny tilbygg på 18 m² med takoverbygg over terrasse i nordvestre hjørne av eneboligen i Thornegata 51, inkludert oppbevaringsareal under terrassen. Fasadeendringer på østfasaden med nye dører og endret vindusplassering. Bruksendring av areal i hovedbygget fra frisørsalong tilbake til hybel/soverom. I tillegg er det etablert bod med terrasse over i nordøst og bod under eksisterende balkong i sørvest. Bygningen er en trebygget enebolig med saltak og valmtak, og tiltaket innebærer også dispensasjoner for avstand til nabogrense og vei. Prosjektet omfatter eksisterende og nye bygningsdeler som påvirker fasader, terrasser og bruk av rom.

Arbeidsomfang

- Takoverbygg for terrasse i eiendommens nordvestre hjørne samt oppbevaringsareal under del av terrassen. - Bod i nordøstre hjørne med terrasse oppå boden. - Bod under eksisterende balkong i sørvest. - Bruksendring fra frisør til hybel/soverom. - Fasadeendring på fasade øst med bl.a. nye dører.

Produkter og materialer

Grunnarbeid Fundamentering og underbygg

Oppbevaringsareal under terrasse med lav takhøyde

Grunnarbeid for oppbevaringsareal under terrasse og bod under balkong

Bruksendring Rombruk

Bruksendring fra frisørsalong til hybel/soverom

Endring av rombruk i hovedbygget fra næringsformål til boligformål

Tømrer Tilbygg og terrasse

🧱 Tre

Tilbygg på 18 m², terrasse med takoverbygg og bodkonstruksjoner

Tømrerarbeid for tilbygg, terrasse med takoverbygg og bodkonstruksjoner

Vinduer Fasadevindu

🧱 Tre

Antall: 3

Nye vinduer på østfasade og øvrige fasader i henhold til tegninger

Vinduer i tre på fasader, inkludert endret plassering på østfasade

Tak Takoverbygg terrasse

🧱 Ikke spesifisert

Antall: 1

Takoverbygg over terrasse i nordvestre hjørne

Takoverbygg over terrasse med tilhørende oppbevaringsareal under

Fasade Fasadeendring øst

🧱 Tre

Nye dører og endret plassering av vindu på østfasade

Fasadeendringer med nye dører og justering av vindusplassering på østfasade

Bygningskomponenter Bod med terrasse

🧱 Tre

Antall: 2

Bod med terrasse over i nordøst og bod under eksisterende balkong i sørvest

Oppføring av bod med terrasse over og bod under balkong

Dører Ytterdører

🧱 Tre

Antall: 2

Nye ytterdører på østfasade

Ytterdører i tre på østfasade som del av fasadeendring

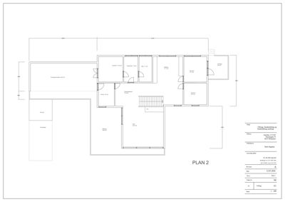
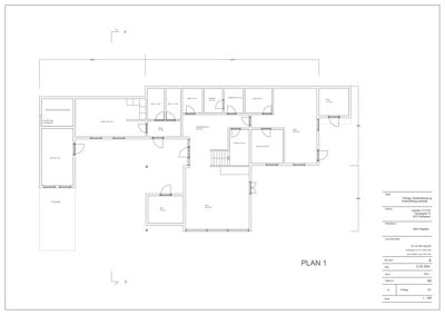
Plantegning

Enebolig 605.6 m²

Etasje 1 239.0 m²

Rom Areal Vinduer Dører
Oppbevaring 101 16.2 m² 0 1
Hybel 102 23.9 m² 1 1
Gang 103 4.7 m² 0 2
Bad 104 4.7 m² 0 1
Bod 105 4.1 m² 0 1
Bad 106 4.4 m² 0 1
Badstue 107 4.1 m² 0 1
Vaskerom 108 4.2 m² 0 1
Bad 109 6.0 m² 0 1
Gang/trapperom 110 25.0 m² 0 3
Fyrrom 111 6.3 m² 0 1
Soverom 112 9.6 m² 1 1
Stue 113 28.2 m² 2 1
Bod 114 7.3 m² 0 1
Stue 115 34.8 m² 2 1
Bod 116 8.7 m² 0 1

Etasje 0 157.8 m²

Rom Areal Vinduer Dører
Carport 001 0.0 m² 0 0
Bod 002 0.0 m² 0 0
Hybel 003 23.0 m² 0 1
Teknisk rom 004 0.0 m² 0 1
Gard 005 15.0 m² 0 1
Toalett 006 0.0 m² 0 1
Bod 007 0.0 m² 0 1
Dusj 008 0.0 m² 0 1
Gang 009 0.0 m² 0 0
Fyrrom 010 0.0 m² 0 1
Peisestue 011 37.0 m² 0 1
Barn 012 10.0 m² 0 1
Barn 013 16.5 m² 0 1
Badstue 014 0.0 m² 0 1
Bad 015 0.0 m² 0 1
Kjøll/Frys 016 0.0 m² 0 1
Mat 017 0.0 m² 0 1

Etasje 2 208.8 m²

Rom Areal Vinduer Dører
Soverom 201 13.5 m² 1 1
Garderobe 202 7.9 m² 0 1
Bad 203 7.1 m² 0 1
Kjøkken 204 17.1 m² 1 1
Soverom 205 12.7 m² 1 1
Soverom 206 10.9 m² 1 1
Gang/trapperom 207 31.8 m² 0 3
Kontor 208 8.0 m² 1 1
Stue 209 35.4 m² 1 1
Balkong 210 48.8 m² 0 1
Terrasse 211 9.9 m² 0 1

Fasader

Enebolig

Øst
Materiale
Tre
Taktype
Saltak
Vinduer
3
Dører
2
Balkonger
1
Synlige etasjer
2
Sør
Materiale
Tre
Taktype
Saltak
Høyde
6.5 m
Mønehøyde
8.2 m
Vinduer
6
Dører
1
Balkonger
1
Synlige etasjer
2
Vest
Materiale
Tre
Taktype
Saltak
Høyde
6.5 m
Mønehøyde
8.2 m
Vinduer
4
Dører
1
Balkonger
1
Synlige etasjer
2
Nord
Materiale
Tre
Taktype
Flatt tak
Vinduer
5
Dører
2
Balkonger
1
Synlige etasjer
1
Ukjent
Materiale
Tre
Taktype
Valmtak
Vinduer
3
Dører
1
Synlige etasjer
1

Hendelser

07.04.2026 Thornegata 51 Søknad om rammetillatelse 113/522 rammetillatelse