Extension Soeknad Enebolig

Tilbygg, fasadeendring og bruksendring i enebolig, Tjærildveien 12

📍 Tjærildveien 12 , 3222 SANDEFJORD

Nøkkelinfo

Sakstype
Tilbygg
Bygningstype
Enebolig
Bruksareal
196 m²
Boenheter
1
Kommune
Sandefjord
Fylke
Vestfold
Gnr / Bnr
113 / 263
Saksnummer
2026/11236
Fase
Søknad

Om byggesaken

Prosjektet omfatter et tilbygg på 7 m² som utvider eksisterende entre på vestfasaden, samt en terrasse på 67,4 m² som strekker seg langs sydveggen og delvis over øst- og vestveggen. Det gjøres fasadeendringer som inkluderer fjerning og endring av vinduer, flytting av terrassedør, og åpning mellom stue og kjøkken i 2. etasje for å skape en åpen løsning. Garasjen bygges om til to soverom, og eksisterende bod ombygges til bad/vaskerom. Bygget har saltak og trekledning, med en total bygningsflate på ca. 166,6 m² inkludert terrasse og parkeringsareal. Det installeres ny stålpipe, energieffektive vinduer, varmekabler i flislagte rom og elektriske ovner for oppvarming. Grunnforholdene er vurdert som stabile uten behov for ekstra tiltak.

Produkter og materialer

Pipe Stålpipe

🧱 Stål

Antall: 1

Ny stålpipe installeres i 2. etasje

Stålpipe for oppvarming

Tak Saltak

🧱 Tre og taktekking

Eksisterende saltak beholdes, tilbygg tilpasses saltak

Saltak på eksisterende bygg og tilbygg

Terrasse Terrasse i tre

🧱 Tre

Terrasse på 67,4 m² langs sydvegg og delvis over øst- og vestvegg

Stor terrasse i tre med tilhørende konstruksjon

Fasade Trekledning

🧱 Tre

Fasadeendringer på alle sider med trekledning, inkludert fjerning og endring av vinduer og dører

Trekledning til fasadeendringer og tilbygg

Elektro Elektriske ovner

Elektriske ovner for oppvarming i bolig

Elektriske ovner som oppvarming

Dører Terrassedør og ytterdører

Antall: 5

Flytting av terrassedør, nye dører i tilbygg og fasadeendringer

Dører til terrasse, tilbygg og fasadeendringer

Tømrer Tømrerarbeid

Tømrerarbeid utføres av Byggfirma Jan Kristoffersen AS

Tømrerarbeid for tilbygg, terrasse og ombygging

Vinduer Energieffektive vinduer

Antall: 14

Nye og byttede vinduer blir energieffektive vinduer

Vinduer i fasade og tilbygg, inkludert endringer i størrelse og plassering

Mur Murerarbeid

Murerarbeid utføres av Byggfirma Jan Kristoffersen AS

Murerarbeid i forbindelse med tilbygg og ombygging

Trapper Innvendig trapp

Antall: 1

Eksisterende trapp i bolig beholdes

Innvendig trapp i enebolig

Grunnarbeid Fundamentering og grunnarbeid

Grunnarbeid for tilbygg og terrasse, vurdert som K0-tiltak uten forverring av grunnforhold

Grunnarbeid og fundamentering for tilbygg og terrasse

Gulv Flislagte gulv med varmekabler

🧱 Fliser

Varmekabler i flislagte rom (bad/vaskerom)

Flislagte gulv med elektriske varmekabler

VVS Bad/vaskerom installasjon

Ombygging av bod til bad/vaskerom med nødvendig VVS-installasjon

VVS-installasjon for nytt bad/vaskerom

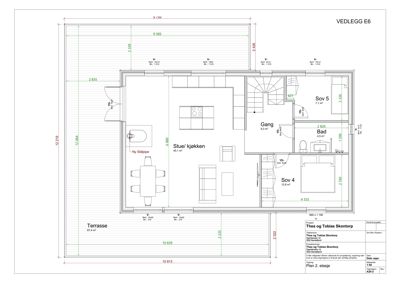
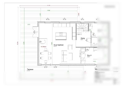
Plantegning

Enebolig 196.5 m²

Etasje 2 196.5 m²

Rom Areal Vinduer Dører
Stue/kjøkken 201 45.1 m² 4 1
Gang 202 9.3 m² 0 3
Sov 4 203 12.6 m² 1 1
Sov 5 204 7.1 m² 1 1
Bad 205 4.5 m² 0 1
Terrasse 206 67.4 m² 0 1

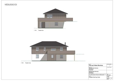
Fasader

Enebolig

Ukjent
Taktype
Saltak
Vinduer
5
Dører
1
Synlige etasjer
2
Sør
Materiale
Tre
Taktype
Saltak
Vinduer
2
Dører
1
Balkonger
1
Synlige etasjer
2
Vest
Materiale
Tre
Taktype
Saltak
Vinduer
5
Dører
1
Balkonger
1
Synlige etasjer
2
Nord
Materiale
Tre
Taktype
Saltak
Vinduer
2
Dører
0
Synlige etasjer
2
Øst
Materiale
Tre
Taktype
Saltak
Vinduer
4
Dører
0
Balkonger
1
Synlige etasjer
2

Hovedbygg

Ukjent
Taktype
Saltak
Høyde
4.5 m
Mønehøyde
6.0 m
Vinduer
2
Dører
0
Synlige etasjer
2

Eksist. Bolig

Vest
Taktype
Flatt tak
Vinduer
5
Dører
1
Synlige etasjer
2

Hendelser

22.04.2026 Gbnr 113/263 - Tjærildveien 12 - Tilbygg, fasadeendring og bruksendring - Bolig og garasje - Søknad tillatelse til tiltak