Extension UnderBehandling Enebolig

Tilbygg med kontor og venterom på Torvmyrane 40, Ørsta

📍 Torvmyrane 40 , 6160 HOVDEBYGDA

Nøkkelinfo

Sakstype
Tilbygg
Bygningstype
Enebolig
Bruksareal
50 m²
Kommune
Ørsta
Fylke
Møre og Romsdal
Gnr / Bnr
56 / 13
Saksnummer
2026/7493
Fase
Under behandling

Om byggesaken

Ny tilbygg på ca. 50 m² til eksisterende bygning ved NAF Øvingsbaner på Torvmyrane 40 i Ørsta kommune. Tilbygget inneholder mottak/venterom, kontor og garderobe, og er utformet med saltak og trekledning som matcher eksisterende bygg. Bygget har to etasjer med totalt ca. 100,8 m² BRA etter utvidelsen. Det installeres en FlexStep løfteanordning (løfteplattform) for trappeadkomst. Bygget har mekanisk ventilasjon planlagt, men ventilasjonsberegninger må dokumenteres. Tiltaket er tilpasset reguleringsplan og har dispensasjon fra byggegrenser mot E39 og FV9. Utvendig belysning er planlagt i henhold til Avinors krav for flyplassnærhet. Prosjektet inkluderer grunnarbeid, betongfundament, tømrerarbeid, elektro, VVS og tekniske installasjoner.

Produkter og materialer

Dører Innvendige dører

🧱 Standard dørmateriale

Antall: 9

Dører til kontor, garderobe, WC, lager, undervisningsrom, kjøkkenkrok

Innvendige dører i tilbygget

Vinduer Fasadevindu

🧱 Tre eller aluminium

Antall: 9

5 vinduer mot nord, 4 vinduer mot sør, 3-lags energiglass antatt

Fasadevindu i tilbygget for dagslys og utsyn

Kjøkken Kjøkkenkrok/Pause

Antall: 1

Kjøkkenkrok og pauseareal i tilbygget

Personalrom for pause og matlaging

Bad WC og HC WC

Antall: 2

WC og HC WC i tilbygget

Sanitærrom for personalbruk i tilbygget

Fasade Trekledning

🧱 Tre

Fasade i tre med saltak, tilpasset eksisterende bygg

Yttervegger kledd med trepanel som matcher eksisterende bygning

VVS Mekanisk ventilasjon

Mekanisk ventilasjon planlagt, dokumentasjon på luftmengder og inneklima kreves

Ventilasjonssystem for å sikre tilfredsstillende inneklima i tilbygget

Tak Saltak

🧱 Takstein eller tilsvarende

Saltak med samme høyde som eksisterende bygg

Tak med saltak som følger eksisterende bygningsform

Maling Innvendig og utvendig maling

Overflatebehandling av treverk og innvendige flater

Trapper FlexStep løfteplattform

🧱 Metall og tre

Antall: 1

FlexStep 6 trinn, løftekapasitet 400 kg, med tilhørende rampe og betjening

Løfteplattform for trappeadkomst i tilbygget

Elektro Ledesystem og nødlys

Ledesystem og nødlys installeres i tilbygget

Elektriske installasjoner for sikkerhet og belysning

Tømrer Tømrerarbeid med tilhørende installasjoner

Tømrerarbeid for oppføring av tilbygget

Bygging av konstruksjon og innvendige arbeider

Grunnarbeid Grunnarbeid og betongfundament

🧱 Betong

Grunnarbeid og betongfundament for tilbygget

Fundamentering og grunnarbeid for tilbygget

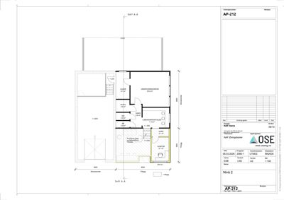
Plantegning

Enebolig 100.8 m²

Etasje 2 100.8 m²

Rom Areal Vinduer Dører
Lager 201 8.1 m² 0 1
Undervisningsrom 202 29.0 m² 0 1
HCWC 203 3.6 m² 0 1
WC 204 2.2 m² 0 1
BK 205 2.0 m² 0 1
Gang 206 5.8 m² 0 0
Kjøkkenkrok/Pause 207 11.9 m² 0 1
Gard 208 3.1 m² 0 1
Kontor 209 9.1 m² 0 1

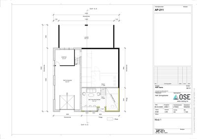
Fasader

Enebolig

Nord
Materiale
Tre
Taktype
Saltak
Vinduer
5
Dører
0
Synlige etasjer
1
Sør
Materiale
Tre
Taktype
Saltak
Vinduer
4
Dører
0
Synlige etasjer
1

Hendelser

21.04.2026 Torvmyrane 40 Supplering av søknad 56/13
14.04.2026 Søknad om løyve i ett trinn
25.03.2026 Vi innvilger søknaden om samtykke, med vilkår - gnr 56 bnr 13
24.03.2026 Svar - Nabovarsel - Tilbygg til eksisterende bygning - gnr. 56 bnr. 13 - Torvmyrane 40 - Ørsta kommune
24.03.2026 Ørsta kommune - Nabovarsler - Torvmyrane 40 - Gbnr 56/13 - Tilbygg til eksisterende bygning - Foreløpig uttalelse fra Avinor