Extension UnderBehandling Enebolig

Tilbygg til enebolig i Tromøy kirkevei 290, Arendal

📍 Tromøy kirkevei 290 , 4818 FÆRVIK

Nøkkelinfo

Sakstype
Tilbygg
Bygningstype
Enebolig
Bruksareal
39 m²
Boenheter
1
Kommune
Arendal
Fylke
Agder
Gnr / Bnr
216 / 6
Saksnummer
2026/8103
Fase
Under behandling

Om byggesaken

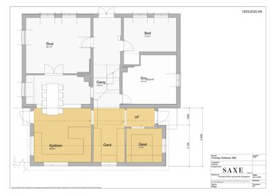
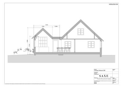
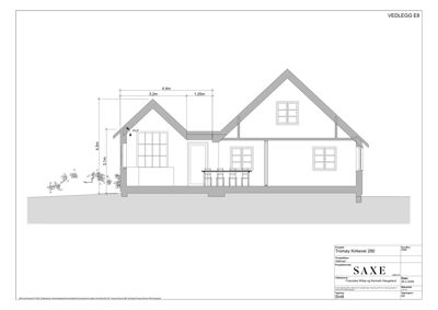
Ny tilbygg på 39,3 m² til eksisterende enebolig fra ca. 1840 i Tromøy kirkevei 290. Tilbygget erstatter et sekundært vindfang fra 1950-tallet og inneholder nytt kjøkken, soverom og garderobe. Bygget har saltak med tilsvarende takvinkel som hovedhuset, lavere volum og smalere trekledning for å underordne seg hovedbygningen. Vinduer med sprosser tilpasses tradisjonell stil. Tilbygget gir bedre romflyt ved å samle kjøkken, spiserom og stue, samt etablere et funksjonelt inngangsparti. Eksisterende hovedvolum og kulturhistoriske elementer bevares, og tiltaket er tilpasset LNF-område og hensynssone for bevaringsverdig kulturmiljø. Arealet på eiendommen er 3317 m², med eksisterende BYA 282,6 m² og nytt BYA 47 m². Tiltaket har dispensasjon fra byggegrense mot fylkesvei og er under behandling.

Produkter og materialer

VVS Sanitærinstallasjoner

Ingen spesifikke detaljer, men tilbygg inneholder bad og kjøkken som krever VVS

VVS-installasjoner for kjøkken og bad i tilbygget

Elektro Elektriske installasjoner

Elektriske installasjoner for nytt tilbygg

Elektroarbeid i tilbygget

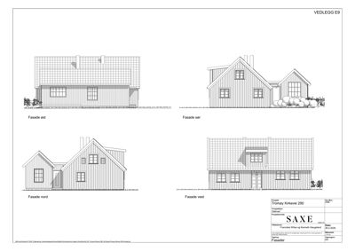
Fasade Trekledning

🧱 Tre

Smalere trekledning enn hovedhuset, tradisjonell utforming

Fasade med trekledning som underordner seg hovedbygningen

Innvendig Kjøkkeninnredning

Nytt kjøkken i tilbygget, omdisponering av eksisterende kjøkken til soverom

Kjøkkeninnredning og oppgradering av overflater

Grunnarbeid Fundamenter

Endring av fundamenter i bygg

Fundamentering for tilbygget

Tømrer Trekonstruksjoner

🧱 Tre

Oppføring av tilbygg med trekonstruksjoner

Tømrerarbeid for tilbygget

Isolasjon Bygningsisolasjon

Isolasjon i vegger, tak og gulv i tilbygget for energikrav

Isolasjon for nytt tilbygg

Innvendig Gulv og overflater

Oppgradering av overflater i eksisterende kjøkken som omdisponeres

Oppgradering av gulv og overflater i eksisterende rom

Grunnarbeid Drenering

Drenering rundt tilbygget for å sikre fuktsikring

Dreneringsarbeid ved tilbyggets grunnmur

Vinduer Sprosseinndelte vinduer

Vinduer med sprosser tilpasset historisk bebyggelse

Vinduer i tilbygget med tradisjonell utforming

Tak Saltak

Saltak med tilsvarende takvinkel som hovedhuset, lavere volum, slakt saltak på tilbygg

Tak med saltak som harmonerer med eksisterende bygg

Maling Utvendig og innvendig maling

Maling av fasade og innvendige overflater i tilbygget

Maling og overflatebehandling

Ventilasjon Ventilasjonssystem

Ventilasjon tilpasset nytt kjøkken og soverom

Ventilasjon i tilbygget

Dører Ytterdører

Dører tilpasset byggets stil og funksjon

Ytterdører i tilbygget

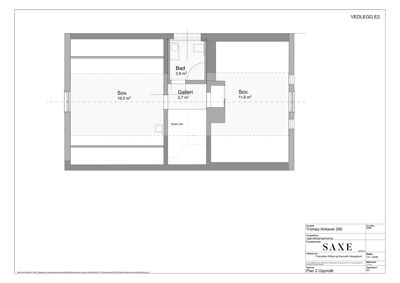
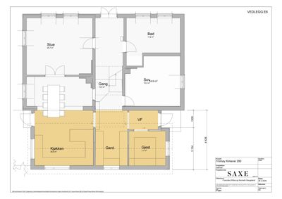
Plantegning

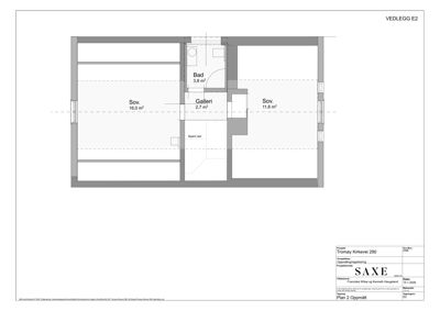
Enebolig 96.3 m²

Etasje 2 33.3 m²

Rom Areal Vinduer Dører
Sov. 201 16.0 m² 1 1
Bad 202 3.8 m² 0 1
Galleri 203 2.7 m² 0 1
Sov. 204 11.6 m² 1 1

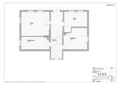
Etasje 1 63.0 m²

Rom Areal Vinduer Dører
Stue 101 20.7 m² 3 1
Gjesterom 102 10.7 m² 2 1
Gang 103 16.7 m² 0 2
Kjøkken 104 14.0 m² 1 1
Bad 105 11.6 m² 0 1
Gjest 106 7.1 m² 1 1
Gard 107 0.0 m² 0 0
VF 108 0.0 m² 0 0

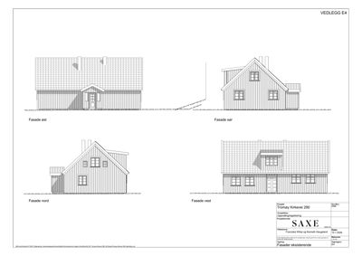
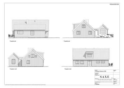
Fasader

Enebolig

Øst
Materiale
Tre
Taktype
Saltak
Vinduer
2
Dører
1
Synlige etasjer
1
Sør
Materiale
Tre
Taktype
Saltak
Vinduer
3
Dører
1
Synlige etasjer
2
Nord
Materiale
Tre
Taktype
Saltak
Vinduer
4
Dører
1
Synlige etasjer
2
Vest
Materiale
Tre
Taktype
Saltak
Vinduer
5
Dører
1
Synlige etasjer
2

Hendelser

15.04.2026 Tilbakemelding på søknad - 216/6 - Tromøy kirkevei 290 - tilbygg
14.04.2026 216/6 - Kulturminnefaglig uttalelse - tilbygg
13.04.2026 DOK-analyse 13.04.2026
13.04.2026 Ber om uttalelse fra kulturminnevern - 216/6 - Tromøy kirkevei 290 - tilbygg
30.03.2026 Tromøy Kirkevei 290 Søknad om rammetillatelse 216/6
11.03.2026 Tromøy kirkevei 290, melding om mottatt søknad
10.03.2026 216/6 - Vedtak - FV 3566 - søknad om dispensasjon fra byggegrense - tilbygg