Extension Soeknad Enebolig

Tilbygg og bruksendring i enebolig, Tuesgate 10B, Fredrikstad

📍 Tuesgate 10B , 1657 TORP

Nøkkelinfo

Sakstype
Tilbygg
Bygningstype
Enebolig
Bruksareal
50 m²
Boenheter
1
Kommune
Fredrikstad
Fylke
Østfold
Gnr / Bnr
611 / 103
Saksnummer
2026/10612
Fase
Søknad

Om byggesaken

Ny tilbygg på inntil 50 m² inkludert utvidelse av eksisterende balkong på vestfasade, samt bruksendring av kjellerareal fra tilleggsdel til hoveddel med innredning av flere oppholdsrom. Det etableres ny adkomst med biloppstillingsplasser og snuplass på egen tomt, samt montering av ny pipe til ildsted. Bygget er en to-etasjes enebolig med saltak og trekledning, totalt ca. 219 m² BRA. Balkongen utvides med 12,8 m², og det gjøres mindre endringer på vinduer og dører. Kjelleretasjen får ny planløsning med vaskerom, bad, soverom og sportsbod. Ny adkomst forbedrer dagens løsning og gir mulighet for fremtidig garasje på vestsiden av huset.

Produkter og materialer

Bad Bad og vaskerom

Antall: 2

Bad 5,5 m² i kjeller og 5,5 m² i 1. etasje, vaskerom/wc 6,5 m² i kjeller

Innredning og oppgradering av bad og vaskerom i kjeller og 1. etasje

Grunnarbeid Ny adkomst og biloppstillingsplass

Antall: 1

Ny adkomst med biloppstillingsplasser og snuplass på egen tomt, inkl. opparbeidelse av vei og drenering

Opparbeidelse av ny adkomst og biloppstillingsplass på egen tomt

Elektro Elektrisk anlegg

Oppgradering og nyinstallasjon av elektrisk anlegg i tilbygg og bruksendret kjeller

Elektrisk installasjon for nye rom og tilbygg

Fasade Balkong

🧱 Tre

Antall: 1

Utvidelse av eksisterende balkong på vestfasade med 12,8 m²

Utvidelse av balkong som del av tilbygg, inkl. bærekonstruksjon og rekkverk

Pipe Pipe til ildsted

Antall: 1

Montering av ny pipe til ildsted i tilbygg

Ny pipe for ildsted i tilbygg

Dører Ytterdør og balkongdør

🧱 Ikke spesifisert

Antall: 4

Nye dører i tilbygg og ny adkomst, inkl. dør 10x211, 11x81 cm mm

Nye ytterdører og balkongdører i tilbygg og ny adkomst

Gulv Gulvbelegg

Ikke spesifisert, men nødvendig for innredning av nye rom i kjeller og tilbygg

Gulvbelegg og overflater i nye og ombygde rom

Vinduer Fasadevindu

🧱 Tre/Aluminium eller ikke spesifisert

Antall: 10

Nye og endrede vinduer i tilbygg og eksisterende fasade, inkl. vindu 11x89x12, 26x10, 8x16, 11x12 cm mm

Nye og modifiserte vinduer i tilbygg og eksisterende bygg

Isolasjon Isolasjon for tilbygg og kjeller

Isolasjon i vegger, tak og gulv i tilbygg og bruksendret kjeller

Isolasjon for energieffektivitet og komfort

VVS Sanitær og varme

Sanitærinstallasjoner for bad og vaskerom, samt eventuell oppvarming i tilbygg og kjeller

VVS-installasjoner for nye og ombygde rom

Tømrer Tilbygg og innredning kjeller

🧱 Tre

Tømrerarbeid for tilbygg, utvidelse balkong, innredning av kjeller med nye rom

Tømrerarbeid for konstruksjon og innredning

Maling Innvendig og utvendig maling

Maling av nye og eksisterende flater etter tilbygg og bruksendring

Overflatebehandling innvendig og utvendig

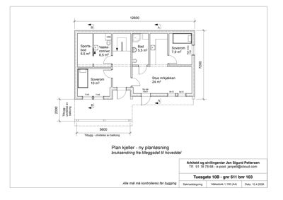
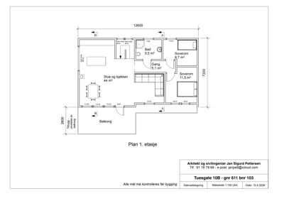
Plantegning

Enebolig 219.2 m²

Etasje 0 134.9 m²

Rom Areal Vinduer Dører
Sportsbod 5.5 m² 0 1
Vaskerom/wc 6.5 m² 0 1
Bad 5.5 m² 0 1
Soverom 7.9 m² 1 1
Stue m/kjøkken 24.0 m² 3 1
Soverom 10.0 m² 2 1

Etasje 1 84.3 m²

Rom Areal Vinduer Dører
Stue og kjøkken 44.0 m² 5 1
Bad 5.5 m² 2 1
Gang 5.1 m² 0 3
Soverom 8.7 m² 1 1
Soverom 11.5 m² 2 1

Fasader

Enebolig

Nord
Materiale
Tre
Taktype
Saltak
Vinduer
1
Dører
0
Balkonger
1
Synlige etasjer
2
Vest
Materiale
Tre
Taktype
Saltak
Vinduer
10
Dører
2
Balkonger
1
Synlige etasjer
2
Øst
Materiale
Tre
Taktype
Saltak
Takmat.
Tegl
Vinduer
3
Dører
0
Synlige etasjer
1
Sør
Materiale
Tre
Taktype
Saltak
Takmat.
Tegl
Vinduer
1
Dører
0
Balkonger
1
Synlige etasjer
1

Hendelser

10.04.2026 Ett-trinns søknad - Tuesgate 10B - Eiendom 611/103 - Tilbygg inntil 50 m², Bruksendring fra tilleggsdel til hoveddel
10.04.2026 Bekreftelse på mottatt søknad - Ett-trinns søknad - Tilbygg inntil 50 m², Bruksendring fra tilleggsdel til hoveddel - Tuesgate 10B - Eiendom 611/103