Extension UnderBehandling Enebolig

Tilbygg med garasje og utestue på Tysværvågvegen 414

📍 Tysværvågvegen 414 , 5570 AKSDAL

Nøkkelinfo

Sakstype
Tilbygg
Bygningstype
Enebolig
Bruksareal
50 m²
Boenheter
1
Kommune
Tysvær
Fylke
Rogaland
Gnr / Bnr
24 / 14
Saksnummer
2026/1641
Fase
Under behandling

Om byggesaken

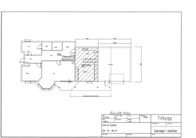
Ny tilbygg på eksisterende enebolig som inkluderer en garasje på 26 m² og en utestue på 24 m². Tilbygget oppføres i tre med saltak, og har to etasjer med gesimshøyde på ca. 7 meter. Eksisterende utestue og deler av balkong rives. Det er innvendig trapp mellom etasjene, og eksisterende garasje i underetasjen bruksendres til kombinert vaskerom og treningsrom. Fasader er i tre med saltak, og bygget har flere vinduer og dører tilpasset funksjonene. Det er gitt dispensasjon fra byggegrense mot fylkesvei for garasje og utestue. Prosjektet omfatter også oppgradering av terrasser og fasadeendringer.

Produkter og materialer

Elektro Elektriske installasjoner

Elektriske installasjoner for tilbygg, garasje og utestue

Maling Utvendig og innvendig maling

Maling av trepanel og innvendige overflater

Tak Saltak

🧱 Takstein eller lignende

Saltak på tilbygg og eksisterende bygg

Taktekking med saltak på tilbygg og garasje/utestue

Tømrer Bærende konstruksjoner og innvendige vegger

🧱 Tre

Tømrerarbeid for tilbygg, garasje og utestue

Grunnarbeid Fundamentering og grunnarbeid

Grunnarbeid for tilbygg og garasje

Terrasse Terrasse og balkong

🧱 Tre

Riving av deler av eksisterende balkong og terrasse, oppføring av ny terrasse

Terrassearbeid i tilknytning til tilbygg og utestue

Garasjeport Garasjeport til ny garasje

Antall: 1

Garasjeport til ny garasje på 26 m²

Fasade Trepanel

🧱 Tre

Trepanel fasade med saltak, gesimshøyde ca. 4.1-7 m, mønehøyde ca. 6.2 m

Yttervegger i tre med saltak for tilbygg og eksisterende bolig

Trapper Innvendig trapp

Antall: 1

Innvendig trapp mellom etasjer for tilkomst i bruksendret del

Innvendig trapp mellom underetasje og hovedetasje

Betong Fundament og dekker

Betongfundament og dekker for tilbygg og garasje

VVS Sanitær og varme

VVS-installasjoner for ny garasje, utestue og bruksendret vaskerom/treningsrom

Vinduer Fasadevindu

🧱 Tre eller aluminium

Antall: 14

Fasadevindu i tilbygg og eksisterende bolig, totalt 14 stk

Dører Ytterdører og terrassedører

🧱 Tre eller glass

Antall: 11

Ytterdører og dører til utestue og garasje, totalt 11 stk

Isolasjon Vegger, tak og gulv

Isolasjon for vegger, tak og gulv i tilbygg og bruksendret del

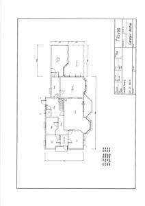
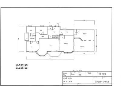
Plantegning

Enebolig 299.4 m²

Etasje 0 113.4 m²

Rom Areal Vinduer Dører
Soverom 101 13.6 m² 1 1
Entre 102 0.0 m² 1 2
Bod 103 3.9 m² 0 1
Badstue 104 3.4 m² 0 1
Bad 105 7.1 m² 0 1
Gang 106 0.0 m² 0 2
Bod 107 10.9 m² 0 1
Stue 108 35.3 m² 4 1
Bod/Sluse 109 6.4 m² 0 1
Garasje 110 26.0 m² 1 1
Stue 001 0.0 m² 0 1
Soverom 002 0.0 m² 0 1
Gang 003 0.0 m² 0 2
Bad 004 0.0 m² 0 1
Bedstu 005 0.0 m² 0 1
Teknisk 006 0.0 m² 0 0
Kjøkken 007 0.0 m² 0 1
Vaskerom 008 0.0 m² 0 1
Treningssrom 009 0.0 m² 0 1

Etasje 1 186.0 m²

Rom Areal Vinduer Dører
Stue 101 0.0 m² 0 1
Kjøkken 102 0.0 m² 0 1
Gang 103 0.0 m² 0 2
Utestue 104 24.0 m² 0 1
Sov 105 0.0 m² 0 1
Sov 106 0.0 m² 0 1
Garderobe 107 0.0 m² 0 1
Bad 108 0.0 m² 0 1
WC 109 0.0 m² 0 1
Terrasse 110 0.0 m² 0 0
BAL-KONG 111 0.0 m² 0 0
TERRASSE 112 0.0 m² 0 0

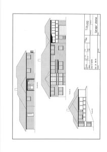
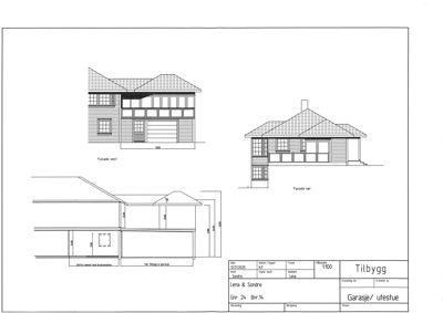
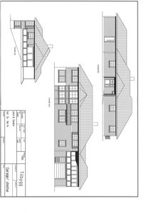
Fasader

Enebolig

Vest
Materiale
Tre
Taktype
Saltak
Høyde
4.1 m
Mønehøyde
6.2 m
Vinduer
6
Dører
1
Balkonger
1
Synlige etasjer
2
Øst
Materiale
Tre
Taktype
Saltak
Vinduer
3
Dører
1
Synlige etasjer
2
Sør
Materiale
Tre
Taktype
Saltak
Høyde
4.1 m
Mønehøyde
6.2 m
Vinduer
5
Dører
1
Synlige etasjer
2
Nord
Materiale
Tre
Taktype
Saltak
Vinduer
3
Dører
1
Synlige etasjer
1

Garasje/ utesue

Øst
Materiale
Tre
Taktype
Saltak
Høyde
7.0 m
Vinduer
5
Dører
1
Balkonger
1
Synlige etasjer
2

Hendelser

15.04.2026 Gbnr 24/14 - Svar på mangler ved søknad - tilbygg til bolig og bruksendring - Tysværvågvegen 414
10.04.2026 Gbnr 24/14 - Mangler ved søknad - tilbygg til bolig og bruksendring - Tysværvågvegen 414
30.03.2026 Gbnr 24/14 - Søknad - tilbygg til bolig - garasje med utestue - Tysværvågvegen 414