Extension Ferdigattest Enebolig

Tilbygg og riving av carport og bod på Ulfs vei 12, Asker

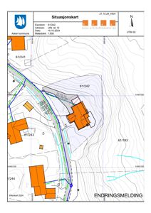
📍 Ulfs vei 12 , 1386 ASKER

Nøkkelinfo

Sakstype
Tilbygg
Bygningstype
Enebolig
Bruksareal
152 m²
Boenheter
1
Kommune
Asker
Fylke
Akershus
Gnr / Bnr
61 / 242
Saksnummer
22/897
Fase
Ferdigattest

Om byggesaken

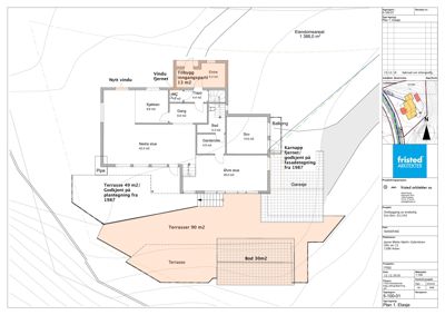
Ny enebolig med et tilbygg på ca. 13,2 m² inngangsparti, oppgradering av innvendige bærekonstruksjoner, riving av eksisterende carport og bod, samt oppgradering og utvidelse av carport med terrasse på taket. Bygningen har saltak med trekledning og tegl takmateriale på deler av taket. Det er etablert balkonger over carport og flere terrasser rundt boligen. Arealet av boligen er ca. 151,6 m² med tilhørende balkonger og terrasser. Prosjektet inkluderer også endringer i trapper og fasader, samt tilpasninger til terreng og innkjørsel. Alle arbeider er utført med ansvarlige aktører og godkjent av kommunen med ferdigattest.

Arbeidsomfang

- Riving av eksisterende carport og bod - Tilbygg med endring av innvendig bærekonstruksjon (bæring) - Utvidelse eller ombygging av boligbebyggelse

Produkter og materialer

Garasje Carport med terrasse på tak

🧱 Tre og terrasseoverbygg

Antall: 1

Eksisterende carport delvis revet og oppgradert, utvidet med terrasse på tak

Carport med terrasse på tak, delvis riving og oppgradering

Trapper Innvendig og utvendig trapp

Antall: 2

Endret plassering av trapper, ny trapp montert innen 3.10.2023

Innvendige og utvendige trapper i forbindelse med tilbygg og terrasse

VVS Varme og sanitær

Varmefordeling med elektriske panelovner, ovn/kamin/peis, elektriske varmekabler, energiforsyning med biobrensel og elektrisitet

VVS-installasjoner for varme og sanitær

Betong Fundament og grunnmur

🧱 Betong

Fundament og grunnmur for tilbygg og carport

Betongfundament og grunnmur for nye konstruksjoner

Tømrer Trekonstruksjoner

🧱 Tre

Montering av trekonstruksjoner for tilbygg og carport

Tømrerarbeid for tilbygg, carport og terrasse

Isolasjon Bygningsisolasjon

🧱 Mineralull eller tilsvarende

Isolasjon i vegger, tak og gulv i tilbygg

Isolasjon for energieffektivitet og komfort

Vinduer Fasadevindu og balkongdør

🧱 Tre/alu ramme

Antall: 22

Vinduer og dører endret og oppgradert, inkludert balkongdører

Vinduer og dører i fasade, inkludert balkongdører

Dører Ytterdører og balkongdører

🧱 Tre/alu

Antall: 8

Nye ytterdører og balkongdører i tilbygg og oppgradering

Ytterdører og balkongdører for tilbygg og oppgradering

Maling Utvendig og innvendig maling

Oppgradering av fasade med ny farge, maling av treverk

Maling av fasader og innvendige flater

Tak Saltak med tegl og flatt tak

🧱 Tegl og flatt tak med parapet

Saltak med tegl på deler av taket, flatt tak med parapet på inngangsparti

Tak med saltak og flatt tak på tilbygg

Grunnarbeid Terrengarbeid og drenering

Rydding og tilpasning av terreng under terrasse og carport, drenering og grunnarbeid

Grunnarbeid for tilbygg og uteområder

Elektro Elektrisk anlegg

Elektrisk anlegg med panelovner, varmekabler og belysning

Elektrisk installasjon for varme og belysning

Rekkverk Balkongrekkverk

🧱 Tre

Nytt rekkverk på balkong over carport og terrasser

Sikring av balkonger med rekkverk

Fasade Tre kledning

🧱 Tre

Tre kledning på alle fasader

Tre kledning for fasader på enebolig

Terrasse Terrasse og balkong over carport

🧱 Tre

Antall: 1

Terrasse på tak av carport utvidet, flere terrasser rundt bolig

Terrasse på tak av carport og øvrige terrasser

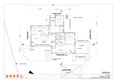
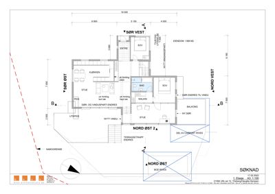
Plantegning

Enebolig 151.6 m²

Etasje 1 151.6 m²

Rom Areal Vinduer Dører
Entré ID-2 0.0 m² 0 2
Sov ID-1 0.0 m² 0 1
Sov ID-4 0.0 m² 0 1
Kjøkken 101 0.0 m² 0 1
Stue 102 0.0 m² 0 1
Peis 103 0.0 m² 0 0
Bad 104 0.0 m² 0 1
Walkin 105 0.0 m² 0 1
Stue 106 0.0 m² 0 1
Stue (sør) 107 0.0 m² 2 2
Balkong 108 0.0 m² 0 1
Balkong 109 0.0 m² 0 1
Sov 110 13.6 m² 1 1
Øvre stue 111 26.0 m² 1 1
Terrasse 112 49.0 m² 0 1
Terrasser 113 90.0 m² 0 0
Terrasse 114 0.0 m² 0 0
Bod 115 30.0 m² 0 0
Garasje 116 0.0 m² 0 0

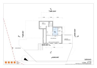
Etasje 0 0.0 m²

Rom Areal Vinduer Dører
Soverom 001 0.0 m² 0 1
Gjesterom 002 0.0 m² 0 1
Vaskerom Bod 003 0.0 m² 0 1
WC 004 0.0 m² 0 1
Badstu 005 0.0 m² 0 1
Hypbel 006 0.0 m² 0 1

Fasader

Enebolig

Sørøst
Materiale
Tre
Taktype
Saltak
Høyde
3.0 m
Mønehøyde
119.1 m
Vinduer
2
Dører
1
Synlige etasjer
1
Sørvest
Materiale
Tre
Taktype
Saltak
Takmat.
Tegl
Høyde
3.2 m
Mønehøyde
119.1 m
Vinduer
3
Dører
1
Balkonger
1
Synlige etasjer
1
Nord
Materiale
Tre
Taktype
Saltak
Vinduer
3
Dører
1
Balkonger
1
Synlige etasjer
2
Vest
Materiale
Tre
Taktype
Saltak
Takmat.
Tegl
Vinduer
3
Dører
1
Synlige etasjer
1
Nordvest
Materiale
Tre
Taktype
Saltak
Høyde
2.4 m
Mønehøyde
119.1 m
Vinduer
4
Dører
2
Balkonger
1
Synlige etasjer
2
Nordøst
Materiale
Tre
Taktype
Flatt tak
Høyde
2.4 m
Mønehøyde
119.1 m
Vinduer
6
Dører
2
Balkonger
1
Synlige etasjer
2
Sør
Materiale
Tre
Taktype
Saltak
Vinduer
1
Dører
0
Synlige etasjer
1
Øst
Materiale
Tre
Taktype
Saltak
Vinduer
4
Dører
1
Synlige etasjer
1

Hendelser

09.04.2026 61/242 Ulfs vei 12 - Kvittering på mottatt klage
07.04.2026 61/242 Ulfs vei 12 - Klage på avslag om søknad om redusert gebyr ferdigattest
17.03.2026 61/242 Ulfs vei 12 - Avslag på søknad om redusert gebyr vedtak
27.02.2026 61/242 Ulfs vei 12 - Purring på saksbehandling
22.10.2025 61/242 Ulfs vei 12 - Klage på gebyr klage
01.10.2025 61/242 Ulfs vei 12 - Dekning av saksomkostninger
11.09.2025 61/242 Ulfs vei 12 - Krav om dekning av saksomkostninger ifm PBAs opphevelsesvedtak ifm. klage på avvisning av klage på avslag av krav om retting av gebyr klage
29.08.2025 61/242 Ulfs vei 12 - Klage på vedtak om å avvise klage tas til følge - vedtak oppheves klage
10.07.2025 61/242 Ulfs vei 12 - Avvisning av klage på gebyr klage
19.06.2025 61/242 Ulfs vei 12 - Klage på avvisning av klage på gebyr for endringstillatelse, subsidiært krav om bortfall av gebyr, attersubsidiært anmodning om nedsatt gebyr klage
21.03.2025 61/242 Ulfs vei 12 - Dekning av saksomkostninger
04.03.2025 61/242 Ulfs vei 12 - Klage på gebyr for endringstillatelse, subsidiært krav om bortfall av gebyr, attersubsidiært anmodning om nedsatt gebyr klage
26.02.2025 61/242 Ulfs vei 12 - Rettet ferdigattest - Tilbygg med endring av innvendig bærekonstruksjon / Riving av carport og bod ferdigattest
19.02.2025 61/242 Ulfs Vei 12 - Krav om dekning av saksomkostninger ifm PBAs vedtak hvor klage ble tatt til følge klage
18.02.2025 61/242 Ulfs vei 12 - Ferdigattest tilbygg med endring av innvendig bærende konstruksjon og riving av carport og bod ferdigattest
13.02.2025 61/242 Ulfs vei 12 - Endringstillatelse
07.02.2025 61/242 Ulfs vei 12 - Søknad om ferdigattest ferdigattest
07.02.2025 61/242 Ulfs vei 12 - Klage tas til følge - vedtak oppheves klage
31.01.2025 61/242 Ulfs vei 12 - Kvittering for mottatt klage klage
28.11.2024 61/242 Ulfs vei 12 - Klage på pålegg om ferdigstillelse med tvangsgebyr og dagmulkt klage
27.11.2024 61/242 Ulfs vei 12 - Supplering til klagen på pålegg (med tvangsgebyr og dagmulkt) om ferdigstillelse - vedtaket er ugyldig - anmoder om oppsettende virkning mens klagen behandles klage
17.11.2024 61/242 Ulfs vei 12 - Pålegg om ferdigstillelse av tiltaket - endring av innvendig bærende konstruksjoner/riving av carport og bod
28.10.2024 61/242 Ulfs vei 12 - Søknad om endring av gitt tillatelse søknad
28.10.2024 61/242 Ulfs vei 12 - Orientering om status for ferdigstillelse
14.10.2024 61/242 Ulfs vei 12 - Varsel om pålegg om ferdigstillelse av tiltaket - Tilbygg med endring av innvendig bærekonstruksjon / Riving av carport og bod
05.12.2023 61/242 Ulfs vei 12 Midlertidig brukstillatelse - Tilbygg bolig, riving carport og bod midlertidig_brukstillatelse
22.09.2023 61/242 Søknad om midlertidig brukstillatelse - Tilbygg med endring av innvendig bærekonstruksjon / Riving av carport og bod midlertidig_brukstillatelse
24.06.2022 61/242 Godkjent dispensasjon - Tillatelse i ett trinn - Tilbygg, endring av bærekonstruksjon og riving dispensasjon
24.06.2022 61/242 Rettet vedtak - Godkjent dispensasjon - Tillatelse i ett trinn - Tilbygg, bæring og riving dispensasjon
17.06.2022 61/242 Løsning for nytt tilbygg mot vei - status søknad - Tilbygg med endring av innvendig bærekonstruksjon søknad
15.03.2022 61/242 Kvitteringsbrev - Tilbygg med endring av innvendig bærekonstruksjon / Riving av carport og bod
14.03.2022 61/242 Søknad om tilbygg med endring av innvendig bærekonstruksjon / Riving av carport og bod søknad