Extension Rammetillatelse Enebolig

Ombygging og tilbygg til våningshus i Uthaugsveien 175, Brekstad

📍 Uthaugsveien 175 , 7130 BREKSTAD

Nøkkelinfo

Sakstype
Tilbygg
Bygningstype
Enebolig
Bruksareal
237 m²
Boenheter
1
Kommune
Ørland
Fylke
Trøndelag - Trööndelage
Gnr / Bnr
170 / 22
Saksnummer
2024/4084
Fase
Rammetillatelse

Om byggesaken

Tiltaket omfatter omfattende ombygging og oppføring av et nytt tilbygg i to etasjer til et eldre SEFRAK-registrert våningshus fra ca. 1670, plassert i Uthaugsveien 175, Brekstad. Våningshuset er et klassisk trønderlån med langstrakt og smal form i to etasjer, oppført som en hel tømmerkasse på ringmur. Tilbygget erstatter dagens inngangsparti og inneholder WC, hall, bod og trapp i første etasje, samt loftstue i andre etasje. Tilbygget har et bebygd areal på ca. 29 m² og bruksareal på ca. 40 m², med mønehøyde senket i forhold til hovedbygget for å understreke underordnet funksjon. Bygningen skal renoveres innvendig med bevaring av lafteknuter og forsterkning av konstruksjonen. Fasade og taktekking tilpasses hovedhusets stil med skifer og kledning. Tiltaket inkluderer også støyisoleringstiltak i henhold til krav for gul støysone. Prosjektet er underlagt kulturminneloven § 25 og har vært på høring hos fylkeskommunen.

Produkter og materialer

Elektro Elektrisk installasjon

Elektrisk installasjon iht. gjeldende forskrifter

Elektroarbeid i ombygging og tilbygg

Tømrer Laftekasse og trekonstruksjon

🧱 Tømmerkasse med bevaring av lafteknuter, forsterkning der nødvendig

Ombygging med inngrep i bærekonstruksjon for flytting av trapp, tilbygg i trekonstruksjon

Tømrerarbeid for ombygging og tilbygg

Gulv Innvendige gulv

Oppgradering av gulv i ombygging, ikke detaljert spesifisert

Gulvoppgradering i ombygging

VVS Sanitæranlegg

Sanitæranlegg skal utføres av ansvarlig prosjekterende og utførende med ansvarsrett

Sanitæranlegg i tilbygg og ombygging

Betong Ringmur

Eksisterende ringmur, eventuelt supplert for tilbygg

Ringmur for eksisterende bygg og tilbygg

Fasade Kledning

🧱 Stående kledning, asfaltplater på eksisterende, tilpasses hovedhusets utførelse

Kledning på tilbygget skal tilpasses eksisterende fasade

Fasade kledning til tilbygget

Vinduer 2-fags 2-rams koblet vindu

🧱 3-lags isolerglass med gjennomgående sprosser

Lydklasse C i NS 8175:2012, lydreduksjon ca 38 dB, tilsvarende vinduer byttet i 2017

Vinduer til tilbygg med støyisolering tilpasset eksisterende hus

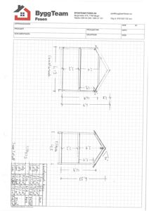
Tak Skifertak

🧱 Skifer i samme stil som eksisterende bygg

Taktekking på tilbygget skal være skifer som eksisterende

Taktekking for tilbygget

Maling Innvendig og utvendig maling

Oppgradering og maling av fasade og innvendige flater, ikke detaljert spesifisert

Maling i ombygging og tilbygg

Ventilasjon Lydventiler

Antall: 12

Lydventiler installert i vinduer og vegger for støyreduksjon

Ventilasjon med lydventiler i tilbygg og eksisterende bygg

Isolasjon Vegger og tak

🧱 200 mm isolasjon i vegger, 300 mm isolasjon i tak

Isolasjon for lydreduksjon og energikrav, vegger og tak i tilbygget

Isolasjon i tilbyggets vegger og tak

Grunnarbeid Ringmur og fundamentering

Grunnarbeid utføres av tiltakshaver som selvbygger

Grunnarbeid for tilbygg og ombygging

Trapper Innvendig trapp

Antall: 1

Ny funksjonell trapp i tilbygg, tilpasset adkomst og loftstue

Trapp i tilbygget

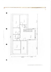
Plantegning

Enebolig 58.6 m²

Etasje 1 58.6 m²

Rom Areal Vinduer Dører
Stue 101 21.6 m² 1 1
Sov 102 12.0 m² 1 1
Sov 103 12.0 m² 1 1
Sov 104 12.0 m² 1 1
Bed 105 12.0 m² 1 1
Kontor 106 6.0 m² 0 1
Bod 107 3.0 m² 0 1

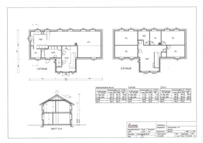
Fasader

Hovedbygg

Vest
Taktype
Saltak
Høyde
4.5 m
Mønehøyde
8.3 m
Vinduer
10
Dører
1
Synlige etasjer
2
Nord
Taktype
Saltak
Høyde
4.5 m
Mønehøyde
8.3 m
Vinduer
2
Dører
0
Synlige etasjer
2

Hendelser

17.04.2026 Uthaugsveien 175 Supplering av søknad 170/22
17.04.2026 Uthaugsveien 175 Søknad om ferdigattest 170/22
20.05.2025 Fakturagrunnlag - Ombygging og tilbygg våningshus - Gnr 170 bnr 22 - Uthaugsveien 175
19.03.2025 Melding om vedtak - Gnr 170 bnr 22 - Uthaugsveien 175 - Ombygging og tilbygg til våningshus
18.03.2025 Tillatelse til tiltak - gnr 170 bnr 22 - Uthaugsveien 175 - Ombygging og tilbygg til våningshus
26.02.2025 Snittegninger og arealberegninger
19.02.2025 Revidert foreløpig tegningsgrunnlag (30.01.25)
23.12.2024 Supplering av søknad 170/22
18.12.2024 Fylkeskommunens uttalelse om tilbygg til meldepliktig våningshus - Uthaugsveien 175 - Gnr/bnr 170/22
16.12.2024 Oversender søknad til uttalelse - gnr 170 bnr 22 - Uthaugsveien 175 - Tilbygg til meldepliktig våningshus jf. kml. § 25
29.11.2024 Nabovarsling og støyvurdering
06.11.2024 Foreløpig svar på søknad - gnr 170 bnr 22 - Uthaugsveien 175 - Tilbygg til våningshus
30.10.2024 Søknad om tillatelse i ett trinn 170/22