Extension Soeknad Enebolig

Tilbygg på enebolig i Vanylvsvegen 1852

📍 Vanylvsvegen 1852 , 6144 SYLTE

Nøkkelinfo

Sakstype
Tilbygg
Bygningstype
Enebolig
Bruksareal
153 m²
Boenheter
1
Kommune
Vanylven
Fylke
Møre og Romsdal
Gnr / Bnr
25 / 57
Saksnummer
2026/406
Fase
Søknad

Om byggesaken

Tilbygg på eksisterende enebolig med totalt areal på ca. 153 m². Tilbygget inkluderer nye rom som bad, bod, gang og oppgraderinger i eksisterende boligstruktur. Bygget har trekledning og saltak med tegl som takmateriale. Det er en trapp i boligen, og fasaden har flere vinduer og dører, inkludert balkonger. Grunnmur og bjelkelag er spesifisert med isolasjon og ringmurselementer. Prosjektet omfatter også en carport og kjellerarealer som del av helheten.

Produkter og materialer

Dører Ytterdører og innerdører

Antall: 7

Dører i fasade og innvendig, inkludert balkongdører

Ytterdører og innerdører i tre eller tilsvarende materiale

Grunnarbeid Ringmur og fundament

🧱 Betong, isolasjon

Vartdal ringmur 500 mm, bjelkelag med 100 mm isolasjon

Fundament og ringmur med isolasjon for tilbygg

Tak Saltak med tegl

🧱 Tegl

Saltak med tegl som takmateriale

Tak med saltak konstruksjon og teglstein som taktekking

Tømrer Bærevegger

🧱 48x148 mm tre

Bærevegger i 48x148 mm trevirke

Bærevegger i tre for tilbygget

Isolasjon Vegger og gulv

🧱 Isopor 250 mm

250 mm isopor isolasjon i vegger og gulv

Isolasjon for vegger og gulv i tilbygget

Betong Ringmurselementer

🧱 Betong

Vartdal ringmurselement 450 mm

Prefabrikkerte betong ringmurselementer

Fasade Trekledning

🧱 Tre

Trekledning på fasader, saltak med tegl som takmateriale

Yttervegger kledd med trepanel og saltak med teglstein

Trapper Innvendig trapp

Antall: 1

En innvendig trapp i boligen

Innvendig trapp mellom etasjer

Vinduer Fasadevindu

Antall: 9

Vinduer i fasade, antall 9 fordelt på flere rom og etasjer

Fasadevindu i tre med isolerglass

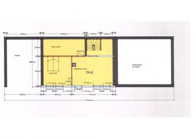
Plantegning

Enebolig 153.0 m²

Etasje 1 153.0 m²

Rom Areal Vinduer Dører
Veranda 101 0.0 m² 0 0
Sov 17,6m2 102 17.6 m² 1 1
Bad 8m2 103 8.0 m² 0 1
Bod 11m2 104 11.0 m² 0 1
Sov 12m2 105 12.0 m² 0 1
Gang 9,2m2 106 9.2 m² 0 0
Bad 107 0.0 m² 0 1
Vaskerom 108 0.0 m² 0 1
Kjøkken 36m2 109 36.0 m² 0 1
Stove 110 0.0 m² 0 0

Eksisterende grovkjellar 100.2 m²

Etasje 0 100.2 m²

Rom Areal Vinduer Dører
Carport 001 0.0 m² 0 0
Bod 002 12.5 m² 0 0
Sov 003 15.2 m² 0 0
Kjellarstove 004 31.0 m² 0 0

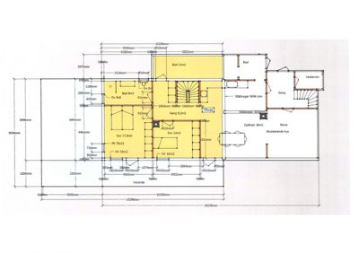
Fasader

Hovedbygg

Ukjent
Materiale
Tre
Taktype
Saltak
Vinduer
2
Dører
0
Synlige etasjer
2
Vest
Materiale
Tre
Taktype
Saltak
Takmat.
Tegl
Vinduer
2
Dører
0
Synlige etasjer
2

Enebolig

Nord
Materiale
Tre
Taktype
Saltak
Vinduer
3
Dører
1
Balkonger
1
Synlige etasjer
2
Vest
Materiale
Tre
Taktype
Saltak
Vinduer
1
Dører
1
Balkonger
1
Synlige etasjer
2

Hendelser

20.04.2026 Søknad om løyve til tiltak