Extension Soeknad Enebolig

Tilbygg carport og bod på Veslebekkmoen 26, Tynset

📍 Veslebekkmoen 26 , 2500 TYNSET

Nøkkelinfo

Sakstype
Tilbygg
Bygningstype
Enebolig
Bruksareal
33 m²
Boenheter
1
Kommune
Tynset
Fylke
Innlandet
Gnr / Bnr
48 / 33
Saksnummer
2026/1046
Fase
Søknad

Om byggesaken

Ny tilbygg på 33 m² bestående av en carport for én bil med tilhørende bod i bakkant, tilknyttet eksisterende garasje på enebolig på Veslebekkmoen 26. Tilbygget får pulttak med takvinkel på 5 grader og bygges i tre. Plasseringen er nærmere nabogrense enn 4 meter, med skriftlig nabosamtykke og branntekniske tiltak for å ivareta sikkerhet. Prosjektet inkluderer fundamentering, bærekonstruksjoner, taktekking, og tilpasning til eksisterende bygg. Arealet er under 50 m² og tiltaket krever ikke ansvarsrett.

Produkter og materialer

Grunnarbeid Fundamentering

Fundamentering for tilbygg i henhold til tekniske krav

Grunnarbeid og fundamentering for carport og bod

Fasade Trevegger tilbygg

🧱 Tre

Tilbygg i tre som tilpasses eksisterende fasade i tre

Yttervegger i tre til carport og bod som tilbygg til eksisterende enebolig

Tak Pulttak

🧱 Taktekking ikke spesifisert, men eksisterende tak er tegl

Takvinkel 5 grader, pulttak til carport og bod

Tak med pulttak og 5 graders takvinkel til carport og bod

Tømrer Bærekonstruksjon

🧱 Tre

Bærekonstruksjon i tre for tilbygg

Tømrerarbeid for oppføring av tilbyggets bærende konstruksjoner

Isolasjon Vegger og tak

Isolasjon i vegger og tak for tilbygg i henhold til TEK

Isolasjon for å tilfredsstille tekniske krav i tilbygg

Garasjeport Carportåpning

Antall: 1

Carport for én bil koblet til eksisterende garasje

Åpning for bil i carport som tilbygg til eksisterende garasje

Dører Boddør

Antall: 1

Dør til bod i bakkant av carport

Dør til bod som er del av tilbygget

Maling Utvendig treverk

Maling eller behandling av utvendig treverk for tilbygg

Overflatebehandling av utvendig treverk på tilbygg

Fasader

Garasje

Sør
Materiale
Tre
Taktype
Pulttak
Vinduer
0
Dører
1
Synlige etasjer
1

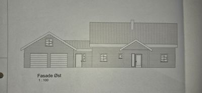
Enebolig

Øst
Materiale
Tre
Taktype
Saltak
Takmat.
Tegl
Vinduer
4
Dører
2
Synlige etasjer
1

Hendelser

22.04.2026 Søknad om tillatelse til tiltak uten ansvarsrett tilbygg gbnr 48/33