Extension Ferdigattest Enebolig

Tilbygg, modernisering og garasje på Vesleengvegen 8, Gjøvik

📍 Vesleengvegen 8 , 2819 GJØVIK

Nøkkelinfo

Sakstype
Tilbygg
Bygningstype
Enebolig
Bruksareal
106 m²
Boenheter
1
Kommune
Gjøvik
Fylke
Innlandet
Gnr / Bnr
72 / 116
Saksnummer
2024/1984
Fase
Ferdigattest

Om byggesaken

Ny oppføring av et tilbygg på 25,8 m² med modernisering av eksisterende enebolig på Vesleengvegen 8 i Gjøvik. Tilbygget endrer fasaden, blant annet ved at eksisterende carport ombygges til nytt inngangsparti. I tillegg oppføres en frittstående garasje på 43,5 m². Boligen har saltak og trekledning, og består totalt av 106 m² fordelt på to etasjer med flere soverom, bad, kjøkken, oppholdsrom, vinterhage og arbeidsrom. Garasjen har garasjeport og er integrert i tomtens helhetlige plan. Bygget er utført i henhold til gjeldende regelverk og har fått ferdigattest.

Produkter og materialer

Maling Utvendig og innvendig maling

Maling av fasade og innvendige flater

VVS Varme og sanitær

Vannbåren gulvvarme, elektriske varmekabler, varmepumpe luft

Varme- og sanitæranlegg i bolig

Bad Baderomsinnredning

Antall: 1

Bad med sanitærutstyr og fliser

Gulv Innvendige gulv

Innvendige gulv i bolig, antatt parkett eller laminat

Fasade Trekledning

🧱 Tre

Trekledning på fasader sør, nord, øst og vest

Fasade med trekledning i henhold til tegninger

Dører Ytterdører

🧱 Tre

Antall: 5

Ytterdører i fasader sør (1), nord (1), øst (1), vest (1) og vinterhage (1)

Ytterdører i tre i bolig og vinterhage

Tak Saltak

Saltak på bolig og garasje

Saltak på bolig og garasje i tre

Grunnarbeid Fundamentering og grunnmur

Grunnarbeid og fundamentering for bolig og garasje

Trapper Innvendig trapp

Antall: 1

Innvendig trapp i bolig

Innvendig trapp mellom etasjer i bolig

Elektro Elektrisk anlegg

Elektrisk anlegg i bolig og garasje

Vinduer Fasadevindu

🧱 Tre

Antall: 14

Vinduer i fasader sør (1), nord (2), øst (5), vest (4) og i vinterhage (2)

Fasadevinduer i tre med 3-lags energiglass antatt

Tømrer Bygningskonstruksjon

🧱 Tre

Tømrerarbeid for tilbygg, modernisering og garasje

Garasjeport Port til garasje

Antall: 1

Garasjeport i trefasade på garasje

Garasjeport for oppført garasje på 43,5 m²

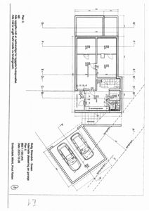
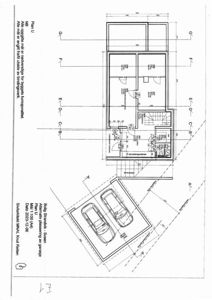
Plantegning

Enebolig 106.0 m²

Etasje 1 106.0 m²

Rom Areal Vinduer Dører
HALL/GARD 001 11.3 m² 0 2
KJØKKEN 002 10.0 m² 1 1
TOA 003 2.0 m² 0 1
TRAPPEROM 004 6.0 m² 0 1
APEGDROM/GJESTEROM 005 15.4 m² 1 1
SOVEROM 006 7.0 m² 1 1
SOVEROM 007 10.2 m² 1 1
SOVEROM 008 7.2 m² 1 1
GARASJE 009 35.4 m² 0 1
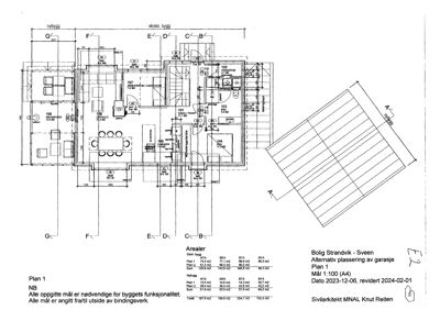
Gang / Trapp 101 11.1 m² 0 2
Vaskerom 102 4.1 m² 0 1
Bad 103 5.9 m² 0 1
Sov 104 11.3 m² 1 1
Kjøkken 105 7.8 m² 1 1
Opphold 106 27.5 m² 2 1
Arbeidsrom / Gjestesrom 107 7.2 m² 1 1
Vinterhage 108 13.5 m² 2 1

Fasader

Enebolig

Sør
Materiale
Tre
Taktype
Saltak
Vinduer
1
Dører
1
Balkonger
1
Synlige etasjer
2
Nord
Materiale
Tre
Taktype
Saltak
Vinduer
2
Dører
1
Synlige etasjer
2
Øst
Materiale
Tre
Taktype
Saltak
Vinduer
5
Dører
1
Balkonger
1
Synlige etasjer
2
Vest
Materiale
Tre
Taktype
Saltak
Vinduer
4
Dører
1
Synlige etasjer
2

Hendelser

21.04.2026 72/116 - Vesleengvegen 8, Gjøvik - Vedtak om ferdigattest for oppføring av tilbygg/modernisering av eksisterende bolig og for oppføring av en garasje
08.04.2026 72/116 - Vesleengvegen 8, Gjøvik - Søknad om ferdigattest
21.03.2024 72/116 - Vesleengvegen 8, Gjøvik - Vedtak om tillatelse til oppføring av tilbygg/modernisering av eksisterende bolig og oppføring av garasje
19.02.2024 72/116 - Vesleengvegen 8, Gjøvik - Tilbygg/modernisering av eksisterende bolig og oppføring av garasje - Søknad om tillatelse til tiltak