Facade
Fasadetegning som viser bygningens utsyn fra fire ulike vinkler (for, bak, venstre og høyre side).
1 / 3
Extension
Soeknad
Enebolig
Tilbygg soverom til enebolig på Veståsen 3
📍 Veståsen 3 , 1930 AURSKOG
Nøkkelinfo
- Sakstype
- Tilbygg
- Bygningstype
- Enebolig
- Bruksareal
- 15 m²
- Boenheter
- 1
- Kommune
- Aurskog-Høland
- Fylke
- Akershus
- Gnr / Bnr
- 200 / 28
- Saksnummer
- 26/01481
- Fase
- Søknad
Om byggesaken
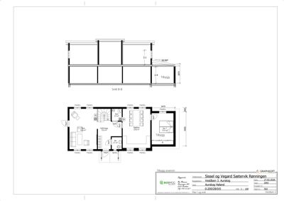
Ny tilbygg på 15 m² til eksisterende enebolig på Veståsen 3, bestående av et soverom som erstatter en tidligere gang på 5 m². Tilbygget har saltak med teglstein og er utført i trekledning som resten av huset. Bygget har to etasjer med flere vinduer og dører i tre, og pipe er tilstede. Tilbygget integreres med eksisterende boligstruktur og følger husets material- og taktype.
Produkter og materialer
Isolasjon
Vegger og tak
Isolasjon i vegger og tak for nytt tilbygg
Dører
Ytterdør i tre
🧱 Tre
Antall: 1
Dør til tilbygget, i tre som matcher eksisterende dører
Elektro
Elektrisk installasjon
Elektrisk anlegg for belysning og stikkontakter i tilbygget
Fasade
Trekledning
🧱 Tre
Tilbygg i trekledning som matcher eksisterende fasade
Fasade i tre som tilpasses eksisterende bolig
Grunnarbeid
Fundamentering og grunnmur
Grunnarbeid for nytt tilbygg, inkludert fundament og eventuell grunnmur
Vinduer
Fasadevindu i tre
🧱 Tre
Antall: 1
Nye vinduer i tilbygget, tilpasset eksisterende stil
Tak
Saltak med teglstein
🧱 Teglstein
Saltak med teglstein som eksisterende bolig
Tak med teglstein som matcher eksisterende tak
Tømrer
Generelt tømrerarbeid
Tømrerarbeid for oppføring av tilbygg og innvendig ombygging
Gulv
Nytt gulv i soverom
Gulvbelegg eller parkett i nytt soverom
Ventilasjon
Ventilasjon for soverom
Ventilasjon for nytt soverom i tilbygget
Fasader
Enebolig
Nord
- Materiale
- Tre
- Taktype
- Saltak
- Takmat.
- Tegl
- Vinduer
- 6
- Dører
- 1
- Synlige etasjer
- 2
Sør
- Materiale
- Tre
- Taktype
- Saltak
- Takmat.
- Tegl
- Vinduer
- 2
- Dører
- 1
- Balkonger
- 1
- Synlige etasjer
- 2
Vest
- Materiale
- Tre
- Taktype
- Saltak
- Takmat.
- Tegl
- Vinduer
- 5
- Dører
- 1
- Synlige etasjer
- 1
Øst
- Materiale
- Tre
- Taktype
- Saltak
- Takmat.
- Tegl
- Vinduer
- 2
- Dører
- 1
- Balkonger
- 1
- Synlige etasjer
- 2
Hendelser
16.04.2026
26/01481-1 200/28 Melding om tiltak unntatt søknadsplikt