Extension Rammetillatelse Enebolig

Tilbygg og bruksendring i kjeller, Vestfoldveien 92

📍 Vestfoldveien 92 , 3043 DRAMMEN

Nøkkelinfo

Sakstype
Tilbygg
Bygningstype
Enebolig
Bruksareal
40 m²
Boenheter
1
Kommune
Drammen
Fylke
Buskerud
Gnr / Bnr
111 / 762
Saksnummer
25/32026
Fase
Rammetillatelse

Om byggesaken

Ny veranda på 13 m² med tilhørende trappenedløp til kjelleretasje på fasade nord, samt takoverbygg på 27,3 m² over eksisterende platting på fasade sør. Bruksendring av deler av kjelleretasjen fra bod til to soverom på henholdsvis 7,0 m² og 15,6 m². Endring av fire vinduer på fasade vest, samt innsetting av nytt vindu og dør på fasade nord. Tiltaket inkluderer støyreduserende vinduer med 38-40 dB reduksjon, og tiltaket er plassert 5,5 meter fra nærmeste eiendomsgrense med dispensasjon fra regulert byggegrense. Prosjektet omfatter også nytt trappenedløp til kjeller og fasadeendringer som ikke endrer bygningens karakter.

Produkter og materialer

Trapper Utvendig trappenedløp til kjeller

Antall: 1

Ny trappenedløp til kjeller under veranda

Trappenedløp for adkomst til kjeller

Tømrer Tømrerarbeid for tilbygg og bruksendring

Tømrerarbeid for oppføring av veranda, takoverbygg, trappenedløp og innvendige endringer i kjeller

Isolasjon Isolasjon for tilbygg og kjeller

Isolasjon i vegger, tak og gulv i tilbygg og kjellerrom som skal bli soverom

Rekkverk Rekkverk på veranda og trapp

Sikkerhetsrekkverk på veranda og trappenedløp

Grunnarbeid Grunnarbeid for trappenedløp og veranda

Grunnarbeid og fundamentering for ny trappenedløp og veranda

Elektro Elektrisk installasjon i tilbygg og kjeller

Elektrisk anlegg for belysning og stikkontakter i tilbygg og nye soverom i kjeller

VVS Ventilasjon og varme i kjeller

Ventilasjon og eventuelt varmeinstallasjon i kjellerrom som blir soverom

Vinduer Støyreduserende vinduer

Antall: 5

Vinduer med støyreduksjon på 38-40 dB, inkludert endring av fire vinduer på fasade vest og innsetting av nytt vindu på fasade nord

Støyreduserende vinduer for soverom i kjeller

Dører Ytterdør til kjeller

Antall: 1

Ny ytterdør på fasade nord til kjeller

Dør til ny inngang i kjeller

Fasade Veranda

Antall: 1

Veranda på 13 m² over trappenedløp på fasade nord

Ny veranda som del av tilbygg

Tak Takoverbygg

Antall: 1

Takoverbygg på 27,3 m² over eksisterende platting på fasade sør

Takoverbygg som del av tilbygg

Maling Maling av fasade og innvendige flater

Maling av ny veranda, takoverbygg og innvendige overflater i kjeller

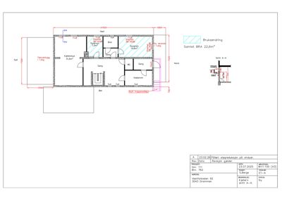
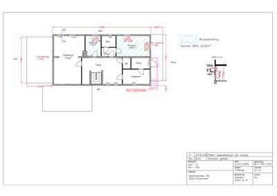
Plantegning

Enebolig 0.0 m²

Etasje 0 0.0 m²

Rom Areal Vinduer Dører
Kjellerstue K01 0.0 m² 0 1
Hobby K02 0.0 m² 0 1
Gang K03 0.0 m² 0 2
Bod K04 0.0 m² 0 1
Bod K05 0.0 m² 0 1
Badstue/Tørk K06 0.0 m² 0 1
Vask K07 0.0 m² 0 1
WC K08 0.0 m² 0 1
Dusj K09 0.0 m² 0 1
Kjellerstue Kjellerstue 31.6 m² 2 1
Kjellerstue 31.6 m² 2 1

Etasje 1 0.0 m²

Rom Areal Vinduer Dører
Stue 101 0.0 m² 2 1
Sove 102 0.0 m² 1 1
Sove 103 0.0 m² 1 1
Sove 104 0.0 m² 1 1
Kjøkken 105 0.0 m² 1 1
Gang 106 0.0 m² 0 2
Bad 107 0.0 m² 0 1
WC 108 0.0 m² 0 1
Søpeside 109 0.0 m² 0 1

Fasader

Enebolig

Nord
Taktype
Saltak
Vinduer
1
Dører
0
Synlige etasjer
1
Øst
Taktype
Saltak
Vinduer
4
Dører
1
Synlige etasjer
1
Vest
Taktype
Saltak
Vinduer
4
Dører
0
Balkonger
1
Synlige etasjer
1
Sør
Taktype
Saltak
Vinduer
4
Dører
0
Balkonger
1
Synlige etasjer
1

Hendelser

14.04.2026 Vestfoldveien 92 tillatelse til bruksendring av deler av kjelleretasje og oppføring av tilbygg med dispensasjon fra regulert byggegrense
25.02.2026 Vestfoldveien 92 Supplering av søknad 111/762
13.02.2026 Vestfoldveien 92, tilbakemelding angående støy og fristutsettelse
06.02.2026 Vestfoldveien 92, spørsmål angående krav om støyfaglig utredning
20.01.2026 Vestfoldveien 92, vi trenger flere opplysninger for å behandle søknaden din
19.11.2025 Vestfoldveien 92 Supplering av søknad 111/762
31.10.2025 Vestfoldveien 92, vi trenger flere opplysninger for å behandle søknaden din
03.10.2025 Vestfoldveien 92 Supplering av søknad 111/762
09.09.2025 Vestfoldveien 92, vi trenger flere opplysninger for å behandle søknaden din
01.09.2025 Vestfoldveien 92 Søknad om tillatelse til tiltak uten ansvarsrett 111/762