Extension Soeknad Enebolig

Tilbygg med vinterhage på Vraktangen 5, Fredrikstad

📍 Vraktangen 5 , 1676 KRÅKERØY

Nøkkelinfo

Sakstype
Tilbygg
Bygningstype
Enebolig
Bruksareal
21 m²
Boenheter
1
Kommune
Fredrikstad
Fylke
Østfold
Gnr / Bnr
432 / 25
Saksnummer
2026/9835
Fase
Søknad

Om byggesaken

Ny frittliggende vinterhage på 25 m² BYA og 20,6 m² BRA tilknyttet en eksisterende enebolig på Vraktangen 5. Tilbygget har saltak og er planlagt i tre, med tilhørende fasadetegninger som viser plassering og utforming mot alle himmelretninger. Eiendommen har en bolig på 131,6 m² BRA, anneks, sjøbod og garasje på naboeiendom. Vinterhagen er planlagt med store vindusflater og dører, og det er også opparbeidelse av hageområdet rundt. Bygget ligger i LNF-b område med krav til dispensasjon pga. byggeforbud i 100-metersbeltet langs sjøen.

Produkter og materialer

Grunnarbeid Fundamentering og grunnmur

Antall: 1

Fundament og grunnmur for vinterhage på 25 m² BYA

Grunnarbeid for tilbygg vinterhage

Fasade Vinduer og dører til vinterhage

🧱 Tre og glass

Store vindusflater og dører i vinterhagen, fasadetegninger viser plassering mot alle himmelretninger

Vinduer og dører med god isolasjon til vinterhage, tilpasset saltak og trefasade

Tak Saltak til vinterhage

🧱 Tre med taktekking

Antall: 1

Saltak som matcher eksisterende bolig, iht. tegninger

Takstruktur og taktekking til vinterhage

Isolasjon Isolasjon for vinterhage

Isolasjon for vegger, tak og gulv i vinterhage for oppvarmet rom

Isolasjon for å sikre god varmeisolering i vinterhage

Elektro Elektrisk anlegg til vinterhage

Elektrisk installasjon for belysning og stikkontakter i vinterhage

Elektrisk anlegg for vinterhage

VVS Oppvarming og ventilasjon

Oppvarming og ventilasjon til vinterhage for komfortabelt inneklima

VVS-installasjoner for vinterhage

Maling Utvendig og innvendig maling

Maling av trefasade og innvendige overflater i vinterhage

Overflatebehandling for vinterhage

Tømrer Bygging av tilbygg vinterhage

🧱 Tre

Antall: 1

Tømrerarbeid for oppføring av vinterhage i tre

Tømrerarbeid for konstruksjon av vinterhage

Terrasse Opparbeidelse av hage og uteområder

Opparbeidelse av hage rundt vinterhage, inkludert eventuelle terrasser

Utearbeider knyttet til vinterhage og hage

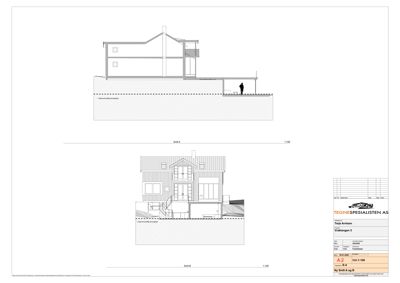
Fasader

Enebolig

Vest
Materiale
Tre
Taktype
Saltak
Vinduer
3
Dører
1
Balkonger
1
Synlige etasjer
2
Nord
Materiale
Tre
Taktype
Saltak
Vinduer
4
Dører
1
Synlige etasjer
2

Hendelser

17.04.2026 Referat - Forhåndskonferanse - Vraktangen 5 - Eiendom 432/25
30.03.2026 Forhåndskonferanse - Vraktangen 5 - Eiendom 432/25 - Vinterhage og opparbeidelse av hage