Extension UnderBehandling Enebolig

Tilbygg og bruksendring på enebolig i Wistings vei 52, Horten

📍 Wistings vei 52A , 3182 HORTEN

Nøkkelinfo

Sakstype
Tilbygg
Bygningstype
Enebolig
Bruksareal
415 m²
Boenheter
5
Kommune
Horten
Fylke
Vestfold
Gnr / Bnr
128 / 488
Saksnummer
2025/964
Fase
Under behandling

Om byggesaken

Prosjektet omfatter et tilbygg på ca. 20 m² og et frittstående sykkelskur på ca. 8 m² til en eksisterende enebolig med 5 boenheter i Wistings vei 52, Horten. Det inkluderer bruksendring fra tilleggsdel til hoveddel, innvendig ombygging med etablering av nytt kjøkken, bad og vaskerom i tidligere carport- og bodarealer, samt fasadeendringer med nye vinduer og dører. Bygningen har to etasjer med saltak og trekledning. Totalt bruksareal er ca. 414,6 m². Utnyttelsen av tomten overskrider kommuneplanens tillatte bebygd areal (BYA) på 30 %, med ca. 40-46 % inkludert parkering, og det søkes derfor dispensasjon. Parkering ivaretas med 6 plasser på eiendommen. Det foreligger midlertidige brukstillatelser for tre av leilighetene som må rettes opp før videre behandling. Prosjektet inkluderer også oppdaterte situasjonsplaner og fasadetegninger.

Produkter og materialer

Innvendig Kjøkken

Antall: 1

Nytt kjøkken i tidligere carport-areal

Innvendig ombygging med nytt kjøkken

Tømrer Ombygging og montering av trekonstruksjoner

🧱 Tre

Innvendig ombygging, tilbygg og fasadeendring

Tømrerarbeider for ombygging, tilbygg og fasadeendring

Elektro Elektriske installasjoner

Elektriske installasjoner i ombygde og nye arealer

Elektriske installasjoner for tilbygg og ombygging

Maling Innvendig og utvendig maling

Maling av fasade og innvendige flater etter ombygging

Maling og overflatebehandling

Garasjeport Frittstående sykkelskur

🧱 Tre

Antall: 1

Frittstående sykkelskur på ca. 8 m²

Frittstående sykkelskur

Bad Vaskerom

Antall: 1

Nytt vaskerom i tidligere carport-areal

Innvendig ombygging med nytt vaskerom

Bad Nytt bad

Antall: 1

Nytt bad i tidligere carport-areal

Innvendig ombygging med nytt bad

Fasade Dører

🧱 Tre

Antall: 7

Nye dører i fasadeendring, inkludert 2 nord, 4 sør, 1 vest

Nye ytterdører i tre for fasadeendring

Grunnarbeid Parkering

Antall: 6

6 parkeringsplasser på eiendommen, hver ca. 18 m²

Opparbeidelse av parkeringsplasser iht. krav

Tilbygg En-etasjes tilbygg

🧱 Tre, isolasjon, kledning

Antall: 1

Tilbygg på ca. 20 m² med boder mot øst

Nytt en-etasjes tilbygg på 20 m²

VVS Sanitærinstallasjoner

Nye sanitærinstallasjoner for bad og vaskerom

Sanitærinstallasjoner i ombygde arealer

Mur Fundamentering og grunnmur

🧱 Betong

Fundamentering for tilbygg og eksisterende bygg

Grunnmur og fundamentering for tilbygg og eksisterende bygg

Fasade Vinduer

🧱 Tre, 3-lags energiglass

Antall: 20

Nye vinduer i fasadeendring, inkludert 6 vinduer nord, 10 sør, 3 vest og 1 øst

Nye fasadevinduer i tre med energiglass for fasadeendring

Rekkverk Rekkverk på balkonger

🧱 Tre

Antall: 3

Rekkverk på 3 balkonger

Rekkverk for balkonger i eksisterende bygg

Terrasse Uteoppholdsareal

Uteoppholdsareal på eiendommen, men begrenset areal

Opparbeidelse av uteoppholdsareal

Tak Saltak

🧱 Tre, takstein

Antall: 1

Eksisterende saltak på to etasjer, fasadeendring og tilbygg tilpasses eksisterende takform

Saltak med takstein på eksisterende og tilbygg

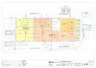
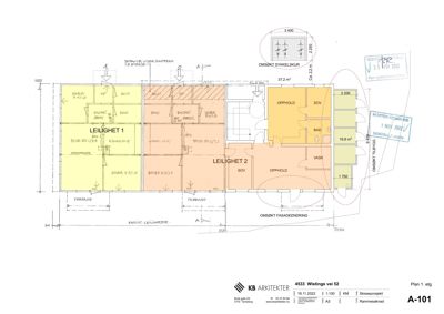
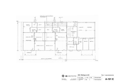
Plantegning

Leilighet 414.6 m²

Etasje 1 316.6 m²

Rom Areal Vinduer Dører
Stue 101 25.1 m² 1 1
Soverom 102 9.4 m² 1 1
Bod 103 0.0 m² 0 1
Entré 104 0.0 m² 0 2
Bad 105 0.0 m² 0 1
Stue 201 25.1 m² 1 1
Soverom 202 9.4 m² 1 1
Bod 203 0.0 m² 0 1
Entré 204 0.0 m² 0 2
Bad 205 0.0 m² 0 1
Opphold 301 19.1 m² 1 1
Soverom 302 6.5 m² 1 1
Bad 303 5.2 m² 0 1
Vask 304 4.8 m² 0 1
Opphold 305 24.5 m² 1 1
Soverom 306 9.5 m² 1 1
Soverom 106 9.4 m² 1 1
Bod 107 1.0 m² 0 1
Entre 108 0.0 m² 0 1
Carport 109 0.0 m² 0 0
Bod 110 0.0 m² 0 0
Bod 111 0.0 m² 0 0
Bod 112 0.0 m² 0 0
Entré 113 0.0 m² 0 1
Gang 114 0.0 m² 0 0
Trapperom 115 0.0 m² 0 1
Carport 116 0.0 m² 0 1
Carport 117 0.0 m² 0 1

Etasje 2 98.0 m²

Rom Areal Vinduer Dører
Stue/Kjøkken 201 41.0 m² 3 1
Soverom 202 11.5 m² 1 1
Soverom 203 7.5 m² 1 1
Soverom 204 10.3 m² 1 1
Soverom 205 6.5 m² 1 1
Bod 206 3.0 m² 0 1
Bod 207 3.0 m² 0 1
Bod 208 3.0 m² 0 1
Bad/Vask 209 5.7 m² 0 1
Bad/Vask 210 7.4 m² 0 1
Svalgang 211 0.0 m² 0 0
Svalgang 212 12.4 m² 2 1

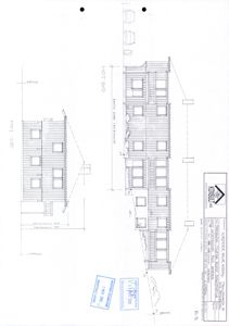
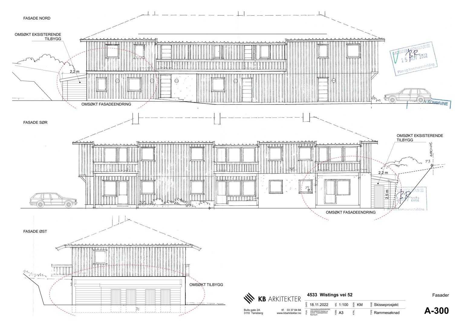
Fasader

Enebolig

Nord
Materiale
Tre
Taktype
Saltak
Høyde
4.8 m
Vinduer
6
Dører
2
Balkonger
1
Synlige etasjer
2
Sør
Materiale
Tre
Taktype
Saltak
Høyde
6.2 m
Mønehøyde
8.2 m
Vinduer
10
Dører
4
Balkonger
3
Synlige etasjer
2
Øst
Materiale
Tre
Taktype
Saltak
Høyde
4.8 m
Vinduer
1
Dører
0
Synlige etasjer
2
Vest
Materiale
Tre
Taktype
Saltak
Høyde
6.2 m
Mønehøyde
8.2 m
Vinduer
3
Dører
1
Synlige etasjer
2

Hendelser

20.04.2026 Wistings vei 52 - spørsmål om status
12.12.2025 128/488 - Wistings vei 52 - bruksendring fra tilleggsdel til hoveddel, innvendig ombygging og fasadeendring - tilbygg - dispensasjon - bekrefter mottak
25.11.2025 128/488 - Wistings vei 52 - bruksendring fra tilleggsdel til hoveddel, innvendig ombygging og fasadeendring - tilbygg - dispensasjon - supplering av søknad
13.11.2025 128/488 - Wistings vei 52 - bruksendring fra tilleggsdel til hoveddel, innvendig ombygging og fasadeendring - tilbygg - tilbakemelding
30.10.2025 128/488 - Wistings vei 52 - Rammesøknad - bruksendring fra tilleggsdel til hoveddel, innvendig ombygging og fasadeendring - tilbygg
30.09.2025 Purring status resterende søknader
14.02.2025 Spørsmål om status i byggesøknad - ny påminnelse
17.01.2025 Spørsmål om status i byggesøknad