ChangeOfUse UnderBehandling Fritidsbolig

Bruksendring, fasadeendring og tilbygg på fritidsbolig i Båtmannskaret 6

📍 Båtmannskaret 6 , 1455 NORDRE FROGN

Nøkkelinfo

Sakstype
Bruksendring
Bygningstype
Fritidsbolig
Bruksareal
90 m²
Boenheter
1
Kommune
Frogn
Fylke
Akershus
Gnr / Bnr
59 / 710
Saksnummer
26/10356
Fase
Under behandling

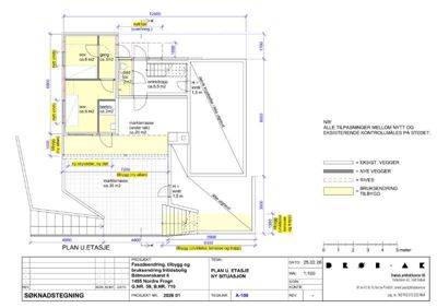
Om byggesaken

Eksisterende fritidsbolig fra ca. 1959 med påbygg og tilbygg fra senere år oppgraderes med bruksendring fra bod/kott til hoveddel med våtrom, inkludert senking av gulv for økt romhøyde. Fasadeendringer omfatter riving og oppføring av nye vinduer, skyvedører, dør og nytt tak over inngangsparti med heving av takhøyde 7,5-10 cm for bedre isolasjon og lufting. Tilbygg består av ny altan på ca. 10 m² og utvidelse av terrasse og trapp mot vest, med glassrekkverk som oppgraderes til forskriftskrav. Tiltaket inkluderer også utskifting av ytterkledning til ubehandlet treverk for bedre tilpasning til terreng og natur. Eiendommen ligger i bratt terreng med støttemur i naturstein og vegetasjon som ivaretas. Våtrom tilknyttes offentlig vann- og avløpsnett. Parkering og adkomst opprettholdes uendret. Tiltaket er delvis utført uten tidligere godkjenning og søkes ettergodkjent med dispensasjon fra byggeforbudssone langs sjøen.

Produkter og materialer

Gulv Betong og isolasjon

Gulv senkes 10 cm for å oppnå minimum romhøyde 2,0 m, endring av bærekonstruksjon

Endring av bærekonstruksjon i gulv i forbindelse med bruksendring fra bod til oppholdsrom

Fasade Trekledning

🧱 Ubehandlet treverk

Ny ytterkledning i ubehandlet treverk med naturlig treoverflate

Skifte av ytterkledning pga. elde og råte, til ubehandlet treverk for bedre tilpasning

Vinduer Fasadevindu

🧱 Tre

Antall: 8

8 nye fasadevinduer i treverk som del av fasadeendring

Tømrer Tømrerarbeid

Utførelse av tømrerarbeid og montering av trekonstruksjoner i forbindelse med bruksendring, fasadeendring og tilbygg

Tømrerarbeid for bruksendring, fasadeendring og tilbygg

VVS Vann- og avløpsanlegg

Tilknytning til offentlig vann- og avløpsnett via Båtstø Vann og Avløp SA

Våtrom tilknyttet offentlig vann- og avløpsanlegg

Terrasse Altan

🧱 Tre og glassrekkverk

Antall: 1

Ny altan ca. 10 m² med glassrekkverk som oppgraderes til 1 m høyde

Ny altan mot vest med glassrekkverk iht. TEK17 høydekrav

Rekkverk Glassrekkverk

🧱 Glass og aluminium

Glassrekkverk på altan og terrasse oppgraderes til 1 m høyde iht. TEK17

Sikkerhetsrekkverk på terrasse og altan

Terrasse Terrasse og trapp

🧱 Naturstein og glassrekkverk

Antall: 1

Utvidelse av terrasse og trapp med støttemur i naturstein og glassrekkverk oppgradert til 1 m høyde

Utvidelse terrasse og trapp mot vest med sikkerhetsrekkverk og støttemur

Isolasjon Vegger og gulv

🧱 Mineralull

Tilleggsisolering av yttervegg og gulv på grunn med U-verdier ca. 0,25-0,30 W/m2K vegg og 0,35 W/m2K gulv

Isolasjon i vegger og gulv i forbindelse med bruksendring og oppgradering av våtrom

Dører Ytterdør

🧱 Tre

Antall: 1

1 ny ytterdør i fasadeendring

Grunnarbeid Støttemur i naturstein

🧱 Naturstein

Støttemur i naturstein rundt terrasse og trapp for sikring mot bratt terreng

Støttemur for terrengtilpasning og sikkerhet

Dører Skyvedør

🧱 Tre/Glass

Antall: 2

Ny skyvedør i 1. etasje med U-verdi ca. 1,6 W/m2K

2 nye skyvedører, en justert til skyvedør og dør, delvis i eksisterende åpning

Maling Overflatebehandling treverk

🧱 Maling/lakk

Ny kledning leveres ubehandlet, men kan senere behandles for beskyttelse

Overflatebehandling av ny trekledning

Tak Saltak

🧱 Tre med shingel

Antall: 1

Nytt tak over inngangsparti, tak heves 7,5-10 cm for lufting og isolasjon

Nytt tak over inngangsparti med forbedret lufting og isolasjon

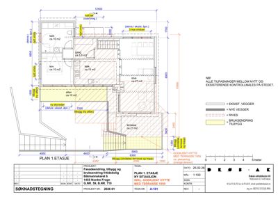
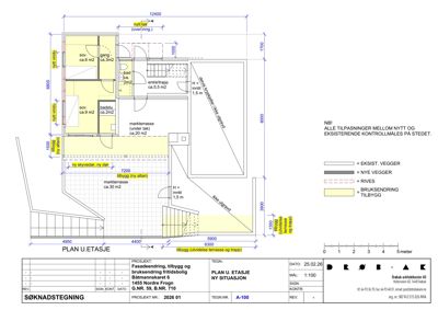
Plantegning

Enebolig 287.2 m²

Etasje 1 120.5 m²

Rom Areal Vinduer Dører
Stue 101 27.0 m² 1 1
Kjøkken 102 15.0 m² 0 1
Gang 103 5.5 m² 1 2
Sov 104 10.0 m² 1 1
Bad 105 10.0 m² 1 1
Altan 106 10.0 m² 1 1
Terrasse 107 21.0 m² 0 0

Etasje 0 118.7 m²

Rom Areal Vinduer Dører
Entré/trapp 001 5.5 m² 0 1
Bad 002 2.0 m² 0 1
Badstu 003 2.0 m² 0 1
Sov. (øvre) 004 6.0 m² 1 1
Gang 005 3.0 m² 0 1
Sov. (nedre) 006 9.0 m² 1 1
Markterrasse (under tak) 007 20.0 m² 0 0
Markterrasse (tilbygg) 008 30.0 m² 0 1

Etasje 2 48.0 m²

Rom Areal Vinduer Dører
Soverom 201 21.0 m² 1 1
Soverom 202 21.0 m² 1 1
Gang 203 6.0 m² 0 2

Hytte 48.0 m²

Etasje 0 48.0 m²

Rom Areal Vinduer Dører
Bod 0 18.0 m² 0 1
Gang 0 12.0 m² 0 1
Teknisk rom 0 18.0 m² 0 1

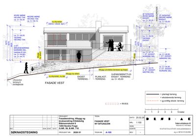
Fasader

Hytte

Nord
Materiale
Tre
Taktype
Pulttak
Høyde
5.3 m
Mønehøyde
6.3 m
Vinduer
4
Dører
1
Synlige etasjer
1
Sør
Materiale
Stein
Taktype
Pulttak
Høyde
5.0 m
Mønehøyde
5.0 m
Vinduer
1
Dører
1
Synlige etasjer
1
Øst
Materiale
Tre
Taktype
Pulttak
Høyde
2.4 m
Vinduer
2
Dører
1
Synlige etasjer
1
Vest
Materiale
Tre
Taktype
Pulttak
Vinduer
3
Dører
0
Synlige etasjer
1
Ukjent
Materiale
Tre
Taktype
Saltak
Høyde
2.4 m
Vinduer
2
Dører
0
Synlige etasjer
1

Hendelser

21.04.2026 26/10356-3 Ber om uttalelse - 59/710/0/0 - Båtmannskaret 6 - Bruksendring fra tilleggsdel til hoveddel - Endring - Innvendig - Fasade - Tilbygg - Fritidsbolig
24.03.2026 26/10356-1 Søknad om rammetillatelse - 59/710/0/0 - Båtmannskaret 6 - Bruksendring fra tilleggsdel til hoveddel - Endring - Innvendig - Fasade - Tilbygg - Fritidsbolig