ChangeOfUse UnderBehandling Fritidsbolig

Bruksendring og bryggeutvidelse ved Nedstrandsvegen 136/15

📍 Nedstrandsvegen 101 , 5567 SKJOLDASTRAUMEN

Nøkkelinfo

Sakstype
Bruksendring
Bygningstype
Fritidsbolig
Bruksareal
170 m²
Boenheter
1
Kommune
Tysvær
Fylke
Rogaland
Gnr / Bnr
136 / 15
Saksnummer
2024/2886
Fase
Under behandling

Om byggesaken

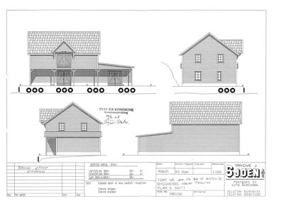
Bruksendring av et eldre naust/næringsbygg fra 1950-tallet til fritidsbolig, med ombygging av 2. etasje til oppholdsrom med 2 soverom og hems, samt delvis bruksendring av 1. etasje. Bygget har saltak og tre som fasademateriale. Det planlegges en mindre utvidelse av eksisterende brygge med 2,5 x 3,5 meter, samt etablering av et felles nedgravd avløpsanlegg for to eiendommer. Flytebrygge og større bryggeutvidelser med utriggere er ikke godkjent og må fjernes. Bygget ligger i LNF-område med funksjonell strandsone, og tiltakene krever dispensasjon fra plan- og bygningsloven. Bygget er utsatt for stormflo, og det er stilt krav til dokumentasjon av sikkerhet i henhold til TEK17. Prosjektet innebærer bevaring og tilpasning av eksisterende bygningsmasse med hensyn til kulturhistorie og miljø.

Produkter og materialer

Avløpsanlegg Felles slamavskiller med ledninger og utslipp

🧱 PVC rør, slamavskiller

Antall: 1

Felles slamavskiller for to eiendommer, nedgravd, utslipp på 15 meters dybde

Avløpsanlegg for miljøvennlig håndtering av avløpsvann

Brygge Betongutvidelse av brygge

🧱 Betong

Antall: 1

Utvidelse av eksisterende brygge med 2,5 x 3,5 meter betongplate

Utvidelse av brygge for bedre fortøyning

Isolasjon Isolasjon i vegger og tak

🧱 Mineralull eller tilsvarende

Isolasjon iht. TEK17 eller unntak med dokumentasjon

Isolasjon for oppvarmet fritidsbolig

Grunnarbeid Sti og adkomst

🧱 Grus og stedlige masser

Opparbeidet sti ca 16 meter fra sjøplan til traktorveg, adkomst via landbrukseiendom

Adkomststi til eiendommen

Brygge Utriggere

🧱 Metall/tre

Antall: 4

Planlagt nye utriggere på brygge, ikke godkjent

Utriggere for fortøyning av båter

Tømrer Innvendig ombygging

🧱 Treverk, isolasjon

Ombygging av 2. etasje til fritidsbolig med soverom, hems og oppholdsrom

Innvendig tilpasning for fritidsbolig

Vinduer Fasadevindu

🧱 Tre eller tilsvarende

Antall: 7

Vinduer i 1. og 2. etasje, må tåle stormflo krav

Vinduer til oppholdsrom i 2. etasje og stue/kjøkken i 1. etasje

Tak Saltak

🧱 Takstein eller plater

Antall: 1

Takkonstruksjon ivaretatt som opprinnelig, tak skiftet i 2008

Tak på fritidsboligen

Dører Ytterdører og innerdører

🧱 Tre eller tilsvarende

Antall: 7

Dører i 1. og 2. etasje, inkludert inngangsdør og dører til rom

Dører for adkomst og rom i fritidsboligen

Brygge Flytebrygge

🧱 Flytende konstruksjon

Antall: 1

Eksisterende flytebrygge med plass til 3 småbåter og 1 sjark, ikke godkjent, skal fjernes

Flytebrygge for fortøyning av båter, ønskes fjernet

Fasade Tre fasade med saltak

🧱 Tre

Saltak, trepanel, fasadeendring godkjent 2008

Bevaring og vedlikehold av eksisterende trefasade med saltak

Gulv Innvendige gulv

🧱 Parkett eller laminat

Oppgradering av gulv i oppholdsrom

Gulvbelegg for fritidsbolig

VVS Sanitærinstallasjoner

Bad, toalett og kjøkken med sanitærutstyr

Sanitærinstallasjoner for fritidsbolig

Elektro Elektrisk installasjon

Oppgradering av elektrisk anlegg til fritidsboligstandard

Elektrisk installasjon for boligbruk

Plantegning

Enebolig 80.0 m²

Etasje 1 80.0 m²

Rom Areal Vinduer Dører
Stue 101 40.0 m² 2 1
Kjøkken 102 15.0 m² 1 1
V/C 103 5.0 m² 0 1
Baderom 104 10.0 m² 0 1
Lager 105 10.0 m² 0 1

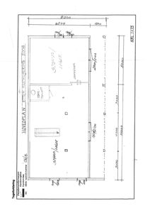
Etasje 2 0.0 m²

Rom Areal Vinduer Dører
Sov. 1 201 0.0 m² 0 1
HEMS 202 0.0 m² 0 0
Sov. 2 203 0.0 m² 0 1
Oppholdsrom 204 0.0 m² 0 0

Fasader

Enebolig

Vest
Materiale
Tre
Taktype
Saltak
Vinduer
2
Dører
2
Synlige etasjer
2
Sør
Materiale
Tre
Taktype
Saltak
Vinduer
2
Dører
0
Synlige etasjer
2
Øst
Materiale
Tre
Taktype
Saltak
Vinduer
2
Dører
0
Synlige etasjer
2

Garasje

Nord
Materiale
Tre
Taktype
Pulttak
Vinduer
0
Dører
1
Synlige etasjer
1

Hendelser

16.04.2026 Gbnr 136/15 - Forhåndsvarsel om pålegg om retting og tvangsmulkt - Utfylling i sjø og flytebrygge - Nedstrandsvegen
18.02.2026 Gbnr 136/15 - Klagevedtak - stadfester avslag - bruksendring fra næringsbygg til fritidsbolig - flytebrygge - Nedstrandsvegen
27.11.2025 Gbnr 136/15 - Melding om vedtak i klagesak - Dispensasjon - Flytebrygge - Nedstrandvegen
26.11.2025 Gbnr 136/15 - Tysvær kommune - Oversender vedtak i klagesak til Statsforvalteren - Dispensasjon - Flytebrygge - Nedstrandsvegen
06.08.2025 Gbnr 136/15 - Stadfesta mottatt klage - avslag på søknad om dispensasjon for flytebrygge og brygge med uteriggere - Nedstrandsvegen
14.07.2025 Gbnr 136/15 - Klage på vedtak - flytebrygge/utriggere - Nedstrandsvegen
23.06.2025 Gbnr 136/15 - Vedtak i klagesak - Dispensasjon - Bruksendring fra næringsbygg til fritidsbolig - Nedstrandsvegen
20.02.2025 Gbnr. 136/15 - Svar på innsynsbegjæring - Bruksendring fra næringsbygg til fritidseiendom - Nedstrandsvegen
03.02.2025 Gbnr 136/15 - Klage på vedtak om dispensasjon - bruksendring - brygge - avløpsanlegg - Nedstrandsvegen
10.01.2025 Svar på utsatt klagefrist - gnr. 136 bnr. 15 - Nedstrandsvegen
07.01.2025 Ber om utsettelse - bruksendring fra næringsbygg til fritidsbolig - gnr. 136 bnr. 15 - Nedstrandsvegen
06.01.2025 Tillatelse til utvidelse av brygge og avløpsanlegg - gnr. 136 bnr. 15 - Nedstrandsvegen
06.01.2025 Vedtak om dispensasjon - Bruksendring - Brygge - Avløpsanlegg - gnr. 136 bnr. 15 - Nedstrandsvegen
15.10.2024 Uttalelse - Dispensasjon - Bruksendring fra næringsbygg til fritidsbolig - Brygge - Avløpsanlegg - gnr. 136 bnr. 15 - Nedstrandsvegen
07.10.2024 Uttale - Dispensasjon - Bruksendring - Fra næringsbygg til fritidsbolig - gnr. 136 bnr. 15 - Nedstrandsvegen
04.10.2024 Uttale - Dispensasjon - Bruksendring, fra næringsbygg til fritidsbolig - Brygge - Avløpsanlegg - gnr. 136 bnr. 15 - Nedstrandsvegen
23.09.2024 Uttale til søknad om brygge med utriggere og utslippsledning til sjø - gnr. 136 bnr. 15
06.09.2024 Oversender søknad til uttalelse - Dispensasjon - Bruksendring, fra næringsbygg til fritidsbolig - Brygge - Avløpsanlegg - gnr. 136 bnr. 15 - Nedstrandsvegen
19.08.2024 Søknad om dispensasjon - Bruksendring - Fra næringsbygg til fritidsbolig - gnr. 136 bnr. 15 - Nedstrandsvegen
05.07.2024 Tilbakemelding om mangler - Bruksendring - Fra næringsbygg til fritidsbolig - gnr. 136 bnr. 15 - Nedstrandsvegen
01.07.2024 Gnr. 136 bnr. 15 - Søknad - Bruksendring - Fra næringsbygg til fritidsbolig - Nedstrandsvegen