ChangeOfUse UnderBehandling Fritidsbolig

Bruksendring og fasadeendring på fritidsbolig, Varpet 33

📍 Varpet 33 , 3961 STATHELLE

Nøkkelinfo

Sakstype
Bruksendring
Bygningstype
Fritidsbolig
Bruksareal
66 m²
Boenheter
1
Kommune
Bamble
Fylke
Telemark
Gnr / Bnr
35 / 2
Saksnummer
2026/2206
Fase
Under behandling

Om byggesaken

Eksisterende fritidsbolig på ca. 53 m² isolert bruksareal fra 1984 får innbygget overdekket veranda på ca. 13,5 m², som omgjøres fra uteareal til innvendig oppholdsareal. Byggets volum, høyder og plassering endres ikke, og det etableres ikke nytt bebygd areal eller terrenginngrep. Fasadeendringen innebærer mindre justeringer innenfor eksisterende bygningsmasse. Tiltaket forbedrer funksjonaliteten med flere soveplasser og bedre entre, tilpasset familieforøkelse. Bygget er en trebygget fritidsbolig med saltak og flatt tak, og ligger i 100-metersbeltet langs sjø i etablert hyttefelt. Prosjektet inkluderer teknisk oppgradering med bedre fuktsikring, energieffektivisering og solcellepaneler.

Produkter og materialer

Isolasjon Isolering av innbygget veranda

Isolering for å omgjøre veranda til oppholdsareal

Isolasjon for å sikre innvendig oppholdsareal i tidligere veranda

VVS Oppgradering av fuktsikring

Tiltaket omfatter bedre fuktsikring av konstruksjoner

Forbedring av fuktsikring for å øke byggets levetid

Elektro Smartstyring av strøm

Inkluderer smartstyring av strøm som del av energieffektivisering

Teknisk oppgradering for bedre energistyring

Tak Eksisterende saltak og flatt tak

🧱 Tre

Antall: 1

Takets volum og høyder beholdes uendret, eksisterende saltak og flatt tak

Ingen endring i takets volum eller høyde, men teknisk oppgradering kan forekomme

Vinduer Oppgraderte vinduer

🧱 Ikke spesifisert

Antall: 0

Oppgradering av vinduer som del av teknisk oppgradering, muligens med bedre isolasjon

Oppgradering av eksisterende vinduer for bedre energieffektivitet

Tømrer Innbygging og fasadeendring

🧱 Tre

Innbygging av veranda, fasadejusteringer innenfor eksisterende volum

Tømrerarbeid for innbygging av veranda og fasadeendring

Fasade Innbygging av overdekket veranda

🧱 Tre

Antall: 1

Innbygging innenfor eksisterende takflate, volum og fundamenter, med mindre fasadejusteringer

Bygge inn eksisterende overdekket veranda til innvendig oppholdsareal uten økning i bebygd areal

Solceller Solcellepaneler

Montering av solcellepaneler som del av teknisk oppgradering

Energieffektivisering med solcellepaneler

Gulv Innvendig gulv i innbygget veranda

Nytt innvendig gulv i det innbygde verandaarealet

Gulv for nytt innvendig oppholdsareal

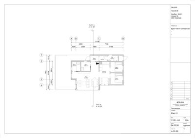
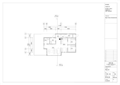
Plantegning

Enebolig 82.0 m²

Etasje 1 82.0 m²

Rom Areal Vinduer Dører
Stue 101 22.9 m² 1 1
Kjøkken 102 10.4 m² 0 1
Entre 103 2.0 m² 0 1
Bad 104 2.7 m² 0 1
Sov 1 105 3.6 m² 1 1
Sov 2 106 4.0 m² 1 1
Sov 3 107 5.9 m² 1 1
Sov 4 108 6.2 m² 1 1

Fasader

Enebolig

Nord
Materiale
Tre
Taktype
Saltak
Vinduer
3
Dører
1
Balkonger
1
Synlige etasjer
2
Sør
Materiale
Tre
Taktype
Flatt tak
Vinduer
3
Dører
0
Balkonger
1
Synlige etasjer
2
Vest
Materiale
Tre
Taktype
Flatt tak
Vinduer
2
Dører
0
Balkonger
1
Synlige etasjer
1
Øst
Materiale
Tre
Taktype
Saltak
Vinduer
2
Dører
1
Synlige etasjer
1

Hendelser

21.04.2026 Oversendelse av dispensasjonssøknad - gbnr. 35/2/1 - Varpet 33 - bruksendring
26.03.2026 Søknad om tillatelse til tiltak - rammetillatelse - gbnr. 35/2/1 - Varpet 33