FacadeChange Soeknad Fritidsbolig

Fasadeendring med nytt mønetak og vinduer på fritidsbolig, Åsane 12

📍 Åsane 12 , 6220 STRAUMGJERDE

Nøkkelinfo

Sakstype
Fasadeendring
Bygningstype
Fritidsbolig
Boenheter
1
Kommune
Sykkylven
Fylke
Møre og Romsdal
Gnr / Bnr
29 / 121
Saksnummer
2026/848
Fase
Søknad

Om byggesaken

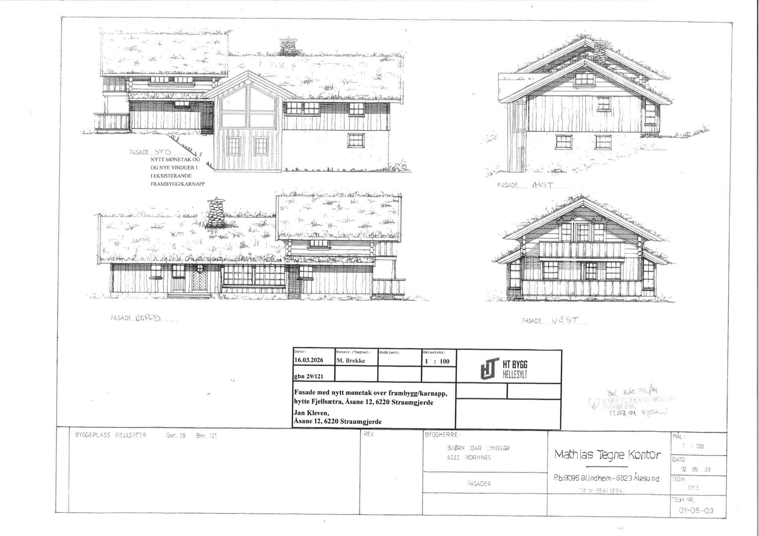
Fritidsboligen på Åsane 12 gjennomgår en fasadeendring hvor det bygges et nytt mønetak over det eksisterende frambygget/karnappet. Endringen inkluderer også utskifting og økning av antall vinduer i dette området for å forbedre lysinnslipp og estetikk. Bygget har to etasjer, trekledning og saltak, og det oppføres nye takflater over karnappet. Terrenget rundt sydfasaden er lavere enn opprinnelig, noe som er dokumentert i situasjonsplanen. Arbeidet omfatter rehabilitering av skadet bygningsdel og tilpasning til eksisterende byggematerialer og konstruksjoner.

Produkter og materialer

Vinduer Fasadevindu i karnapp/frambygg

🧱 tre eller tilsvarende, energiglass ikke spesifisert

Antall: 4

Nye vinduer i fasaden på karnapp/frambygg, antall og plassering i henhold til fasadetegning

Utskifting og tillegg av vinduer i karnapp for økt lysinnslipp

Fasade Tre kledning

🧱 tre

Rehabilitering av fasade med tre kledning på frambygg/karnapp

Rehabilitering av skadet trepanel på frambygg/karnapp i forbindelse med fasadeendring

Tak Nytt mønetak over frambygg/karnapp

🧱 tre, saltak

Antall: 1

Nytt saltak over eksisterende karnapp, tilpasset eksisterende takstruktur

Oppføring av nytt saltak med møne over frambygg/karnapp på fritidsboligen

Grunnarbeid Terrengtilpasning

Terreng foran sydfasade er lavere enn opprinnelig, vurdering og eventuell tilpasning nødvendig

Grunnarbeid for tilpasning av terreng rundt karnapp/frambygg

Tømrer Rehabilitering og nybygg av karnapp

Alt tømrerarbeid knyttet til nytt mønetak og fasadeendring

Utførelse av tømrerarbeid for nytt mønetak og fasadeendring

Fasader

Hytte

Sør
Materiale
Tre
Taktype
Saltak
Vinduer
4
Dører
0
Balkonger
1
Synlige etasjer
2
Nord
Materiale
Tre
Taktype
Saltak
Vinduer
5
Dører
1
Synlige etasjer
2
Øst
Materiale
Tre
Taktype
Saltak
Vinduer
3
Dører
0
Synlige etasjer
2
Vest
Materiale
Tre
Taktype
Saltak
Vinduer
5
Dører
0
Synlige etasjer
2

Hendelser

16.04.2026 29/121 - Spørsmål om fasadeendring
14.04.2026 29/121 - Svar på motteken søknad
13.04.2026 29/121 - Søknad om løyve i eitt trinn