FacadeChange Rammetillatelse Fritidsbolig

Fasadeendring og ombygging av fritidsbolig på Blindtarmen 227

📍 Blindtarmen 227 , 2848 SKREIA

Nøkkelinfo

Sakstype
Fasadeendring
Bygningstype
Fritidsbolig
Bruksareal
70 m²
Boenheter
1
Kommune
Østre Toten
Fylke
Innlandet
Gnr / Bnr
64 / 5
Saksnummer
2026/1657
Fase
Rammetillatelse

Om byggesaken

Eksisterende fritidsbolig på 70 m² med saltak og trekledning gjennomgår fasadeendring og mindre ombygging. Tiltaket inkluderer etablering av en ark i takflaten, flere og større vinduer med sprosser, samt en mindre utvidelse innenfor eksisterende takoverbygg. Bygningens hovedvolum, takform og skala videreføres, og fasadeendringen gir et mer åpent og helhetlig arkitektonisk uttrykk som harmonerer med eksisterende båthus/anneks på eiendommen. Utvidelsen medfører ingen økning i bebygd areal og ingen terrenginngrep. Hytta har tre soverom og en kombinert stue/kjøkken, og fasadene består av tre med saltak og varierende antall vinduer og dører.

Produkter og materialer

Tømrer Ombygging og mindre utvidelse

Mindre ombygging av eksisterende bygningsmasse, inkludert fjerning av vedskur

Tømrerarbeid for ombygging, arkbygging og mindre utvidelse under eksisterende takoverbygg

VVS Vann og avløp

Ingen innlagt vann eller vannspylende toalett uten tilknytning til offentlig avløp

VVS-arbeider knyttet til eksisterende tilknytning, ingen nye installasjoner

Tak Ark i takflate

🧱 tre, saltak

Antall: 1

Arkens lengde mindre enn en tredjedel av takets lengde, vesentlig lavere enn mønehøyde

Etablering av ark i eksisterende saltak for økt volum og lysinnslipp

Fasade Stående trekledning

🧱 tre

Fasade med stående trekledning, enkel og rolig detaljering, tilpasset tradisjonell hyttebebyggelse

Oppgradering og vedlikehold av fasadekledning i tre

Vinduer Fasadevindu med sprosser

🧱 tre/aluminium ikke spesifisert

Antall: 4

Flere og større vinduer enn eksisterende, med sprosser for å dempe inntrykk

Nye større fasadevinduer med sprosser for bedre dagslys og arkitektonisk uttrykk

Maling Utvendig maling

🧱 maling til treverk

Fasade males for å opprettholde tradisjonelt uttrykk og beskytte trekledning

Maling av fasade og eventuelle nye trekonstruksjoner

Dører Ytterdør

🧱 tre eller tilsvarende

Antall: 2

To dører i byggets fasader, inkludert inngangsparti som er enkelt markert

Ytterdører tilpasset fasadeendring og ombygging

Grunnarbeid Ingen nye grunnarbeider

Ingen terrenginngrep eller nye fundamenter, utvidelse innenfor eksisterende bygningsvolum

Ingen nye grunnarbeider nødvendig

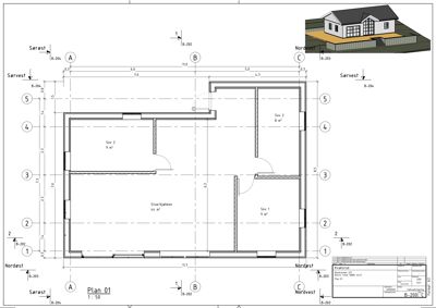
Plantegning

Enebolig 70.0 m²

Etasje 1 70.0 m²

Rom Areal Vinduer Dører
Stue/kjøkken 101 44.0 m² 3 2
Sov 1 102 9.0 m² 1 1
Sov 2 103 9.0 m² 1 1
Sov 2 104 8.0 m² 1 1

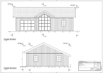
Fasader

Enebolig

Nordvest
Materiale
Tre
Taktype
Saltak
Høyde
3.0 m
Vinduer
0
Dører
0
Synlige etasjer
1
Sørøst
Materiale
Tre
Taktype
Saltak
Vinduer
2
Dører
1
Synlige etasjer
1
Sørvest
Materiale
Tre
Taktype
Saltak
Vinduer
1
Dører
0
Synlige etasjer
1
Nordøst
Materiale
Tre
Taktype
Saltak
Høyde
3.0 m
Vinduer
1
Dører
0
Synlige etasjer
1

Hendelser

21.04.2026 Gbnr 64/5 - Blindtarmen 227 - Fasadeendring og ombygging - Godkjenningsvedtak
07.04.2026 Gbnr 64/5 - Blindtarmen 227 - Søknad om tiltak