FacadeChange Ferdigattest Fritidsbolig

Fasadeendring med ny kledning, tak og vinduer på Håbu 19, Vesterøy

📍 Håbu 25 , 1684 VESTERØY

Nøkkelinfo

Sakstype
Fasadeendring
Bygningstype
Fritidsbolig
Bruksareal
108 m²
Boenheter
1
Kommune
Hvaler
Fylke
Østfold
Gnr / Bnr
36 / 76
Saksnummer
2022/1977
Fase
Ferdigattest

Om byggesaken

Fritidsboligen på Håbu 19, Vesterøy, gjennomgår omfattende fasadeendringer med utskiftning av all kledning til stående vedlikeholdsfritt panel som gråner naturlig over tid, samt nye gråtonede karmer og listverk. Taktekking endres fra mørk papp til grå zink med saltak. Samtlige vinduer og dører byttes ut og endres, med en balansert økning i glassareal, spesielt mot sjøen hvor det er en overbygget terrasse. Bygget er en enetasjes trebygning på 108 m² med saltak, og har 3 soverom, bad, toalett, kjøkken og stue. Endringene forbedrer byggets estetikk og tilpasning til landskapet, og inkluderer også tilbakeføring av tidligere ulovlig tilbygg. Prosjektet omfatter også dokumentert riving av ulovlig bad og avfallshåndtering i henhold til gjeldende forskrifter.

Produkter og materialer

Dører Ytterdører i tre med glass

Antall: 4

Bytte av ytterdører i alle fasader

Nye ytterdører med glassfelt som del av fasadeendring

Gulv Innvendige gulvflater

Endring av innvendig romløsning, mulig oppgradering av gulvflater

Oppgradering av gulv i forbindelse med rehabilitering

Vinduer Fasadevindu og dører med glassfelt

Antall: 14

Utskifting og endring av vinduer og dører i samtlige fasader, balansert økning i glassareal

Nye vinduer og dører med glassfelt, inkludert større glassflater mot sjøen under terrasse

Fasade Stående vedlikeholdsfritt panel

🧱 Tre, gråner naturlig over tid

Panel på samtlige fasader, gråtonede karmer og listverk

Ny kledning på alle fasader med vedlikeholdsfritt trepanel som gråner naturlig

Tømrer Rehabilitering og tilbakeføring

🧱 Treverk

Tilbakeføring av tidligere ulovlig tilbygg til opprinnelig godkjent form

Tømrerarbeid for tilbakeføring og rehabilitering av fritidsbolig

Bad Nytt bad etter riving av ulovlig bad

Antall: 1

Riving av ulovlig bad, ny løsning i henhold til godkjent plantegning

Oppgradering og nyinnredning av bad etter riving

Tak Saltak med zink taktekke

🧱 Grå zink

Taktekke endres fra mørk papp til grå zink

Nytt taktekke i grå zink på eksisterende saltak

Grunnarbeid Riving og avfallshåndtering

Riving av ulovlig bad og tidligere ulovlig tilbygg, dokumentert med bilder og avfallsplan

Riving av ulovlige konstruksjoner og håndtering av avfall i henhold til forskrifter

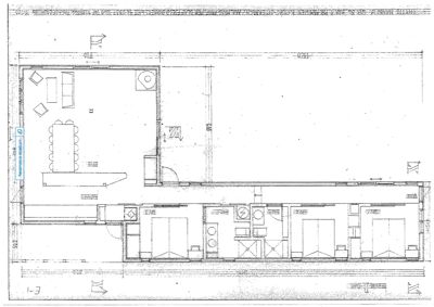
Plantegning

Enebolig 108.0 m²

Etasje 1 108.0 m²

Rom Areal Vinduer Dører
Stue 101 35.0 m² 1 1
Kjøkken 102 12.0 m² 1 1
Gang 103 10.0 m² 0 3
Bad 104 6.0 m² 0 1
Toalett 105 2.0 m² 0 1
Soverom 1 106 12.0 m² 1 1
Soverom 2 107 12.0 m² 1 1
Soverom 3 108 12.0 m² 1 1

Fasader

Enebolig

Nord
Materiale
Tre
Taktype
Saltak
Høyde
2.4 m
Vinduer
3
Dører
1
Balkonger
1
Synlige etasjer
1
Sør
Materiale
Tre
Taktype
Saltak
Høyde
2.4 m
Vinduer
4
Dører
1
Balkonger
1
Synlige etasjer
1
Vest
Materiale
Tre
Taktype
Saltak
Høyde
2.4 m
Vinduer
2
Dører
1
Synlige etasjer
1
Øst
Materiale
Tre
Taktype
Saltak
Høyde
2.4 m
Vinduer
3
Dører
1
Synlige etasjer
1

Hendelser

14.04.2026 Søknad om ferdigattest - fasadeendring - kledning - tak - vinduer - 36/76 - 36/24 - 36/67 - Håbu 19