Facade
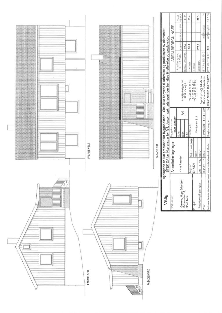
Fasadetegning som viser bygningens utseende fra fire sider (Nord, Sør, Vest, Øst) med tegnet oppriss og en tabell med arealopplysninger.
1 / 6
FacadeChange
Soeknad
Fritidsbolig
Fasadeendring på fritidsbolig i Ifjordveien 312
📍 Ifjordveien 312 , 9740 LEBESBY
Nøkkelinfo
- Sakstype
- Fasadeendring
- Bygningstype
- Fritidsbolig
- Bruksareal
- 259 m²
- Boenheter
- 1
- Kommune
- Lebesby
- Fylke
- Finnmark - Finnmárku - Finmarkku
- Gnr / Bnr
- 21 / 34
- Saksnummer
- 2026/386
- Fase
- Søknad
Om byggesaken
Eksisterende fritidsbolig på 259,2 m² med to etasjer gjennomgår fasadeendring som inkluderer bytte av takpapp til takplater, ny ytterkledning i tre, samt utskifting, flytting og innsetting av vinduer. Bygningen har saltak og pipe, og fasadene består av tre med totalt ni vinduer og en dør. Innvendig består hytta av flere rom fordelt på to etasjer, inkludert stue, kjøkken, soverom, bod og trapperom. Endringene vil oppdatere byggets ytre uttrykk og materialbruk uten å endre byggets grunnareal.
Produkter og materialer
Tømrer
Fasadearbeid og takarbeid
Arbeid med demontering og montering av takplater, kledning og vinduer
Fasade
Ytterkledning i tre
🧱 Tre
Bytte av ytterkledning på alle fasader
Ny tre-kledning på eksisterende fasader
Dører
Ytterdør
Antall: 1
Eksisterende ytterdør beholdes eller byttes i forbindelse med fasadeendring
Ytterdør i fasaden, muligens utskifting eller tilpasning
Tak
Takplater
🧱 Stål eller metallplater
Bytte fra takpapp til takplater
Nye takplater som erstatter eksisterende takpapp på saltak
Maling
Fasademaling
Fasaden skal males i farger som ikke skjemmer omgivelsene
Maling av ny ytterkledning for estetisk tilpasning
Vinduer
Fasadevindu
Antall: 9
Bytte, flytting og innsetting av vinduer på eksisterende bygning
Nye vinduer i fasaden, inkludert flytting og utskifting
Plantegning
Eksisterende hytte 259.2 m²
Etasje 1 177.3 m²
| Rom | Areal | Vinduer | Dører |
|---|---|---|---|
| Stue Stue | 26.4 m² | 1 | 1 |
| Kjøkken Kjøkken | 11.7 m² | 1 | 1 |
| Entré Entré | 5.0 m² | 0 | 1 |
| Bed Bed | 3.7 m² | 0 | 1 |
| Bod Bod | 2.5 m² | 0 | 1 |
| Gang Gang | 3.6 m² | 0 | 0 |
| Sov 1 Sov 1 | 9.2 m² | 1 | 1 |
| Sov 2 Sov 2 | 16.8 m² | 1 | 1 |
| Trapp Trapp | 3.4 m² | 0 | 0 |
Etasje 0 81.9 m²
| Rom | Areal | Vinduer | Dører |
|---|---|---|---|
| Disporbølt 001 | 50.3 m² | 3 | 1 |
| Disporbølt 002 | 31.6 m² | 2 | 1 |
Fasader
Eksisterende hytte
Vest
- Materiale
- Tre
- Taktype
- Saltak
- Vinduer
- 4
- Dører
- 0
- Synlige etasjer
- 2
Øst
- Materiale
- Tre
- Taktype
- Saltak
- Vinduer
- 2
- Dører
- 0
- Synlige etasjer
- 2
Sør
- Materiale
- Tre
- Taktype
- Saltak
- Vinduer
- 1
- Dører
- 0
- Synlige etasjer
- 1
Nord
- Materiale
- Tre
- Taktype
- Saltak
- Vinduer
- 2
- Dører
- 1
- Synlige etasjer
- 1
Hendelser
22.04.2026
Tiltak - 21/34 - Ifjordveien 312 - Fasadeendring av tak, kledning og vinduer på våningshus benyttet som fritidsbolig
16.04.2026
Ettrinnssøknad - 21/34 - Ifjordveien 312 - fasadeendring