FacadeChange Soeknad Fritidsbolig

Fasadeendring og innvendig ombygging av fritidsbolig i Saltvika 75

📍 Saltvika 75 , 1680 SKJÆRHALDEN

Nøkkelinfo

Sakstype
Fasadeendring
Bygningstype
Fritidsbolig
Bruksareal
122 m²
Boenheter
1
Kommune
Hvaler
Fylke
Østfold
Gnr / Bnr
25 / 14
Saksnummer
2026/460
Fase
Søknad

Om byggesaken

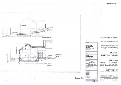
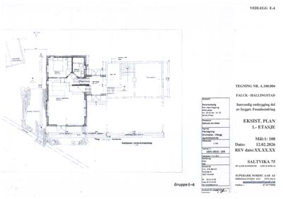
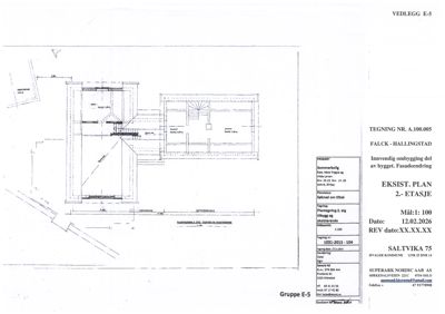
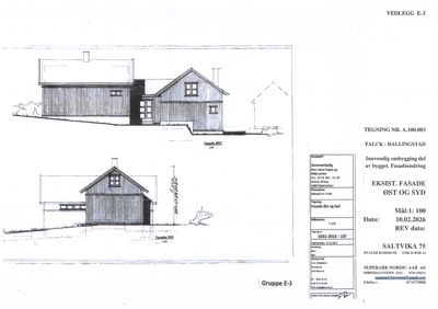
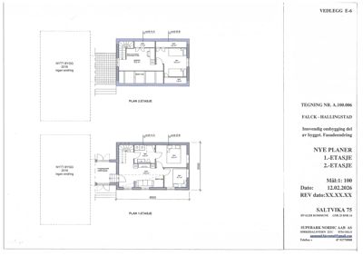
Ombygging av den gamle delen av en SEFRAK-registrert fritidsbolig oppført ca. 1850, med ny planløsning innvendig inkludert innpassing av baderom, forsterking av bjelkelag i tak over 1. etasje, nytt støpt gulv i 1. etasje, ny trapp og etterisolering av yttervegger på innvendig side. Fasadeendring med innsetting av to nye tidsriktige vinduer i fasade mot sør i 1. etasje. Det gamle hovedbygget oppgraderes med bedre isolasjon og tilpasning til dagens standard uten arealmessige endringer. Bygget har saltak og trekledning, og tiltaket inkluderer også riving av deler av bygget.

Produkter og materialer

Gulv Støpt gulv

🧱 betong

Nytt støpt gulv i 1. etasje der gulvbjelker erstattes

Forsterket og oppgradert gulvkonstruksjon i 1. etasje

Maling Utvendig og innvendig maling

🧱 maling

Maling av fasade og innvendige veggoverflater

Overflatebehandling av trepanel og innvendige vegger

Fasade Trekledning

🧱 høvlet trepanel

Tidsriktig panel og dekor i henhold til kulturminnemyndigheters anbefalinger

Fasadeoppgradering med høvlet trepanel og dekor

Isolasjon Innvendig etterisolering

🧱 isolasjon

Etterisolering av yttervegger på innvendig side

Bedre isolasjon for oppgradering til dagens standard

Dører Innvendige dører

🧱 tre

Nye innvendige dører i ombygde rom

Dører til nye rom og baderom i ombygget planløsning

Tak Saltak med teglstein

🧱 rød, enkeltkrummet teglstein

Taktekking med rød teglstein i henhold til kulturminnemyndigheters anbefalinger

Bevaring og oppgradering av taktekking

Trapper Innvendig trapp

🧱 tre

Antall: 1

Ny trapp med endret posisjon i bygget

Ny trapp mellom 1. og 2. etasje

VVS Sanitærinstallasjoner

Innvendige rørleggerarbeider for nytt bad

Sanitærinstallasjoner i nytt baderom

Vinduer Fasadevindu

🧱 tre, koblede, med gjennomgående sprosser og kittfals

Antall: 2

Tidsriktige vinduer ca. 1,3 m høye og 0,9-1,0 m brede, empire-stil

Nye vinduer i fasade mot sør i 1. etasje for økt lys til nye soverom

Mur Fundament og gulvstøp

🧱 betong

Støpt gulv i 1. etasje som erstatter gulvbjelker

Fundamentering og gulvstøp for forsterket gulvkonstruksjon

Tømrer Bjelkelag og trekonstruksjoner

🧱 tre

Forsterking av bjelkelag i tak over 1. etasje, montering av trekonstruksjoner

Tømrerarbeid for bjelkelagsforsterking og montering av ny trapp

Fasader

Enebolig

Vest
Materiale
Tre
Taktype
Saltak
Høyde
6.0 m
Mønehøyde
8.0 m
Vinduer
3
Dører
1
Synlige etasjer
1
Nord
Materiale
Tre
Taktype
Saltak
Høyde
6.0 m
Mønehøyde
8.0 m
Vinduer
1
Dører
1
Synlige etasjer
1
Øst
Materiale
Tre
Taktype
Saltak
Høyde
5.6 m
Vinduer
2
Dører
1
Synlige etasjer
1
Sør
Materiale
Tre
Taktype
Saltak
Høyde
5.6 m
Vinduer
2
Dører
0
Synlige etasjer
1

Hendelser

19.03.2026 Supplering av søknad - fasade, våtrom, brannskille - 25/14 - Saltvika 75
03.03.2026 Søknad ett-trinn - fasade, våtrom, brannskille - 25/14 - Saltvika 75, Kirkøy