NewConstruction Igangsettingstillatelse Fritidsbolig

Ny fritidsbolig med bod og forstøtningsmur på Ullerøy, Farsund

📍 217/24-1 , 4550 FARSUND

Nøkkelinfo

Sakstype
Nybygg
Bygningstype
Fritidsbolig
Bruksareal
164 m²
Boenheter
1
Kommune
Farsund
Fylke
Agder
Gnr / Bnr
217 / 24
Saksnummer
25/02433
Fase
Igangsettingstillatelse

Om byggesaken

Ny fritidsbolig på 164,1 m² i to etasjer med saltak og tilhørende bod og forstøtningsmur i naturstein på Ullerøy, Farsund. Boligen har 4 soverom, to stuer, kjøkken/spisestue, tørreklosett og bod. Fasaden er i hvit malt tømmermannskledning med liggende bord og enkeltfalset kledning, og taket er tekket med rød, enkeltkrum teglstein. Vinduer er to-rams sidehengslede i malt tre med isolerglass og klipssprosser. Det er etablert privat avløpsanlegg og vannforsyning fra brønn. Forstøtningsmuren er plassert for skånsom terrengtilpasning. Garasje og sjøbod med saltak inngår i prosjektet, tilpasset lokal byggeskikk og kulturmiljø. Det er lagt vekt på å bevare kulturminner, steingjerder og eplehage i området. Tiltaket har fått rammetillatelse og igangsettingstillatelse for grunnarbeider med vilkår om materialvalg og terrenginngrep.

Produkter og materialer

Fasade Tømmermannskledning

🧱 Malt tre, hvit, liggende enkeltfalset

Stående tømmermannskledning (dobbelfals rettkant) i malt tre for fritidsbolig, bod og uthus/garasje

Fasade i hvit malt tømmermannskledning med liggende bord og enkeltfalset kledning

VVS Privat avløpsanlegg

Slamavskiller og infiltrasjonsgrøft eller sjøledning, for inntil fem boenheter, med utslippssøknad til kommunen

Privat avløpsanlegg for fritidsboligene

Tak Takstein

🧱 Betong, teglrød, dobbeltkrum

Type Skarpnes eller tilsvarende, enkeltkrum rød teglstein (ufalset)

Taktekking med rød teglstein på fritidsbolig, bod og uthus/garasje

VVS Brønnvann

Vannforsyning fra brønn til fritidsboligene

Vannforsyning til fritidsboligene fra brønn

Terrasse Naturstein trapp

🧱 Naturstein

Trapper skal utføres i stedlig naturstein, plattinger med tredekke tillates ikke

Trapper i naturstein som del av uteareal

Grunnarbeid Tørrmurte natursteinsmurer

🧱 Naturstein

Avtrapping av høydeforskjeller skal løses med tørrmurte natursteinsmurer av stedlig stein

Tørrmurte natursteinsmurer for terrengavtrapping

Dører Inngangsdør og verandadør

🧱 Malt kompaktlaminat og heltre

Antall: 3

Inngangsdør utadslående, sidehengslet i malt kompaktlaminat med glassfelt/isolerglass, verandadør i heltre fyllingsdør, boddør enkel tett dør i malt kompaktlaminat uten glass

Dører til inngang, veranda og bod med spesifisert materialbruk og utforming

Grunnarbeid Tomteopparbeidelse

Opparbeidelse av tomt med nødvendig terrenginngrep, snevring av terrenginngrep til absolutt nødvendig nivå

Grunnarbeid for tomt med fokus på minimal terrenginngrep

Sjøbod To-fløyet labankdør uten glass

Antall: 1

Inngangsdør til sjøbod tett uten vindu, evt. port som tofløyet labankdør uten glass

Sjøbod med saltak og begrensede vinduer for lagring av utstyr

Garasjeport To-fløyet labankdør uten glass

Antall: 1

Port til garasje utformet som tofløyet og sidehengslet labankdør uten glass

Garasjeport for traktor og landbruksutstyr

Forstøtningsmur Natursteinmur

🧱 Naturstein

Forstøtningsmur i naturstein, høyde ca. 1,5 m, utført skånsomt for terrengtilpasning

Forstøtningsmur i naturstein for terrengtilpasning ved tomtopparbeidelse

Elektro Solcelleanlegg

Mulighet for strømforsyning via solcellepaneler

Solcelleanlegg for strøm til fritidsboligene

Vinduer To-rams sidehengslet vindu

🧱 Malt tre med isolerglass

Antall: 14

Gilje Ramsvindu Basic 1.2 eller tilsvarende, med klipssprosser av aluminium, isospross uten kittfals

Vinduer med to rammer, sidehengslet, malt tre med isolerglass og klipssprosser

Terrasse Uteareal med naturstein/heller

🧱 Naturstein/heller

Nye utearealer skal ligge på bakkeplan med faste dekker av naturstein eller heller, ingen tredekke plattinger

Uteareal med naturstein/heller som fast dekke

Plantegning

Enebolig 164.1 m²

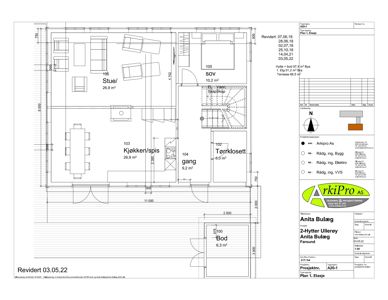
Etasje 1 91.2 m²

Rom Areal Vinduer Dører
Stue 101 26.9 m² 3 1
Tørreklosett 102 5.0 m² 0 1
Kjøkken/spis 103 26.9 m² 1 1
gang 104 9.2 m² 0 2
SOV 105 10.2 m² 1 1
Bod 106 6.3 m² 1 1

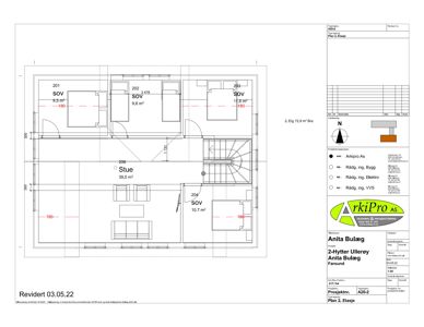
Etasje 2 72.9 m²

Rom Areal Vinduer Dører
SOV 201 9.5 m² 1 1
SOV 202 9.6 m² 1 1
SOV 203 11.8 m² 1 1
SOV 204 10.7 m² 1 1
Stue 206 39.0 m² 3 1

Fasader

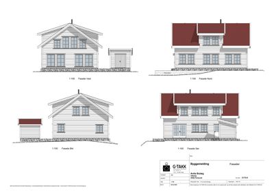
Enebolig

Vest
Materiale
Tre
Taktype
Saltak
Vinduer
6
Dører
0
Synlige etasjer
2
Nord
Materiale
Tre
Taktype
Saltak
Takmat.
Tegl
Vinduer
6
Dører
0
Synlige etasjer
2
Øst
Materiale
Tre
Taktype
Saltak
Vinduer
3
Dører
0
Synlige etasjer
2
Sør
Materiale
Tre
Taktype
Saltak
Vinduer
6
Dører
2
Synlige etasjer
2

Hendelser

22.04.2026 25/02433-12 IG1 - Igangsettingstillatelse for grunnarbeid med forstøtningsmur - 217/24, BFF2, Ullerøy
20.04.2026 25/02433-11 217/24 Ullerøy - Anmodning om godkjenning av spesifikk klips-sprosse
08.04.2026 25/02433-10 Uttalelse nr. 2 til kulturmiljø - ingen flere merknader enn tidligere - utforming fritidsbolig i forbindelse med igangsetting søknad - 217/24, Ullerøy, BFF2 igangsettingstillatelse
20.03.2026 25/02433-9 Høring, detaljert utforming fritidsbolig i forbindelse med igangsetting søknad - 217/24, Ullerøy, BFF2 igangsettingstillatelse
12.03.2026 25/02433-8 Søknad om igangsettingstillatelse for grunnarbeider - opparbeiding av tomt med forstøtningsmurer - 217/24, Ullerøy igangsettingstillatelse
09.03.2026 25/02433-7 Orientering og oversendelse av kulturminnefaglig uttalelse - gnr/bnr 217/24 - BFF2 - Ullerøy - Farsund kommune
27.02.2026 25/02433-6 Vi anmoder om uttalelse -217/24, BFF2, Ullerøy
27.02.2026 25/02433-5 RAMME-tillatelse til tiltak for fritidsbolig - 217/24, BFF2, Ullerøy byggetillatelse
24.02.2026 25/02433-4 Ønske kort møte om rammesøknad på BFF2 217/24
24.02.2026 25/02433-3 Forhåndsuttalelse om kotehøyder og terrengopparbeidelse - BFF2 217/24, - P.ID18400, Sak 22/00590, 30.03.2023. Ullerøy - 217/4,5,20,22
24.02.2026 25/02433-2 DOK-analyse - 217/24/0/0
08.12.2025 25/02433-1 Rammesøknad om oppføring av fritidsbolig og bod samt forstøtningsmur/utfylling - 217/24, Ullerøy