NewConstruction Rammetillatelse Fritidsbolig

Ny dagsturhytte med punktfeste på Solvarden øst, Vadsø

📍 5/1/1 , 9802 VESTRE JAKOBSELV

Nøkkelinfo

Sakstype
Nybygg
Bygningstype
Fritidsbolig
Bruksareal
18 m²
Boenheter
1
Kommune
Vadsø
Fylke
Finnmark - Finnmárku - Finmarkku
Gnr / Bnr
5 / 1
Saksnummer
2025/6289
Fase
Rammetillatelse

Om byggesaken

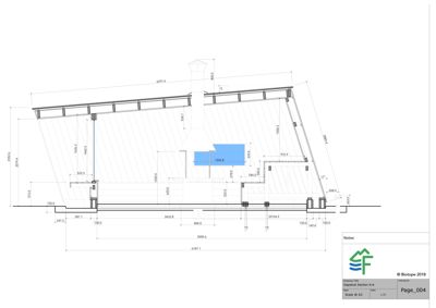
Ny åpen dagsturhytte på 17,5 m² med flatt tak og trevegger, oppført på punktfeste på eiendom gnr 5 bnr 1 i Solvarden øst, Vadsø kommune. Hytta har en enkel konstruksjon i impregnert treverk med utvendig kledning av Alvdal Royal D-fals i mørkebrunt, og innvendig Malmfuru glatt panel. Bygget er 6,23 meter langt, 2,35 meter bredt og ca. 2,8 meter høyt. Hytta har flere vinduer i aluminium med herdet/laminert glass, og en dør i tre/polykarbonat. Det er pipe tilknyttet hytta, og ventilasjon for grillsted. Hytta er tilrettelagt for friluftsliv og fysisk aktivitet, og skal stå åpen for allmennheten. Punktfestet er tinglyst med vilkår om ikke-privatisering og tilbud om overtakelse til kommunen ved eventuell avhending. Prosjektet er plassert i LNFR-område med dispensasjon fra arealformål, og er tilpasset landskapet og friluftsformålet.

Produkter og materialer

Grunnarbeid Fundamentering med forskalingsblokk

🧱 Forskarlingsblokk 150x200x500 mm

Fundamentering med forskalingsblokk 150x200x500 mm

Fundamentering av hytta på forskalingsblokker

Fasade Innvendig kledning

🧱 Tre, Malmfuru glatt panel

21x148 mm Malmfuru glatt panel

Innvendig kledning i glatt malmfuru panel

Pipe Pipe til gapahuk

Antall: 1

Pipe tilknyttet gapahuk for ovn/grill

Vinduer Fast isolert aluminiumsvindu

🧱 Aluminium, herdet/laminert glass

Antall: 7

1220x530 mm med 8 mm herdet/laminert glass, 2 stk 1460x2000 mm med 12,76 mm herdet/laminert glass

Vinduer i aluminium med herdet og laminert glass, fast isolert

Fasade Utvendig kledning

🧱 Tre, Alvdal Royal D-fals, mørkebrunglatt

21x148 mm Alvdal Royal D-fals kledning

Utvendig kledning i tre med mørkebrunt glatt D-fals panel

Dører Ytterdør i tre/polykarbonat

🧱 Tre eller polykarbonat

Antall: 1

Dør angitt som levert av entreprenør, i tre eller polykarbonat

Ytterdør i tre eller polykarbonat

Tak Flatt tak

🧱 Diffusjonsåpen underlagstak, Alvdal Royal

22x148 mm diffusjonsåpen underlagstak med mørkebrun Alvdal Royal taktekking

Flatt tak med diffusjonsåpen underlagstak og mørkebrun taktekking

Ventilasjon Luftventilasjon til grill

Antall: 1

Luftventilasjon for grillsted i hytta

Tømrer Konstruksjonsvirke impregnert C24

🧱 Impregnert trevirke C24

48x70 mm, 48x148 mm, 48x98 mm impregnert konstruksjonsvirke C24

Impregnert konstruksjonsvirke for bærende konstruksjon

Fasader

Gapahuk

Front
Materiale
Tre
Taktype
Flatt tak
Høyde
2.0 m
Mønehøyde
2.8 m
Vinduer
2
Dører
0
Synlige etasjer
1
Left
Materiale
Tre
Taktype
Flatt tak
Høyde
1.0 m
Mønehøyde
2.3 m
Vinduer
4
Dører
1
Synlige etasjer
1
Rear
Materiale
Tre
Taktype
Flatt tak
Høyde
0.0 m
Mønehøyde
3.5 m
Vinduer
0
Dører
0
Synlige etasjer
1
Right
Materiale
Tre
Taktype
Flatt tak
Høyde
0.0 m
Mønehøyde
1.4 m
Vinduer
1
Dører
0
Synlige etasjer
1

Hendelser

21.04.2026 Oversender rekvisisjon av oppmålingsforretning - Punktfeste til dagsturhytte GBNR 5/1
23.03.2026 Søknad om dispensasjon - Etablering av punktfeste for dagsurhytte - GBNR 5/1, Solvarden øst