NewConstruction Igangsettingstillatelse Fritidsbolig

Ny fritidsbolig med terrasse på Aulisætervegen 97, Sagstua

📍 Aulisætervegen 106 , 2120 SAGSTUA

Nøkkelinfo

Sakstype
Nybygg
Bygningstype
Fritidsbolig
Bruksareal
72 m²
Boenheter
1
Kommune
Nord-Odal
Fylke
Innlandet
Gnr / Bnr
1 / 8
Saksnummer
25/3884
Fase
Igangsettingstillatelse

Om byggesaken

Ny frittstående fritidsbolig på ca. 72 m² BRA med hems og saltak oppføres på samme sted som tidligere hytte som ble totalskadet i brann. Bygget har to etasjer inkludert hems, med stue, kjøkken, bad, gang, dusj og boder. Det er tilknyttet en terrasse på ca. 46 m² og en overbygget terrasse på ca. 15 m². Bygningen er i tre med saltak og pipe, tilpasset omkringliggende hyttebebyggelse. Eksisterende anneks på 16,2 m² beholdes. Totalt bebygd areal inkl. terrasse er ca. 136,4 m², noe som er innenfor tidligere gitt dispensasjon. Det er ikke planlagt innlagt vann, og terrenget er fjellgrunn med god sikkerhet mot skred og flom. Prosjektet har godkjent rammetillatelse og igangsettingstillatelse, og er i utførelsesfase.

Produkter og materialer

Bad Baderomsinnredning og fliser

🧱 Fliser og standard baderomsinnredning

Antall: 1

Bad på ca. 5,3 m² med dusjnisje, toalett og servant

Fullt utstyrt bad med fliser og sanitærutstyr

Grunnarbeid Fundamentering og grunnarbeid

Grunnarbeid på fjellgrunn, uten behov for kvikkleiresikring

Fundamentering og grunnarbeid tilpasset tomtens geologi

VVS Vann og avløp

Ingen innlagt vann, eksisterende renovasjonsløsning videreføres

VVS-anlegg uten innlagt vann, tilpasset fritidsboligens bruk

Dører Ytterdør og verandadør

🧱 Tre med glassfelt

Antall: 4

Inngangsdør og verandadør, inkludert dør til terrasse

Ytterdører i tre med glassfelt for lysinnslipp og utgang til terrasse

Tak Saltak med takstein

🧱 Tre konstruksjon med takstein

Antall: 1

Saltak med mønehøyde ca. 5,7 m, inkludert takoverbygg ved inngang på 2,4 m²

Tradisjonelt saltak med takstein, tilpasset hytteområdet

Fasade Trekledning

🧱 Tre

Trekledning på alle fasader, tilpasset omkringliggende bebyggelse

Utvendig trekledning for estetikk og værbeskyttelse

Maling Utvendig og innvendig maling

🧱 Maling for treverk

Maling av utvendig trekledning og innvendige overflater

Beskyttende og estetisk maling for treflater

Trapper Innvendig trapp til hems

🧱 Tre

Antall: 1

Innvendig trapp i L-form til hems

Trapp for adkomst til hems i fritidsboligen

Gulv Innvendig gulv

🧱 Eikeparkett eller tilsvarende

Gulv i stue, kjøkken og soverom

Innvendig gulv med eikeparkett for varig og estetisk overflate

Terrasse Uteplass med rekkverk

🧱 Tre

Terrasse på ca. 46 m² og overbygget terrasse på ca. 15,7 m²

Utendørs terrasseareal med rekkverk for sikkerhet

Betong Grunnmur og fundament

🧱 Betong

Betongfundament og grunnmur med radonsikring

Betongkonstruksjon for fundamentering og radonsikring

Elektro Elektrisk anlegg

Elektrisk installasjon iht. gjeldende forskrifter

Elektrisk anlegg for belysning og stikkontakter

Vinduer Fasadevindu

🧱 Tre med 3-lags energiglass

Antall: 12

Vinduer i 1. etasje og hems, ulike størrelser, inkludert vindu på kjøkken og bad

Fasadevinduer i tre med energiglass for naturlig lys og ventilasjon

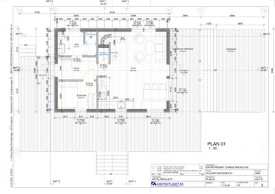
Plantegning

Enebolig 158.1 m²

Etasje 1 158.1 m²

Rom Areal Vinduer Dører
Stue 101 30.9 m² 3 1
Soverom 102 6.3 m² 1 1
Gang 103 5.2 m² 0 2
Kjøkken 104 10.0 m² 2 1
Bad 105 5.3 m² 0 1
Dusjsje 106 1.5 m² 0 0
Bøttekott 107 1.0 m² 0 0
Terrasse 108 46.1 m² 0 1

Fasader

Hytte

Nord-Vest
Materiale
Tre
Taktype
Saltak
Vinduer
1
Dører
1
Synlige etasjer
2
Nord-Øst
Materiale
Tre
Taktype
Saltak
Vinduer
3
Dører
1
Synlige etasjer
2

Enebolig

Nord
Materiale
Tre
Taktype
Saltak
Høyde
5.9 m
Vinduer
3
Dører
0
Synlige etasjer
1
Øst
Materiale
Tre
Taktype
Saltak
Vinduer
2
Dører
1
Synlige etasjer
1
Sør
Materiale
Tre
Taktype
Saltak
Vinduer
3
Dører
0
Synlige etasjer
1
Vest
Materiale
Tre
Taktype
Saltak
Høyde
5.9 m
Vinduer
1
Dører
1
Synlige etasjer
1

Hendelser

17.04.2026 Eiendommen 1/8/20 - Søknad om igangsettingstillatelse
22.12.2025 Eiendommen 1/8/20 - Dispensasjon og rammetillatelse - Nybygg fritidsbolig
16.12.2025 Eiendommen 1/8/20 - Supplering av søknad
10.12.2025 Eiendommen 1/8/20 - Behov for ytterligere dokumentasjon i byggesak - Nybygg fritidsbolig
01.12.2025 Eiendommen 1/8/20 - Søknad om rammetillatelse