NewConstruction Soeknad Fritidsbolig

Ny fritidsbolig på Bjørknesveien, Neiden

📍 Bjørknesveien 100 , 9930 NEIDEN

Nøkkelinfo

Sakstype
Nybygg
Bygningstype
Fritidsbolig
Bruksareal
90 m²
Boenheter
1
Kommune
Sør-Varanger
Fylke
Finnmark - Finnmárku - Finmarkku
Gnr / Bnr
7 / 119
Saksnummer
2026/2894
Fase
Søknad

Om byggesaken

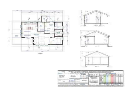
Ny frittstående fritidsbolig (hytte) på 90 m² med saltak og trekledning, oppført i én etasje. Hytten inneholder kjøkken/stue på 45 m², tre soverom, bad/vaskerom, to boder/teknisk rom, entre/gang og en trapp. Bygget har fem vinduer og flere dører, samt en balkong. Det er planlagt tilknytning til privat vannforsyning via egen brønn og avløp til renseanlegg. Hytten har pipe og er konstruert i tre med saltak. Tiltakshaver har søkt om selvbyggeransvar med relevant fagkompetanse.

Produkter og materialer

Isolasjon Bygningsisolasjon

Isolasjon i vegger, tak og gulv for fritidsbolig

Trapper Innvendig trapp

Antall: 1

En innvendig trapp i hytten

Gulv Innvendige gulv

Innvendige gulv i hytten

VVS Vannforsyning og avløp

Vann fra egen gravd brønn, avløp til renseanlegg (søknad om utslippstillatelse planlegges)

Vann- og avløpsinstallasjoner for fritidsbolig

Bad Bad og vaskerom

Antall: 1

Bad/vaskerom med nødvendige våtromsinstallasjoner

Grunnarbeid Tomtearbeid og fundamentering

Grunnarbeid og fundamentering for ny fritidsbolig

Vinduer Fasadevindu

Antall: 5

Fem fasadevinduer i hytten

Pipe Vedovn/peispipe

Antall: 1

Pipe for vedovn eller peis

Terrasse Balkong/terrasse

Antall: 1

En balkong/terrasse tilknyttet hytten

Dører Ytterdører og innerdører

Antall: 9

Ni dører totalt, inkludert ytterdør og innerdører til rom

Elektro Elektriske installasjoner

Elektriske installasjoner iht. TEK17 krav

El-installasjoner i fritidsboligen

Fasade Trekledning

🧱 Tre

Trekledning på yttervegger

Ytterkledning i tre for hytte

Tak Saltak

🧱 Tre, taktekking ikke spesifisert

Saltak på hytte

Saltak som takkonstruksjon

Plantegning

Hytte 90.0 m²

Etasje 1 90.0 m²

Rom Areal Vinduer Dører
Kjøkken/Stue 101 45.1 m² 3 1
Sov 102 9.7 m² 1 1
Sov 103 6.4 m² 1 1
Sov 104 6.7 m² 1 1
Bod 105 3.0 m² 1 1
Tram 106 4.8 m² 0 1
Bod/ Tekn.rom 107 3.1 m² 0 1
Entre/ Gang 108 10.6 m² 0 2
Bad/ Vask 109 4.0 m² 0 1

Fasader

Hytte

Ukjent
Materiale
Tre
Taktype
Saltak
Vinduer
5
Dører
1
Synlige etasjer
1

Hendelser

21.04.2026 Søknad om bygging av fritidsbolig