NewConstruction UnderBehandling Fritidsbolig

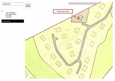
Ny fritidsbolig med teknisk rom på Fagerbakken 26

📍 Fagerbakken 26 , 6470 ERESFJORD

Nøkkelinfo

Sakstype
Nybygg
Bygningstype
Fritidsbolig
Bruksareal
41 m²
Boenheter
1
Kommune
Molde
Fylke
Møre og Romsdal
Gnr / Bnr
277 / 41
Saksnummer
26/02828
Fase
Under behandling

Om byggesaken

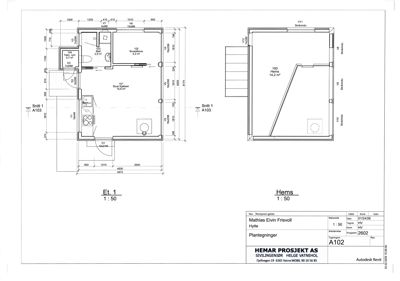
Ny fritidsbolig på ca. 27 m² grunnflate med hems på ca. 14 m², oppført på påler for minimal terrenginngrep. Bygget har saltak med sort platetak og kledning i stående panel med sort/mørk beis. Innvendig inneholder hytta et lite bad med dusj og vaskemaskin, kjøkken/stue og sovealkove med skyvedør. Det er tilknyttet vann og avløp via septiktank og infiltrasjonsanlegg. Bygget har store vinduer mot sør for godt lysinnslipp og utsikt, og totalt 12 vinduer og 2 dører fordelt på fasadene. Det er planlagt et lite teknisk rom tilknyttet hytta. Utvendig blir det anlagt en naturlig steinbelagt uteplass og et trebelagt parti ved inngangspartiet. Hytta har to etasjer med gesimshøyde på ca. 4,5 meter og mønehøyde på ca. 5,6 meter, med pipe.

Produkter og materialer

Fasade Kledning

🧱 Stående trepanel, sort/mørk beis

Ytterkledning i stående trepanel med sort/mørk beis

Pipe Vedovnpipe

Antall: 1

Pipe for vedovn

Terrasse Uteplass av stein og trebelagt inngangsparti

🧱 Stein og tre

Naturlig steinbelagt uteplass og trebelagt parti ved inngang

Utearealer med stein og tredekke ved inngang

VVS Vann og avløp

Tilkoblet vann og avløp via septiktank og infiltrasjonsanlegg med utslippstillatelse

Sanitærinstallasjoner med dusj, vaskemaskin og toalett, inkl. septiktank og infiltrasjon

Kjøkken Lite kjøkken/stue

Antall: 1

Kjøkken og stue i ett rom

Vinduer Store vinduer og fasadevindu

🧱 Tre/trevinduer med glass

Antall: 12

Store vinduer på sørfasade, totalt 12 vinduer fordelt på alle fasader

Vinduer for godt lysinnslipp og utsikt, inkludert skråvinduer på hems

Bad Bad med dusj og vaskemaskin

Antall: 1

Lite bad med dusj og vaskemaskin

Tak Saltak med platetak

🧱 Sort platetak

Saltak med sort platetak

Gulv Innvendige gulv

Innvendige gulv i hytta

Tømrer Bygging av hytte og teknisk rom

Tømrerarbeid for oppføring av fritidsbolig og teknisk rom

Dører Ytterdører

🧱 Tre

Antall: 2

To ytterdører fordelt på fasadene

Grunnarbeid Påler

🧱 Tre eller betong påler

Hytta plassert på påler for å minimere terrenginngrep

Fundamentering på påler for å tilpasse skrånende terreng

Fasader

Hytte

Nordøst
Materiale
Tre
Taktype
Saltak
Høyde
4.5 m
Mønehøyde
5.6 m
Vinduer
2
Dører
0
Synlige etasjer
2
Sørvest
Materiale
Tre
Taktype
Saltak
Høyde
4.5 m
Mønehøyde
5.6 m
Vinduer
1
Dører
1
Synlige etasjer
2
Nordvest
Materiale
Tre
Taktype
Saltak
Høyde
4.5 m
Mønehøyde
5.6 m
Vinduer
3
Dører
1
Synlige etasjer
2
Sørøst
Materiale
Tre
Taktype
Saltak
Høyde
4.5 m
Mønehøyde
5.6 m
Vinduer
6
Dører
0
Synlige etasjer
2

Hendelser

16.04.2026 26/02828-5 E-post om dokumentasjon for tilstrekkelig brannslokkevatn
23.03.2026 26/02828-4 Svar vedrørende Byggesøknad GnrBnr 277/41
20.03.2026 26/02828-3 277/41 Fagerbakken, foreløpig tilbakemelding på søknad om oppføring av fritidsbolig
05.03.2026 26/02828-1 277/44/0/0 Fagerbakken 26, søknad om tillatelse til tiltak