NewConstruction UnderBehandling Fritidsbolig

Oppføring av mikrohus og terrasse på Finnlandsveien 93, Brøstadbotn

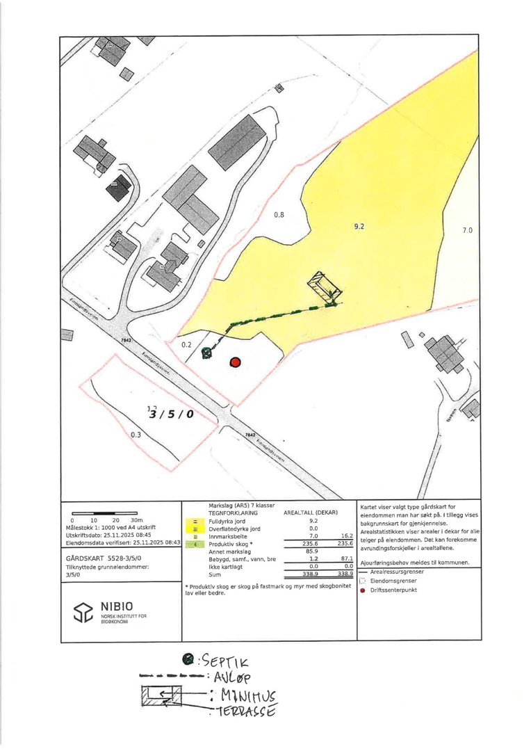
📍 Finnlandsveien 93 , 9311 BRØSTADBOTN

Nøkkelinfo

Sakstype
Nybygg
Bygningstype
Fritidsbolig
Bruksareal
25 m²
Boenheter
1
Kommune
Dyrøy
Fylke
Troms - Romsa - Tromssa
Gnr / Bnr
3 / 5
Saksnummer
2026/466
Fase
Under behandling

Om byggesaken

Ny oppføring av et mobilt mikrohus på 25 m² plassert på hjul og tilhenger, lokalisert på en steinsatt ringmur etter en tidligere låve på eiendommen Finnlandsveien 93. Mikrohusets fundament utnytter eksisterende ringmur og store steiner i terrenget, og er plassert slik at det ikke hindrer landbruksdrift. Det bygges også en terrasse på 50 m² foran mikrohuset, uten fundamentering, for å sikre reversibilitet. Mikrohus og terrasse kobles til eksisterende septiktank for avløp, og vannforsyning legges via grøft fra hovedhuset. Adkomst til mikrohuset skjer til fots fra parkering ved hovedhuset. Tiltaket er vurdert til å ikke forringe jordbruksarealets produksjonskapasitet og er underlagt dispensasjon fra arealformål LNFR.

Produkter og materialer

Grunnarbeid Grøft for vann og avløp

Antall: 1

Grøft gravd til ca. 1 meter dybde for vann- og avløpsledninger, med tilbakefylling av stedegne masser

Grøft for VA-ledninger fra hovedhus til mikrohus, med gjenfylling og reetablering av topplag

Terrasse Terrasse uten fundamentering

Antall: 1

Terrasse på 50 m² bygget uten fundamentering, for reversibilitet

Terrasse foran mikrohuset, bygget uten graving og støp for enkel fjerning

VVS Vannledning

Antall: 1

Vannledning lagt fra eksisterende stikkledning til hovedhus

Vannforsyning til mikrohus via grøft fra hovedhusets vannstikk

Fasade Mobilt mikrohus på hjul

Antall: 1

Mikrohus på 25 m² plassert på tilhenger med hjul, plassert på gammel ringmur og steinsatt område

Mobilt mikrohus som kan flyttes, plassert på eksisterende ringmur og steinlagt grunn

Tømrer Bygningskonstruksjon mikrohus

Antall: 1

Bygging av mikrohus på 25 m² med tilhørende terrasse

Tømrerarbeid for oppføring av mikrohus og terrasse

Annet Parkering og adkomst

Parkering ved hovedhus, adkomst til mikrohus til fots

Opparbeidelse av parkering ved hovedhus og gangvei til mikrohus

VVS Avløpssystem tilkoblet septiktank

Antall: 1

Avløp koblet til eksisterende 3-kammer septiktank med overløp til sjø

Sanitært avløp for mikrohus koblet til hovedhusets septiktank

Hendelser

23.04.2026 Innspill til søknad om dispensasjon for eiendom 3/5 - Dyrøy kommune
20.04.2026 Uttalelse - Søknad om plassering av mikrohus på landbrukseiendom - gbnr. 3/5 - Dyrøy kommune
08.04.2026 3/5 - Høring vedrørende søknad om plassering av mikrohus på landbrukseiendom
31.03.2026 3/5 Søknad om tillatelse til tiltak - bolig