NewConstruction Soeknad Fritidsbolig

Ny fritidsbolig med altan på Fylkesveg 825, Gratangen

📍 Fylkesveg 825

Nøkkelinfo

Sakstype
Nybygg
Bygningstype
Fritidsbolig
Bruksareal
60 m²
Boenheter
1
Kommune
Gratangen - Rivtták
Fylke
Troms - Romsa - Tromssa
Gnr / Bnr
62 / 2
Saksnummer
26/00183
Fase
Søknad

Om byggesaken

Ny frittstående fritidsbolig på 59,8 m² BRA med saltak og trekledning, plassert på påler for å bevare terrenget. Boligen har en planløsning med kjøkken/stue på 32,1 m², ett soverom, to boder, vindfang og et teknisk rom. Det er en altan på 18,5 m². Bygget har 1 etasje, med gesimshøyde 2,76 m og mønehøyde 5,02 m. Hytta bygges uten innlagt strøm og vann, med forbrenningstoalett og naturlig infiltrasjon for gråvann. Adkomst skjer via eksisterende privat vei, og tiltaket er plassert som fortetting mellom eksisterende garasje og fjøs i et LNF-område med dispensasjon.

Produkter og materialer

Vinduer Fasadevindu

Antall: 12

3 vinduer i kjøkken/stue, 1 vindu i soverom, totalt 12 vinduer på fasader

Fasadevinduer i treverk

Gulv Innvendige gulv

Innvendige gulv i fritidsboligen

Elektro Ingen innlagt strøm

Ingen elektrisk installasjon planlagt

Ingen strømtilførsel i hytta

Tømrer Innvendige vegger og bjelkelag

🧱 Tre

98 mm vegger i henhold til NS3940:2012

Innvendige konstruksjoner i tre

Kjøkken Kjøkkeninnredning

Antall: 1

Kjøkkeninnredning i kombinert kjøkken/stue

VVS Sanitærløsning

Antall: 1

Cinderella forbrenningstoalett, lukket, luktfri og utslippsfri

Sanitærløsning uten vann og avløp

Fasade Trekledning

🧱 Tre

Trekledning på alle fasader

Yttervegger kledd med trepanel

Dører Ytterdører

Antall: 6

Dører i vindfang, boder, soverom og utgang til altan

Ytterdører til rom og utgang

Terrasse Altan

🧱 Tre

Antall: 1

Altan på 18,5 m²

Utendørs altan tilknyttet fritidsboligen

Grunnarbeid Fundamentering på påler

Skånsom fundamentering på påler for å bevare terreng og jordsmonn

Fundamentering på påler uten sprenging

Tak Saltak

🧱 Tre og taktekking (materiale ikke spesifisert)

Saltak med gesimshøyde 2,76 m og mønehøyde 5,02 m

Saltak på fritidsboligen

Plantegning

Enebolig 59.8 m²

Etasje 1 59.8 m²

Rom Areal Vinduer Dører
Kjøkken/stue 101 32.1 m² 3 2
Soverom 1 102 9.5 m² 1 1
Bod 1 103 2.7 m² 0 1
Bod 2 104 2.3 m² 0 1
Vindfang 105 5.1 m² 0 2
Tram 106 2.7 m² 0 1

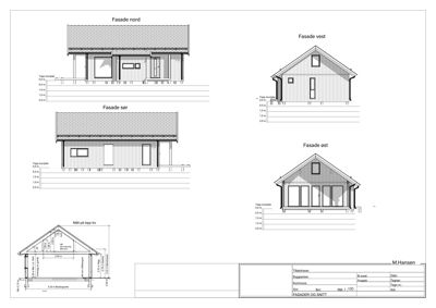
Fasader

Enebolig

Nord
Materiale
Tre
Taktype
Saltak
Høyde
2.8 m
Mønehøyde
5.0 m
Vinduer
3
Dører
1
Synlige etasjer
1
Vest
Materiale
Tre
Taktype
Saltak
Høyde
2.8 m
Mønehøyde
5.0 m
Vinduer
2
Dører
1
Synlige etasjer
1
Sør
Materiale
Tre
Taktype
Saltak
Høyde
2.8 m
Mønehøyde
5.0 m
Vinduer
2
Dører
1
Synlige etasjer
1
Øst
Materiale
Tre
Taktype
Saltak
Høyde
2.8 m
Mønehøyde
5.0 m
Vinduer
5
Dører
1
Synlige etasjer
1

Hendelser

17.04.2026 26/00183-3 Høring. Tiltak Gnr. 62 Bnr. 2
13.04.2026 26/00183-2 Svar på nabovarsel - fritidsbolig - fylkesveg 825 - gbnr. 62/2 - Gratangen kommune
27.03.2026 26/00183-1 Svar på nabovarsel - nytt bygg, fritidsbolig - fylkesveg 825 - gbnr. 62/2 - Gratangen kommune