NewConstruction UnderBehandling Fritidsbolig

Ny fritidsbolig med adkomstvei på Gamle Kongevei 152, Kvikne

📍 Gamle Kongevei 152 , 2512 KVIKNE

Nøkkelinfo

Sakstype
Nybygg
Bygningstype
Fritidsbolig
Bruksareal
66 m²
Boenheter
1
Kommune
Tynset
Fylke
Innlandet
Gnr / Bnr
154 / 17
Saksnummer
2025/3510
Fase
Under behandling

Om byggesaken

Ny fritidsbolig i stavlaft på ca. 66,3 m² BRA oppføres på eiendommen Gamle Kongevei 152, Kvikne. Bygget erstatter en eksisterende hytte i dårlig teknisk stand som rives. Hytta har 1 etasje med to soverom, bad, bod, entre, hall/gang og kombinert stue/kjøkken. Bygget har saltak med teglstein og trekledning. Det legges inn strøm, men ikke innlagt vann, med planlagt gråvannsanlegg. Ny adkomstvei bygges fra Gamle Kongevei med forsterket bæreevne for tungtransport under byggefasen. Hytta plasseres på et flatere parti av tomten, ca. 14,5 meter fra strandsonen til Orkla, innenfor byggeforbudssonen, noe som krever dispensasjon. Det er 5 meter høydeforskjell fra elva til hyttetomten. Tiltaket inkluderer også riving av gammel hytte og etablering av ny vei.

Produkter og materialer

Gulv Innvendige gulv

Innvendige gulv i stue, soverom, bad og gang

Veibygging Adkomstvei

🧱 Grus

Ny adkomstvei fra Gamle Kongevei med forsterket bæreevne for tungtransport

Adkomstvei for byggefasen og permanent bruk

Tak Saltak med teglstein

🧱 Teglstein

Saltak med teglstein som takmateriale

Tak med saltak konstruksjon og teglstein som taktekking

Maling Utvendig og innvendig maling

Maling av treflater utvendig og innvendig

Pipe Vedovnpipe

🧱 Mur

Antall: 1

Pipe på alle fasader unntatt øst, sannsynlig for vedovn

Pipe for vedovn i hytta

Grunnarbeid Fundamentering og tomtearbeid

Fundamentering på flatere del av tomt for bedre stabilitet, terrenginngrep minimalisert

Grunnarbeid for ny hytte og adkomstvei

Vinduer Fasadevindu

🧱 Tre/Aluminium

Antall: 8

Vinduer i tre med muligens aluminiumskledning, fordelt på fasader

Vinduer i stue, soverom og bad

Bad Bad med sanitærutstyr

Antall: 1

Bad på 5,3 m² med nødvendige sanitærinstallasjoner

Tømrer Lafting

🧱 Tre

Hytte i stavlaft

Laftet tømmerkonstruksjon for hytte

Trapper Innvendig trapp

🧱 Tre

Antall: 1

Innvendig trapp i L-form

Trapp mellom etasjer (hvis relevant, men bygget er 1 etasje, så sannsynligvis trapp til hems eller lignende)

Elektro Elektrisk anlegg

Antall: 1

Strømtilførsel til hytta

Elektrisk installasjon med strømtilførsel

Dører Ytterdører

🧱 Tre

Antall: 4

Ytterdører i tre, inkludert inngangsdør og terrassedør

Dører til entre, bod og stue/kjøkken

Fasade Trekledning

🧱 Tre

Trekledning på alle fasader

Yttervegger kledd med trepanel

VVS Gråvannsanlegg

Antall: 1

Planlagt gråvannsanlegg, ikke innlagt vann

Avløpsløsning for gråvann uten innlagt vann

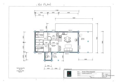
Plantegning

Enebolig 66.3 m²

Etasje 1 66.3 m²

Rom Areal Vinduer Dører
Entre 101 4.2 m² 0 1
Bod 102 2.8 m² 0 1
Hall/gang 103 8.2 m² 0 2
Sov 1 104 7.2 m² 1 1
Sov 2 105 7.0 m² 1 1
BAD 106 5.3 m² 0 1
Stue/kokken 107 24.8 m² 3 1

Fasader

Enebolig

Nord
Materiale
Tre
Taktype
Saltak
Takmat.
Tegl
Vinduer
2
Dører
1
Synlige etasjer
1
Sør
Materiale
Tre
Taktype
Saltak
Takmat.
Tegl
Vinduer
1
Dører
2
Synlige etasjer
1
Vest
Materiale
Tre
Taktype
Saltak
Takmat.
Tegl
Vinduer
3
Dører
0
Synlige etasjer
1
Øst
Materiale
Tre
Taktype
Saltak
Takmat.
Tegl
Vinduer
2
Dører
0
Synlige etasjer
1

Hendelser

21.04.2026 Gnr/bnr 154/17 - Supplering av søknad Fritidsbolig - Gamle Kongevei
20.04.2026 SV: Byggesak 25/3510-2
20.04.2026 Dispensasjon fra Kommuneplanens arealdel for etablering av ny fritidsbolig på gnr/bnr. 154/17- Gamle Kongevei
13.03.2026 Svar ang. søknad om dispensasjon for etablering av ny fritidsbolig på gbnr. 154/17 på Kvikneskogen, Tynset kommune
04.03.2026 NVEs generelle uttalelse - Høring - Søknad om dispensasjon for etablering av ny fritidsbolig på Kvikneskogen - Tynset kommune
24.02.2026 Uttalelse - dispensasjon for riving og oppsetting av ny hytte - Kvikneskogen - 154/17 - Tynset kommune
23.02.2026 Dispensasjon for etablering av ny fritidsbolig på gnr/bnr 154/17 på Kvikneskogen - HØRING
26.11.2025 Dispensasjonssøknad gbnr 154/17
10.11.2025 Mottakskontroll - Gamle Kongevei 152 Søknad om tillatelse i ett trinn - Fritidsbolig gbnr 154/17
06.11.2025 Gamle Kongevei 152 Søknad om tillatelse i ett trinn - Fritidsbolig gbnr 154/17