NewConstruction Ferdigattest Fritidsbolig

Fritidsbolig med uthus og naust på Gamstøbakkan 12, Bodø

📍 Gamstøbakkan 12 , 8102 SKJERSTAD

Nøkkelinfo

Sakstype
Nybygg
Bygningstype
Fritidsbolig
Bruksareal
69 m²
Boenheter
1
Kommune
Bodø
Fylke
Nordland - Nordlánnda
Gnr / Bnr
233 / 31
Saksnummer
2026/16050
Fase
Ferdigattest

Om byggesaken

Fritidsboligen er en Saltdalshytte oppført i 2005 med et bruksareal på 69 m² fordelt på ett plan med hems. Bygningen har bindingsverksvegger med bordkledning, torvtak på sperrekonstruksjon, og vinduer med 2-lags glass. Innvendig er det furugulv, trepanel på vegger og tak, og en funksjonell planløsning med entré, stue/kjøkken i åpen løsning, bad, tre soverom og bod. Badet har flislagt gulv med varmekabler, dusjkabinett og toalett. Det er vedovn i stuen og elektriske panelovner. På tomten finnes to uthus på ca. 7 m² hver, en grillhytte på ca. 9 m² med vedovn, og et naust fra 2023 med innlagt strøm og støpt båtutsett. Tomten er på ca. 878 m², pent opparbeidet med terrasser og plen. Eiendommen har adkomst via privat vei, innlagt vann fra privat vannverk, og avløp til septiktank. Det foreligger ferdigattest for naustet, og søknad om ferdigattest for fritidsboligen er under behandling. Tilstandsrapport fra 2026 beskriver normal slitasje og enkelte avvik som alder på vinduer, skjev betongsøyle, manglende rekkverk på terrasse og trapper, og behov for tiltak på badets fall og membran. Eiendommen selges møblert med hvitevarer som komfyr, oppvaskmaskin og vaskemaskin.

Produkter og materialer

Vinduer Trevinduer med 2-lags glass

🧱 Tre

Antall: 10

Malte trevinduer med 2-lags glass, alder ca. 21 år, tilstandsgrad 2 pga alder og slitasje

Vinduer i fritidsboligen, krever vedlikehold og på sikt utskiftning

Gulv Furugulv og parkett

🧱 Tre

Furugulv i soverom og panel på vegger/tak, parkett i stue med slitasje utover forventet

Innvendige gulvflater

Varmepumpe Ingen varmepumpe oppgitt

Ingen varmepumpe nevnt i dokumentene

Maling Maling av uthus og grillhytte

Malt uthus og grillhytte i 2025

Vedlikehold av uthus og grillhytte

Terrasse Trekonstruksjon med impregnerte terrassebord

🧱 Impregnert tre

Antall: 1

Terrasse med impregnert trekonstruksjon og terrassebord, delvis overbygget

Terrasse foran fritidsboligen

Bad Flislagt bad med varmekabler

🧱 Fliser

Antall: 1

Bad med flislagt gulv og vegger, varmekabler, dusjkabinett, toalett og baderomsinnredning, manglende fall til sluk, begrenset sluktilgang, naturlig ventilasjon

Bad/vaskerom i fritidsboligen

Trapper Innvendig hemstrapp

🧱 Tre

Antall: 1

Hemstrapp i stue til hems

Innvendig trapp til hems

Fasade Bindingsverksvegger med bordkledning

🧱 Tre

Antall: 1

Bindingsverksvegger med stående bordkledning

Yttervegger på fritidsboligen

Maling Beising og maling av panel

Beising av panelvegger og gulv utført av ufaglærte i 2004

Vedlikehold av innvendige overflater

VVS Varmtvannstank

Antall: 1

Varmtvannstank ca. 120 liter, alder over 20 år

Varmtvannsbereder i bod

Dører Ytterdør og balkongdør i tre

🧱 Tre

Antall: 2

Malt ytterdør og balkongdør i tre

Hovedytterdør og balkongdør i fritidsboligen

Uthus To uthus på ca. 7 m² hver

🧱 Laftede vegger, tregulv, tak med shingel

Antall: 2

Uthus med normal standard, noe fuktmerker og mose på tak

Uthus på tomten

Trapper Utvendig tretrapp i impregnert virke

🧱 Impregnert tre

Antall: 1

Utvendig trapp til terrasse med skjevheter, krever lokal utbedring

Trapp til terrasse

Pipe Elementpipe med vedovn

🧱 Elementpipe

Antall: 1

Elementpipe med vedovn, mangler ildfast plate under feieluke, brennbart materiale nærmere enn 300 mm

Pipe og ildsted i stue

Kjøkken Kjøkkeninnredning med profilerte fronter

🧱 Laminat benkeplate

Antall: 1

Kjøkken med profilerte fronter, laminat benkeplate, nedfelt vask, komfyr, oppvaskmaskin, kjøl/frys i bod

Kjøkkeninnredning og utstyr

Solceller Ingen solceller oppgitt

Ingen solcelleanlegg nevnt i dokumentene

Grill Grillhytte med vedovn

🧱 Trekonstruksjon med shingeltak

Antall: 1

Grillhytte på ca. 9 m² med vedovn og benker

Frittliggende grillhytte på tomten

Grunnarbeid Betongsøyler

🧱 Betong

Antall: 1

Betongsøyle under stubbloftsgulv med merkbar helning, krever nærmere analyse og utbedring

Fundamentering av fritidsboligen

Elektro Automatsikringer og sikringsskap

Antall: 1

Automatsikringer med 40A hovedsikring, 9 kurser, hovedsakelig skjult anlegg, el-anlegg ikke faglig kontrollert

Elektrisk anlegg i fritidsboligen

Naust Naust med innlagt strøm

🧱 Bindingsverk med liggende kledning og stålplatetak

Antall: 1

Naust oppført i 2023 med innlagt strøm og støpt båtutsett, elektrisk port

Naust på egen tomt ca. 300 meter fra fritidsboligen

Tak Torvtak på sperrekonstruksjon

🧱 Torv på sarnafilduk

Antall: 1

Taktekkingen er torv, taket er lukket sperrekonstruksjon, risikokonstruksjon pga utilgjengelighet for inspeksjon

Taktekking og takkonstruksjon på fritidsboligen

VVS Vann- og avløpsledninger

🧱 Plast (rør i rør)

Innvendige vannledninger av plast rør i rør, avløpsrør av plast, alder over halvparten av forventet levetid, rørkurser ikke merket

Vann- og avløpsinstallasjoner

Ventilasjon Naturlig ventilasjon

Naturlig ventilasjon med ventiler i vindu og vegg, mangler mekanisk avtrekk på bad

Ventilasjon i fritidsboligen

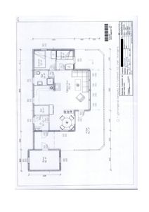
Plantegning

Enebolig 112.5 m²

Etasje 1 112.5 m²

Rom Areal Vinduer Dører
Entré 101 8.2 m² 0 2
Soverom 102 14.5 m² 1 1
Stue 103 32.0 m² 2 1
Kjøkken 104 10.5 m² 1 1
Spisestue 105 12.0 m² 1 1
Soverom 106 13.8 m² 1 1
Soverom 107 12.5 m² 1 1
Soverom 108 11.0 m² 1 1
Bad 109 6.0 m² 0 1
Bod 110 3.5 m² 0 1

Fasader

Enebolig

Nord
Materiale
Tre
Taktype
Saltak
Takmat.
Tegl
Vinduer
3
Dører
1
Balkonger
1
Synlige etasjer
2
Sør
Materiale
Tre
Taktype
Saltak
Takmat.
Tegl
Vinduer
2
Dører
1
Balkonger
1
Synlige etasjer
2
Øst
Materiale
Tre
Taktype
Saltak
Takmat.
Tegl
Vinduer
6
Dører
1
Balkonger
1
Synlige etasjer
2
Vest
Materiale
Tre
Taktype
Saltak
Takmat.
Tegl
Vinduer
3
Dører
1
Synlige etasjer
2

Hendelser

21.04.2026 Erklæring om overtakelse av søkeransvar
16.04.2026 Digital salgsoppgave
10.04.2026 Søknad om ferdigattest hytta