NewConstruction Avslatt Fritidsbolig

Ny fritidsbolig og bod med riving i Gruvevegen 47, Karmøy

📍 Gruvevegen 47 , 4250 KOPERVIK

Nøkkelinfo

Sakstype
Nybygg
Bygningstype
Fritidsbolig
Bruksareal
96 m²
Kommune
Karmøy
Fylke
Rogaland
Gnr / Bnr
60 / 32
Saksnummer
2024/5881
Fase
Avslått

Om byggesaken

Ny fritidsbolig på 82,8 m² BRA fordelt på to etasjer med saltak og sedumtak skal oppføres på eksisterende fundament på eiendommen Gruvevegen 47. Bygget inneholder stue/kjøkken, to soverom, kontor, vaskerom, bad og wc. Det eksisterer to uthus på tomten med samlet BYA på 13,6 m². Samlet bebygd areal for ny fritidsbolig og uthus blir 96,4 m², innenfor kommuneplanens grense på 100 m² BYA for fritidsboliger i LNF-område. Tiltaket inkluderer også etablering av privat vannbrønn med senkepumpe og minirenseanlegg for avløp. Prosjektet innebærer riving av tidligere fritidsbolig som brant ned. Bygningen er tilpasset terreng og landskap med fokus på minimal naturinngrep, blant annet ved gjenbruk av eksisterende fundament og torvtak. Det er én trapp i bygget, og fasadene er i tre med saltak. Søknaden har vært gjenstand for dispensasjonssøknad og klagebehandling, men er et klart byggeprosjekt.

Produkter og materialer

Grunnarbeid Fundament og støttemur

🧱 Betong

Eksisterende fundament og støttemur gjenbrukes

Gjenbruk av eksisterende betongfundament og støttemur

Dører Ytterdører og balkongdører

Antall: 9

Ytterdører og dører til balkong/terrasse, totalt 9 stk

Bad Bad og WC

Antall: 2

Bad og WC med standard sanitærutstyr

VVS Minirenseanlegg og vannbrønn

Antall: 1

Biovac minirenseanlegg Dynamic 1 (FD5NGRP), vannbrønn med senkepumpe

Privat vannforsyning med borebrønn og minirenseanlegg for avløp

Tømrer Tømrerarbeid

Tømrerarbeid for oppføring av fritidsbolig og bod

Tømrerarbeid for nybygg og riving av eksisterende bygg

Vinduer Fasadevindu

Antall: 14

Fasadevindu i trehus, antall 14 fordelt på alle fasader

Gulv Innvendige gulv

Innvendige gulv i fritidsboligen, materialvalg ikke spesifisert

Maling Utvendig og innvendig maling

Maling av trefasader og innvendige overflater, fargevalg naturtilpasset

Maling for fasade og innvendige overflater

Trapper Innvendig trapp

Antall: 1

Innvendig trapp mellom 1. og 2. etasje

Fasade Trepanel

🧱 Tre

Fasader i tre, saltak med sedumtak

Fasade i tre med saltak og sedumtak for fritidsbolig

Annet Terrasse/adkomst

Terrasse og adkomst på eksisterende grunnmursplate/fundament

Terrasse og adkomst på eksisterende fundament, ikke medregnet i BYA

Tak Saltak med sedumtak

🧱 Sedum

Saltak med sedumtak som takmateriale

Tak med saltak konstruksjon og sedum som taktekking

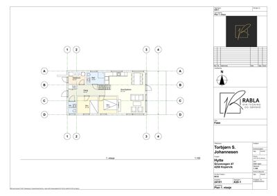
Plantegning

Hytte 100.2 m²

Etasje 1 100.2 m²

Rom Areal Vinduer Dører
Stue/Kjøkken 101 33.1 m² 3 1
Sov 102 8.1 m² 1 1
Sov 103 7.2 m² 1 1
Gang 104 9.9 m² 0 3
Vaskerom 105 4.6 m² 0 1
Bad 106 4.8 m² 0 1
Wc 107 2.3 m² 0 1

Fasader

Hytte

Vest
Materiale
Tre
Taktype
Saltak
Takmat.
Sedum
Vinduer
3
Dører
0
Synlige etasjer
1
Nord
Materiale
Tre
Taktype
Saltak
Takmat.
Sedum
Vinduer
3
Dører
2
Balkonger
1
Synlige etasjer
2
Øst
Materiale
Tre
Taktype
Saltak
Vinduer
4
Dører
0
Balkonger
1
Synlige etasjer
2
Sør
Materiale
Tre
Taktype
Saltak
Vinduer
4
Dører
0
Balkonger
1
Synlige etasjer
1

Hendelser

17.04.2026 Gnr. 60, bnr. 32 - Oppdaterte dokumenter
30.03.2026 Videre saksgang i klagesak- Gnr. 60, bnr. 32 - Søknad om nytt bygg, fritidsbolig - Rammetillatelse - Gruvevegen 47
23.03.2026 Gnr. 60, bnr. 32 - Vedrørende politisk vedtak
20.03.2026 Melding om politisk vedtak - gnr. 60, bnr. 32 - Søknad om nytt bygg, fritidsbolig - Rammetillatelse - Gruvevegen 47
19.03.2026 Gnr. 60, bnr. 32 - Oppdatering i byggesak etter behandling i Hovedutvalget 17.03
10.03.2026 Gnr. 60, bnr. 32 - Tilbakemelding - Melding om synfaring
09.03.2026 Melding om synfaring
26.02.2026 Gnr. 60, bnr. 32 - Melding om politisk vedtak - Søknad om nytt bygg, fritidsbolig - Gruvevegen 47
03.02.2026 Svar - Gnr. 60, bnr. 32 - Ber om status i saken - klage på vedtak
30.01.2026 Gnr. 60, bnr. 32 - Ber om status i saken - klage på vedtak
27.01.2026 Vedtak i klagesak - avslag på søknad om fritidsbolig - gnr. 60, bnr. 32 - Gruvevegen 47
03.12.2025 Gnr. 60, bnr. 32 - Klage på vedtak
20.11.2025 Avslag - riving av fritidsbolig og oppføring av ny fritidsbolig og bod - gnr. 60, bnr. 32 - Gruvevegen 47
03.11.2025 Gnr. 60, bnr. 32 - Supplering av søknad
06.10.2025 Tilbakemelding om mangler - riving og nybygg fritidsbolig - gnr. 60, bnr. 32 - Gruvevegen 47
19.09.2025 Gnr. 60, bnr. 32 - Supplering av søknad
06.02.2025 Gnr. 60, bnr. 32 - Supplering av søknad: Kart, dispensasjonssøknad, nabovarsel, med mer
01.11.2024 Gnr. 60, bnr. 32 - Supplering av søknad
31.10.2024 Gnr. 60, bnr. 32 - Erklæring om rettighet i fast eiendom
30.10.2024 Gnr. 60, bnr. 32 - Svar på mangelbrev
19.08.2024 Gnr. 60, bnr. 32 - Ytterligere mangler ved søknaden
31.07.2024 Tilbakemelding om mangler - oppføring av fritidsbolig - gnr. 60, bnr. 32
08.07.2024 Gnr. 60, bnr. 32 - Søknad om nytt bygg, fritidsbolig - Rammetillatelse - Gruvevegen 47