NewConstruction Ferdigattest Fritidsbolig

Ny fritidsbustad i Haggardshjellen 47, Valldal

📍 Haggardshjellen 47 , 6210 VALLDAL

Nøkkelinfo

Sakstype
Nybygg
Bygningstype
Fritidsbolig
Bruksareal
110 m²
Kommune
Fjord
Fylke
Møre og Romsdal
Gnr / Bnr
6 / 15
Saksnummer
2026/134
Fase
Ferdigattest

Om byggesaken

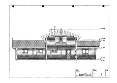
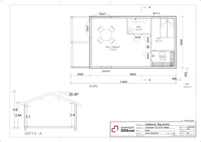
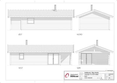
Ny fritidsbustad på 109,8 m² BYA med saltak og takvinkel 27°, oppført i bindingsverk med liggjande bordkledning. Bygget har to etasjer med hovedetasje og loft, og inneholder stue/kjøkken, 4 soverom, 2 bad, badstue, bod, gang, og utvendig bod/carport. Tomten er på 549 m² med en utnyttelsesgrad på 20%. Bygget er tilpasset terrenget med fokus på å unngå store terrenginngrep, og har godkjent reguleringsplan med tilhørende føringer for estetikk og materialbruk. Det er etablert privat vann- og avløpsanlegg, og tilkomstveg i henhold til reguleringsplan. Bygget har pipe, 8 vinduer og 2 dører, samt terrasse på 55 m². Det foreligger ferdigattest og godkjente ansvarsretter for prosjektering og utførelse.

Produkter og materialer

Dører Ytterdører

🧱 Tre

Antall: 2

Ytterdører i tre, 2 stk

Ytterdører til inngang og utgang

Tømrer Bindingsverk og bordkledning

🧱 Tre

Bindingsverk med liggjande bordkledning, saltak med takstein, takvinkel 27°

Byggematerialer for vegger, tak og kledning

Bad Bad og vaskerom

Antall: 2

Bad og vaskerom i hoved- og loftsetasje

Vei Privat veg og avkjørsel

Privat veg med godkjent avkjørsel til fylkesveg

Adkomstveg til fritidsbolig og anneks

Vinduer Fasadevindu

🧱 Tre

Antall: 8

Storruta vinduer i tre, 8 stk

Fasadevindu i tre til fritidsbolig

Tømrer Anneks

🧱 Tre

Antall: 1

Anneks BYA 59,4 m² med stove, bad, soverom og badstue

Frittstående anneks til fritidsbolig

Grunnarbeid Tomtearbeid og fundamentering

Grunnarbeid og fundamentering for fritidsbolig

Grunnarbeid og fundamentering iht. ansvarlig utfører

Elektro Elektrisk installasjon

Elektrisk installasjon iht. gjeldende forskrifter

Garasje Frittstående garasje

🧱 Tre

Antall: 1

Garasje BYA 44,6 m², takvinkel 20°, ferdigmeldt

Frittstående garasje på eiendommen

Gulv Terrasse

🧱 Tre

Antall: 1

Terrasse på 55 m²

Utendørs terrasse i tre

Brannvern Brannforebyggende tiltak

Brannforebyggende tiltak og tilsyn utført, ingen avvik

Brannsikring og tilsyn av fyringsanlegg

Tak Saltak med takstein

🧱 Takstein

Saltak med takstein, takvinkel 27°

Taktekking for fritidsbolig

VVS Privat vann- og avløpsanlegg

Privat vannverk og privat avløpsanlegg med utslippstillatelse

Vann- og avløpssystem for fritidsbolig

Plantegning

Enebolig 170.8 m²

Etasje 1 170.8 m²

Rom Areal Vinduer Dører
Kjøkken KITCHEN 17.0 m² 1 1
Inngang ENTRANCE 5.6 m² 0 2
Oppbevaring STORE 3.7 m² 0 2
Bad BATH 5.6 m² 0 1
Bad BATH 5.2 m² 0 1
Gang GANG 3.3 m² 0 3
Soverom BED ROOM 8.7 m² 1 1
Soverom BED ROOM 5.6 m² 1 1
Soverom BED ROOM 8.7 m² 1 1
Terrasse TERRACE 55.0 m² 0 0
Stue / Kjøkken 101 27.0 m² 2 3
Bad 102 3.8 m² 0 1
Sov 103 8.0 m² 2 1
Badstu 104 3.7 m² 0 1
Kjøkken 105 3.0 m² 0 1

Fasader

Hytte

Nordøst
Materiale
Tre
Taktype
Saltak
Høyde
6.0 m
Mønehøyde
8.4 m
Vinduer
2
Dører
1
Synlige etasjer
2
Nordvest
Materiale
Tre
Taktype
Saltak
Høyde
6.0 m
Mønehøyde
8.5 m
Vinduer
2
Dører
1
Synlige etasjer
2

Garasje

Øst
Materiale
Tre
Taktype
Flatt tak
Vinduer
1
Dører
1
Synlige etasjer
1
Nord
Materiale
Tre
Taktype
Saltak
Vinduer
0
Dører
0
Synlige etasjer
1
Vest
Materiale
Tre
Taktype
Flatt tak
Vinduer
1
Dører
1
Synlige etasjer
1
Sør
Materiale
Tre
Taktype
Saltak
Vinduer
0
Dører
1
Synlige etasjer
1
Ukjent
Materiale
Tre
Taktype
Saltak
Vinduer
0
Dører
0
Synlige etasjer
1

Enebolig

Ukjent
Materiale
Tre
Taktype
Saltak
Høyde
3.6 m
Mønehøyde
5.8 m
Vinduer
8
Dører
2
Balkonger
2
Synlige etasjer
2

Hendelser

16.04.2026 Bestilling av meklarpakke - gbnr 73/107 - Langereiten 49 - Eidsdal
09.04.2026 Svar på bestilling av meklarpakke - Gbnr 27/70 - Øygarden 1, Valldal
07.04.2026 Bestilling av meklarpakke - Gbnr 27/70 - Øygarden 1, Valldal
24.03.2026 Svar på bestilling av meklarpakke - gbnr 49/30 - Dalssida 43 - Norddal
23.03.2026 Svar på restansesjekk gbsnr 27/150/1 - Olavsgata 37B - Valldal
19.03.2026 Bestilling av meklarpakke - gbnr 49/30 - Dalssida 43 - Norddal
19.03.2026 Restansesjekk gbsnr 27/150/1 - Olavsgata 37B - Valldal
10.03.2026 Svar på bestilling av meklarpakke - Gbnr 6/15 - Haggardshjellen 47, Valldal
05.03.2026 Bestilling av meklarpakke - Gbnr 6/15/0/0 - Haggardshjellen 47, Valldal
04.03.2026 Svar på restansesjekk gbnr 73/145 - Langereiten 67 - Eidsdal
02.03.2026 Restansesjekk gbnr 73/145 - Langereiten 67 - Eidsdal
28.01.2026 Svar på bestilling av meklarpakke - Gbsnr 27/150/1 - Olavsgata 37B, Valldal
28.01.2026 Svar på bestilling av meklarpakke - Gbnr 10/62 - Trøavegen 70, Valldal
27.01.2026 Bestilling av meklarpakke - Gbnr 10/62 - Trøavegen 70, Valldal
26.01.2026 Ettersending av informasjon til meklarpakke
23.01.2026 Svar på bestilling av meklarpakke
19.01.2026 Bestilling av meklarpakke - Gbsnr 27/150/1 - Olavsgata 37B, Valldal
15.01.2026 Bestilling av meklarpakke