NewConstruction Rammetillatelse Fritidsbolig

Ny fritidsbolig på Sjusjøen-Pihl 4068, Ringsaker

📍 Hammarseterhøgda 70 , 2387 BRUMUNDDAL

Nøkkelinfo

Sakstype
Nybygg
Bygningstype
Fritidsbolig
Bruksareal
93 m²
Boenheter
1
Kommune
Ringsaker
Fylke
Innlandet
Gnr / Bnr
527 / 1031
Saksnummer
26/2813
Fase
Rammetillatelse

Om byggesaken

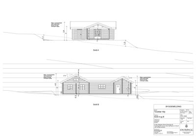
Ny fritidsbolig på 93 m² BRA oppføres på eiendommen Sjusjøen-Pihl 4068 i Ringsaker kommune. Bygget er en enetasjes hytte med saltak og torvtak, mønehøyde 4,5 m og gesimshøyde 3,2 m. Bygget har tradisjonell laftestil med lamell-trelast som gir sprekkfri overflate. Hytten inneholder oppholdsrom, kjøkken, bad, badstue, teknisk rom og tre soverom. Fundamentet består av isolert ringmur i EPS med betong, radonsperre og drenering. Overvann håndteres lokalt med infiltrasjon og fordrøyning. Bygget har 3-lags vinduer med blanding av smårutete og større glassflater. Det er planlagt 2 biloppstillingsplasser. Bygget er tilpasset terrenget med lav synlig fundamenthøyde og vegetasjon tilbakeføres rundt. Alle tekniske installasjoner som vann, avløp, sanitær og ildsted er prosjektert og ansvarlig foretak er engasjert.

Produkter og materialer

Terrasse Utearealer og parkering

Antall: 2

To biloppstillingsplasser planlagt, utearealer tilpasses terreng og vegetasjon tilbakeføres

Parkering og utearealer rundt hytten

Gulv Innvendige gulvflater

Gulvflater ikke detaljert spesifisert, antatt standard tre- eller parkettgulv

Innvendige gulv i oppholdsrom, soverom og badstue

Fasade Trepanel

🧱 Lamell-tre

Tradisjonell laftestil med lamell-trelast, mørkt fargevalg

Yttervegger i lamell-tre med tradisjonell laftestil og mørk farge

Vinduer Blandet smårutete og store glassflater

🧱 Tre/aluminium rammer

Antall: 6

Vinduer med blanding av smårutete og større glassflater

Vinduer i fasaden med varierende glassfelt for estetikk og lysinnslipp

Radon Radonsperre og radonbrønn

🧱 HALOPROOF RMS 300 radonsperre, radonbrønn

Radonsperre montert i gulv og ringmur, radonbrønn for ventilering av grunn

Radonsikring i henhold til TEK17 krav

Tak Saltak med torvtak

🧱 Torv

Saltak med 27 graders takvinkel, torvtak for naturlig tilpasning

Saltak med torvtak som forsinker vannavrenning og gir naturlig estetikk

Ventilasjon Ventilasjonssystem

Ventilasjon planlagt iht. byggtekniske krav, ikke detaljert spesifisert

Ventilasjon for oppholdsrom og våtrom

VVS Innvendig sanitæranlegg

Innvendig sanitæranlegg utført av Assemblin AS avd. RAMSØY

Sanitærinstallasjoner for bad og kjøkken

Pipe Pipe og ildsted

Antall: 1

Pipe og ildsted utført av MURMESTER HALVORSEN AS

Pipe og ildsted for oppvarming

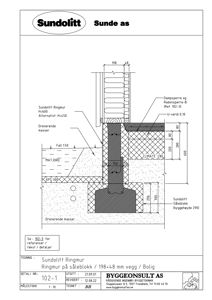
Grunnarbeid Fundament og ringmur

🧱 EPS isolasjon, betong, radonsperre

Sundolitt ringmur system med EPS isolasjon, betong RE35-RE60, radonsperre HALOPROOF RMS 300

Isolert ringmur med betongfundament og radonsperre for fundamentering

Bad Bad og våtromsinnredning

Antall: 2

Bad og badstue med våtromsinnredning, fliser og membran iht. våtromsnorm

Innredning og overflater i bad og badstue

Tømrer Trekonstruksjoner

🧱 Tre

Tømrerarbeider og montering av trekonstruksjoner utført av FAUN MONTASJE AS

Bygging av trekonstruksjoner for vegger, tak og innvendige elementer

Dører Ytterdører og innerdører

🧱 Tre

Antall: 9

Ytterdører og innerdører i tre, inkludert dør til teknisk rom og badstue

Dører for adkomst og rominndeling i hytten

Betong Ringmur og plate på mark

🧱 B30 betong

Betongkvalitet B30, maks tilslag 16 mm, støping uten vibrator, armering 2xØ12 mm horisontalt

Betongfundament og ringmur med armering og radonsikring

Elektro Elektriske installasjoner

Elektriske installasjoner planlagt, men ikke detaljert spesifisert i dokumentene

Elektriske anlegg for belysning og strøm

Isolasjon EPS isolasjon i ringmur

🧱 EPS S80

EPS isolasjon med varmekonduktivitet 0,035 W/mK, minimum 350 mm i grunn

Isolasjon i ringmur og under gulv for å oppnå U-verdi 0,10 W/m²K

Fasader

Enebolig

Nordøst
Materiale
Tre
Taktype
Saltak
Vinduer
5
Dører
1
Synlige etasjer
1
Nordvest
Materiale
Tre
Taktype
Flatt tak
Vinduer
2
Dører
1
Synlige etasjer
1
Sørøst
Materiale
Tre
Taktype
Saltak
Vinduer
1
Dører
0
Synlige etasjer
1

Hendelser

21.04.2026 Tilsyn med kvalifikasjoner - Nybygg fritidsbolig, Gbnr 527/1/1031, Sjusjøen-Pihl 4068, Sjusjøen
20.04.2026 Supplering av søknad, endring av ansvarsrett - Nybygg fritidsbolig, Gbnr 527/1/1031, Sjusjøen-Pihl 4068, Sjusjøen
17.04.2026 Ttilsyn med kvalifikasjoner - Nybygg fritidsbolig, Gbnr 527/1/1031, Sjusjøen-Pihl 4068, Sjusjøen
17.04.2026 Tilsyn med kvalifikasjoner -Nybygg fritidsbolig, Gbnr 527/1/1031, Sjusjøen-Pihl 4068, Sjusjøen
17.04.2026 Vedrørende kvalifikasjoner - Nybygg fritidsbolig, Gbnr 527/1/1031, Sjusjøen-Pihl 4068, Sjusjøen
16.04.2026 Ved. manglende dokumentasjon, tilsyn med kvalifikasjoner -Nybygg fritidsbolig, Gbnr 527/1/1031, Sjusjøen-Pihl 4068, Sjusjøen
07.04.2026 Dokumentasjon vedrørende tilsyn med kvalifikasjoner - Nybygg fritidsbolig, Gbnr 527/1/1031, Sjusjøen-Pihl 4068, Sjusjøen
12.03.2026 Tilsyn med kvalifikasjoner - Nybygg fritidsbolig, Gbnr 527/1/1031, Sjusjøen-Pihl 4068, Sjusjøen
19.02.2026 Vedtak - Tillatelse til tiltak for oppføring av ny hytte - Gbnr. 527/1/1031 - vest på Heståsen på Sjusjøen-Pihl 4068
13.02.2026 Oppdatert tegning - Nybygg fritidsbolig, Gbnr 527/1/1031, Sjusjøen-Pihl 4068, Sjusjøen
11.02.2026 Endring av oppfylling nødvendig -- Nybygg fritidsbolig, Gbnr 527/1/1031, Sjusjøen-Pihl 4068, Sjusjøen
09.02.2026 Søknad om tillatelse - Nybygg fritidsbolig, Gbnr 527/1/1031, Sjusjøen-Pihl 4068, Sjusjøen