NewConstruction Rammetillatelse Fritidsbolig

Ny fritidsbolig med terrasse på Haukenesodden 24, Moi

📍 Haukenesodden 24 , 4460 MOI

Nøkkelinfo

Sakstype
Nybygg
Bygningstype
Fritidsbolig
Bruksareal
157 m²
Boenheter
1
Kommune
Lund
Fylke
Rogaland
Gnr / Bnr
17 / 44
Saksnummer
2026/834
Fase
Rammetillatelse

Om byggesaken

Ny fritidsbolig på 157,2 m² fordelt på to etasjer med saltak og trekledning. Første etasje inneholder stue/kjøkken, bad, to soverom, bod, entre og gang, samt en terrasse på 20,7 m². Andre etasje består av loftsrom med tre ikke målebare rom. Bygget har totalt 14 vinduer og 7 dører, og er prosjektert med radonsperre og radonbrønn. Fundament og drenering er tilpasset byggegrunn med drenerende masser og drensrør. Ventilasjon er planlagt med mekanisk avtrekk i våtrom. Bygningen har mønehøyde 5,5 m og gesimshøyde 3,4 m, og er plassert i et område uten fare for flom eller skred.

Produkter og materialer

Ventilasjon Mekanisk avtrekk

Mekanisk avtrekk i våtrom og toalett, ventilasjon tilpasset rommenes bruk og utforming

Ventilasjonssystem for fukt- og luktstyring

Fasade Utvendig trekledning

🧱 Tre

Utvendig trekledning på hele bygget

Kledning av tre på alle fasader

Bad Bad med sanitærutstyr

Antall: 1

Bad på 5,1 m² med dør, ventilasjon og sanitærutstyr

Bad med nødvendig installasjoner og ventilasjon

Grunnarbeid Drenering og fundamentering

🧱 Drensrør, drenerende masser, betong såleblokk

Drensrør med fall minimum 1:200, drenerende og komprimerende masser under kjelleryttervegger og kjellergolv, såleblokk etter betongprosjektering

Fundamentering og drenering tilpasset byggegrunn

Terrasse Terrasse i tre

🧱 Tre

Antall: 1

Terrasse på 20,7 m² tilknyttet fritidsboligen

Utendørs terrasse for opphold

Isolasjon Radonsperre og isolasjon

🧱 Radonsperre, trykkfast ekstrudert polystyren (XPS)

Radonsperre og radonbrønn, isolasjon under fundament og i vegger iht. energiberegning

Tiltak mot radon og isolasjon i byggegrunn og konstruksjon

Gulv Innvendige gulvflater

Gulvflater i stue/kjøkken, soverom, bad, gang og entre, materialer ikke spesifisert

Innvendige gulvflater i alle oppholdsrom

Dører Ytterdører i tre

🧱 Tre

Antall: 7

Ytterdører i tre, inkludert terrassedør til terrasse på 20,7 m²

Totalt 7 dører i bygget

VVS Innvendig VA-installasjon

Innvendig vann- og avløpsinstallasjon, inkludert vannklosett og privat avløpsanlegg

VVS-installasjoner for sanitær og vannforsyning

Tømrer Trekonstruksjon og montering

🧱 Tre

Tømrerarbeid og montering av trekonstruksjon for hele bygget

Tømrerarbeid for oppføring av fritidsbolig

Vinduer Fasadevindu i tre

🧱 Tre med 3-lags energiglass

Antall: 14

Vinduer i tre med energiglass, inkludert rømningsvinduer i henhold til TEK

Totalt 14 vinduer fordelt på to etasjer

Tak Saltak

🧱 Tre, takstein eller lignende

Saltak med mønehøyde 5,5 m og gesimshøyde 3,4 m, snøfangere på hele taket

Saltak med snøfangere for snøsikring

Trapper Innvendig trapp

🧱 Tre

Antall: 1

Innvendig trapp mellom etasjene

En trapp for adkomst til loftsrom

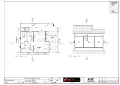
Plantegning

Hytte 157.2 m²

Etasje 1 120.5 m²

Rom Areal Vinduer Dører
Bod 101 3.3 m² 0 1
Sov 102 8.2 m² 1 1
Sov 103 5.6 m² 1 1
Entre 104 5.4 m² 0 1
Bad 105 5.1 m² 0 1
Stue/kjøkken 106 32.4 m² 2 1
Terrasse 107 20.7 m² 0 0
Gang 108 5.0 m² 0 0

Etasje 2 36.7 m²

Rom Areal Vinduer Dører
Ikke målbart loft 201 10.9 m² 0 1
Ikke målbart loft 202 14.9 m² 0 0
Ikke målbart loft 203 10.9 m² 0 1

Fasader

Hytte

Nord-øst
Materiale
Tre
Taktype
Saltak
Vinduer
5
Dører
1
Synlige etasjer
2
Sør-øst
Materiale
Tre
Taktype
Saltak
Vinduer
2
Dører
2
Synlige etasjer
1
Sør-vest
Materiale
Tre
Taktype
Saltak
Vinduer
3
Dører
0
Synlige etasjer
2
Nord-vest
Materiale
Tre
Taktype
Saltak
Vinduer
3
Dører
0
Synlige etasjer
1

Hendelser

20.04.2026 Gebyrer og avgifter fritidsbolig tomt 8, Haukenesodden 24
20.04.2026 Tillatelse til tiltak, oppføring av fritidsbolig, tomt nr. 8, Haukenesodden 24, Moi Bygg AS
17.04.2026 Søknad om tillatelse i ett trinn 17/44