NewConstruction UnderBehandling Fritidsbolig

Ny fritidsbolig med riving på Hesnes 5, Borøy

📍 Hesnes 5 , 4916 BORØY

Nøkkelinfo

Sakstype
Nybygg
Bygningstype
Fritidsbolig
Bruksareal
138 m²
Boenheter
1
Kommune
Tvedestrand
Fylke
Agder
Gnr / Bnr
76 / 185
Saksnummer
2025/2188
Fase
Under behandling

Om byggesaken

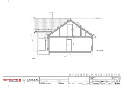
Ny fritidsbolig på 138 m² BRA og 105 m² BYA oppføres på Hesnes 5, Borøy, etter riving av eksisterende hytte på 75 m² BYA. Bygget er en to-etasjes hytte med saltak, hvit trepanelkledning og antikk rødt tak, i tradisjonell sørlandsstil med moderne glassflater i gavlvegg. Hovedetasjen inneholder stue/kjøkken, to soverom, bod, bad, entre og trapperom, mens hemsetasjen har fire rom. Bygget har 14 vinduer, 7 dører og flere balkonger. Tomten er kupert med flere platåer og trapper som inngår i BYA-beregningen. Det er tilknytning til offentlig vann og avløp via eksisterende tilkobling. Mønehøyden er ca. 7,3 m over gjennomsnittlig terreng. Det foreligger dispensasjonssøknad for plassering i LNF-område, BYA over 120 m² og bygging innenfor 100-metersbeltet. Prosjektet har ansvarlige foretak for arkitektur, utførelse, riving og VVS.

Produkter og materialer

Tak Saltak med takstein

🧱 Antikk rød takstein

Antall: 1

Mønehøyde ca. 7,3 m over gjennomsnittlig terreng

Saltak med antikk rød takstein i tradisjonell sørlandsstil

Gulv Innvendige gulvflater

Standard gulvflater i stue, soverom og hems

Innvendige gulvflater i tre eller laminat

Fasade Trepanelkledning

🧱 Tre, hvitmalt

Hvit kledning i tradisjonell sørlandsstil

Utvendig trepanelkledning malt hvit

Vinduer Fasadevindu

🧱 Tre med glassflater

Antall: 14

Smale vinduer med treverk imellom, glassflater i gavlvegg

Vinduer i tradisjonell sørlandsstil med moderne glassflater for lys og utsikt

Isolasjon Bygningsisolasjon

Isolasjon iht. TEK10/TEK17 krav for fritidsbolig

Isolasjon i vegger, tak og gulv for energieffektivitet og komfort

VVS Sanitærinstallasjoner

Tilknytning til offentlig vann og avløp via eksisterende tilkobling

Sanitærinstallasjoner med offentlig vann og avløp

Maling Utvendig og innvendig maling

Maling av trepanel utvendig og innvendige overflater

Maling for beskyttelse og estetikk

Dører Ytterdører og balkongdører

🧱 Tre

Antall: 7

Ytterdører og dører til balkonger i tre

Betong Plasstøpte betongkonstruksjoner

🧱 Betong

Fundamenter og murarbeider utført av MESTERHYTTA BYGGPARTNERE AS

Betongfundamenter og murkonstruksjoner

Riving Riving og miljøsanering

Riving av eksisterende hytte på 75 m² BYA

Riving og miljøsanering av eksisterende fritidsbolig

Elektro Elektriske installasjoner

Elektriske installasjoner iht. gjeldende forskrifter

El-installasjoner for belysning, strøm og varme

Trapper Utendørs trapper og platåer

🧱 Tre og betong

Flere platåer og trapper på kupert tomt, inngår i BYA-beregning

Utendørs trapper og platåer for fremkommelighet i terrenget

Trapper Innvendig trapp

🧱 Tre

Antall: 1

Trapperom i 1. etasje, til hems

Innvendig trapp mellom etasjer

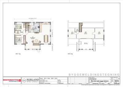
Plantegning

Enebolig 138.0 m²

Etasje 1 105.0 m²

Rom Areal Vinduer Dører
Stue/Kjøkken 101 53.0 m² 4 2
Sov 102 9.5 m² 1 1
Bod 103 2.9 m² 1 1
Sov 104 9.6 m² 1 1
Lapperom 105 2.9 m² 0 1
Entre 106 5.2 m² 0 1
Bad 107 5.6 m² 0 1

Etasje 2 33.0 m²

Rom Areal Vinduer Dører
Hems 201 6.9 m² 1 1
Hems 202 1.2 m² 0 1
Hems 203 16.7 m² 1 1
Hems 204 8.2 m² 1 1

Fasader

Hytte

Sør
Materiale
Tre
Taktype
Saltak
Vinduer
3
Dører
1
Balkonger
1
Synlige etasjer
2
Nord
Materiale
Tre
Taktype
Saltak
Vinduer
5
Dører
1
Balkonger
2
Synlige etasjer
3
Øst
Materiale
Tre
Taktype
Saltak
Høyde
7.5 m
Vinduer
4
Dører
1
Balkonger
1
Synlige etasjer
2
Vest
Materiale
Tre
Taktype
Saltak
Høyde
7.5 m
Vinduer
4
Dører
1
Balkonger
1
Synlige etasjer
2

Hendelser

19.02.2026 Mangelfull søknad - dispensasjon på gnr/bnr. 76/185 på Borøya.
19.02.2026 Sf etterspør tilleggsdokumentasjon
13.02.2026 Anmodning om forhåndsuttalelse vedr. dispensasjon fra PBL § 1-8 – Riving av fritidsbolig og etablering av ny fritidsbolig – Hesnes 5, 4916 Borøy, gnr./bnr. 76/185
12.02.2026 Orientering om videre saksgang
10.02.2026 Hesnes 5 Supplering av søknad 76/185
18.09.2025 Foreløpig tilbakemelding på søknad om riving av fritidsbolig og oppføring av ny – Hesnes 5, gnr./bnr. 76/185
15.09.2025 Byggesak - Hesnes 5, Borøy, riving av eksisterende hytte og bygging av ny.
27.08.2025 Hesnes 5 Søknad om tillatelse i ett trinn 76/185