NewConstruction UnderBehandling Fritidsbolig

Ny laftet visnings- og utleiehytte i Siksjølia 174

📍 Holla, Siksjølia 172 , 2555 TUFSINGDALEN

Nøkkelinfo

Sakstype
Nybygg
Bygningstype
Fritidsbolig
Bruksareal
130 m²
Boenheter
1
Kommune
Os
Fylke
Innlandet
Gnr / Bnr
90 / 1
Saksnummer
2026/253
Fase
Under behandling

Om byggesaken

Ny laftet tømmerhytte på 130 m² BRA med hems, tradisjonelt saltak med torvtekking og takvinkler på 22 og 24 grader. Bygget har en mønehøyde på ca. 5,2 meter over planert terreng og mørk brun beis som harmonerer med lokal byggeskikk. Hytta inneholder stue, kjøkken, bad, to soverom, WC, bod, garderobe, gangarealer og loftsrom. Bygget skal brukes som visningshytte for Røroshytta og til lavintensiv sesongbasert utleie knyttet til jakt og fiske, og er plassert i LNFR-område med minimal terrenginngrep og adkomst via eksisterende traktorvei. Prosjektet legger vekt på gjenbruk av demontert bygg, miljøhensyn og lokal næringsutvikling.

Produkter og materialer

Terrasse Terrasser

🧱 Tre

Antall: 3

Terrasser på 5 m², 12 m² og 5 m²

Utendørs terrasser tilknyttet hytta

VVS Privat vannforsyning og avløp

Boring etter vann på egen grunn, privat avløpsanlegg uten vannklosett

Vannforsyning via privat brønn og privat avløpsanlegg

Dører Ytterdører og innerdører

🧱 Tre

Antall: 17

Ytterdører og innerdører i tre, totalt 17 dører

Dører for adkomst og romavgrensning i hytta

Tømrer Bygging av laftet tømmerhytte

🧱 Tømmer

Gjenoppføring av demontert laftet hytte med hems

Tømrerarbeid for laftebygg og innvendige konstruksjoner

Fasade Laftet tømmer

🧱 Tømmer, beiset mørk brun

Antall: 1

Tradisjonell laftet tømmerhytte med hems, mørk brun beis

Laftet tømmerkonstruksjon for hytte med hems

Vinduer Fasadevindu

🧱 Tre

Antall: 14

Vinduer i tre, antall 14 fordelt på stue, soverom, loft og bod

Fasadevinduer i tre for naturlig lys og ventilasjon

Grunnarbeid Terrengtilpasning og fundamentering

Minimale terrenginngrep, bygging på planert terreng med murhøyde ca. 736 moh

Grunnarbeid for fundamentering og terrengtilpasning

Gulv Innvendige gulv

Innvendige gulv i stue, kjøkken, soverom, bad og loft

Bad Bad med sanitærutstyr

Antall: 1

Bad på 8,36 m² med dør, uten vindu

Bad med nødvendig sanitærutstyr

Tak Saltak med torvtekking

🧱 Torv

Antall: 1

Saltak med takvinkel 22 og 24 grader, torvtekking

Tradisjonelt saltak med torv som taktekking

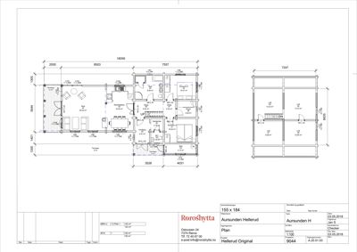
Plantegning

Enebolig 185.9 m²

Etasje 1 130.0 m²

Rom Areal Vinduer Dører
Stue 42 26.5 m² 3 1
Stue/Kjøkken 43 16.3 m² 1 1
Bad 44 8.4 m² 0 1
Soverom 2 45 10.6 m² 1 1
Room 46 4.4 m² 1 1
Gang 47 2.5 m² 0 2
Gang 48 6.5 m² 0 2
Vindfang 49 4.9 m² 0 2
Garderobe 50 2.2 m² 0 1
Soverom 2 51 10.5 m² 1 1
WC 52 1.8 m² 0 1
Bod 53 4.1 m² 1 1

Etasje 2 55.9 m²

Rom Areal Vinduer Dører
Loft 54 12.3 m² 1 1
Loft 55 13.7 m² 1 1
Loft 56 10.6 m² 1 1
Loft 57 9.6 m² 1 1

Fasader

Enebolig

Nord
Materiale
Tre
Taktype
Flatt tak
Vinduer
3
Dører
1
Synlige etasjer
1
Sør
Materiale
Tre
Taktype
Saltak
Vinduer
3
Dører
0
Synlige etasjer
1
Vest
Materiale
Tre
Taktype
Flatt tak
Vinduer
3
Dører
1
Synlige etasjer
1
Øst
Materiale
Tre
Taktype
Saltak
Vinduer
2
Dører
1
Synlige etasjer
1

Hendelser

21.04.2026 Svar ang. byggesak - Oppsetting av hytte ved Holla Gård - Gbnr 90/1 - Siksjølia 174 - Os kommune
10.04.2026 Uttalelse - byggesak - oppsetting av hytte gbnr. 90/1 - Siksjølia 174 i Os
25.03.2026 Ber om uttalelse byggesak gnr 90/1 Siksjølia 174
27.02.2026 Siksjølia 174 Søknad om rammetillatelse 90/1