NewConstruction UnderBehandling Fritidsbolig

Ny fritidsbolig med saltak i Bjødnabu

📍 Husstølvegen 495 , 4130 HJELMELAND

Nøkkelinfo

Sakstype
Nybygg
Bygningstype
Fritidsbolig
Bruksareal
72 m²
Boenheter
1
Kommune
Hjelmeland
Fylke
Rogaland
Gnr / Bnr
52 / 1
Saksnummer
2024/983
Fase
Under behandling

Om byggesaken

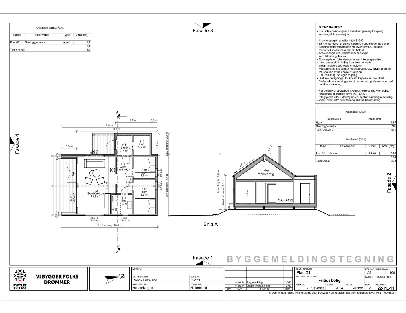
Ny fritidsbolig på eiendommen Bjødnabu, Gnr 52 Bnr 1, med et samlet bebygd areal (BYA) på 72,3 m² og bruksareal (BRA) på 62,7 m² i 1 etasje. Bygget har saltak med takvinkel på 35 grader, gesimshøyde på 3,5 meter og mønehøyde på 5,8 meter. Fasader viser totalt 6 vinduer og 4 dører fordelt på alle sider, samt pipe. Bygningen har 1 etasje og inneholder blant annet bod og oppholdsrom. Avløpsløsning med biologisk minirenseanlegg Vera Compact Mini for gråvann er planlagt. Bygget er isolert og oppfyller gjeldende TEK17 krav. Det er etablert adkomst via kommunal veg, og det foreligger godkjent utslippstillatelse. Det er søkt om og gitt midlertidig brukstillatelse.

Produkter og materialer

Dører Ytterdør

Antall: 4

Ytterdører fordelt på alle fasader, totalt 4 stk.

Vinduer Fasadevindu

Antall: 6

Fasadevinduer fordelt på alle fasader, totalt 6 stk.

Elektro Elektrisk installasjon

Elektriske installasjoner iht gjeldende forskrifter.

Gulv Innvendige gulv

Innvendige gulv i fritidsboligen.

Grunnarbeid Tomtearbeid og fundamentering

Grunnarbeid og fundamentering for ny fritidsbolig.

Tak Saltak

Antall: 1

Takvinkel 35 grader, gesimshøyde 3,5 m, mønehøyde 5,8 m

Saltak med angitte høyder og takvinkel.

Tømrer Bygging av hytte

🧱 Isolasjon iht TEK17

Isolasjon og konstruksjon i henhold til TEK17 og energidokumentasjon

Tømrerarbeid for oppføring av fritidsbolig med isolasjon og konstruksjon.

Maling Utvendig og innvendig maling

Maling av utvendige og innvendige flater.

VVS Avløpsanlegg

🧱 Biologisk minirenseanlegg Vera Compact Mini

Antall: 1

Grovvannsfilter, biologisk renseprosess, Sintef TG godkjent

Avløpsanlegg for gråvann med minirenseanlegg.

Pipe Pipe

Antall: 1

Pipe tilknyttet fritidsboligen.

Fasader

Fritidsbolig

1
Taktype
Saltak
Høyde
5.8 m
Mønehøyde
3.5 m
Vinduer
2
Dører
1
Synlige etasjer
1
2
Taktype
Saltak
Høyde
5.8 m
Mønehøyde
3.5 m
Vinduer
1
Dører
1
Synlige etasjer
1
3
Taktype
Saltak
Høyde
5.8 m
Mønehøyde
3.5 m
Vinduer
2
Dører
1
Synlige etasjer
1
4
Taktype
Saltak
Høyde
5.8 m
Mønehøyde
3.5 m
Vinduer
1
Dører
1
Synlige etasjer
1
Ukjent
Taktype
Flatt tak
Høyde
3.7 m
Mønehøyde
5.9 m
Vinduer
2
Dører
0
Balkonger
1
Synlige etasjer
1

Hendelser

14.04.2026 52/1/3 - Svar på søknad om midlertidig brukstillatelse
24.03.2026 Søknad om midlertidig brukstillatelse
01.09.2025 52/1/3 svar på innsynsbegjæring - Søknad om tillatelse til tiltak
20.08.2025 Innsynsbegjæring - 52/1/3 - Søknad om tillatelse til tiltak
02.07.2024 52/1/3 - Søknad om tillatelse til tiltak
02.07.2024 Delegert vedtak eitt-trinns søknad - 52/1/3, Bjødnabu - Fritidsbustad