NewConstruction UnderBehandling Fritidsbolig

Riving og ny fritidsbolig med anneks i Langøyveien 186, Fredrikstad

📍 Langøyveien 186 , 1679 KRÅKERØY

Nøkkelinfo

Sakstype
Nybygg
Bygningstype
Fritidsbolig
Bruksareal
70 m²
Boenheter
1
Kommune
Fredrikstad
Fylke
Østfold
Gnr / Bnr
425 / 317
Saksnummer
2023/29082
Fase
Under behandling

Om byggesaken

Prosjektet omfatter riving av en eksisterende fritidsbolig av typen Kråkerøyhytte fra 1924, samt oppføring av en ny fritidsbolig og anneks på tilnærmet samme sted i Langøyveien 186, Fredrikstad. Den nye fritidsboligen får et bruksareal på ca. 60,66 m² med saltak og liggende trekledning, og annekset får et bruksareal på ca. 9,26 m² med pult- og flatt tak. Byggene plasseres tilbaketrukket fra sjøen på tomtens laveste og minst eksponerte sted, med annekset flyttet vekk fra sjøen for å redusere privatisering av strandsonen. Ny bebyggelse viderefører det tradisjonelle uttrykket til Kråkerøyhyttene med bratte takvinkler, sprossevinduer og takark. Eksisterende terrasse erstattes med en ny, mer diskret terrasse. Prosjektet er i strid med byggeforbudet i 100-metersbeltet og LNF-formålet, og det er søkt dispensasjon. Det foreligger omfattende tilstandsvurderinger som dokumenterer at eksisterende bygg har tekniske og sikkerhetsmessige mangler, og at rehabilitering ikke er hensiktsmessig. Det er politisk vedtak om dispensasjon, men saken er påklaget og under lovlighetskontroll. Kulturminnemyndigheter fraråder riving på grunn av kulturhistorisk verdi, men tiltakshaver og ansvarlig søker argumenterer for nybygg som bedre ivaretar dagens krav og sikrer videreføring av byggeskikk.

Produkter og materialer

Gulv Innvendig gulv

🧱 Laminat og parkett

Innvendige gulv i ny hytte, høyere standard enn eksisterende

Gulvbelegg for ny fritidsbolig

Maling Utvendig maling

🧱 Naturfarger, ikke-reflekterende

Fargesetting i stedstilpasset naturfarge, også på belistning og vinduer

Maling av fasade og detaljer

Trapper Innvendig trapp

🧱 Tre

Antall: 1

Ny trapp med forsvarlig rømningsvei, håndløper og sikker utforming

Trapp i ny fritidsbolig, erstatter bratt hemstrapp i eksisterende

Grunnarbeid Fundamentering og terrengtilpasning

Beskjeden fundamentering på innmark, unngår irreversible terrenginngrep

Grunnarbeid for nybygg på eksisterende bebygd tomt

Isolasjon Vegger og tak

🧱 Mineralull eller tilsvarende

Isolasjon i vegger og tak for nybygg, oppfyller dagens krav

Isolasjon for ny fritidsbolig og anneks

Elektro Elektrisk anlegg

Oppgradert elektrisk anlegg med automatsikringer, komfyrvakt ikke montert

Elektrisk installasjon for nybygg

Vinduer Sprossevinduer

🧱 Tre

Antall: 17

Vinduer med sprosser i tradisjonell Kråkerøyhytte-stil, 3-lags energiglass antatt

Vinduer til ny fritidsbolig og anneks, tilpasset tradisjonell byggeskikk

Brannvern Brannvarslere og rømningsutstyr

Brannvarslere i begge etasjer, krav til rømningsvei og brannstige skal oppfylles

Brannsikkerhetstiltak i ny fritidsbolig

Tak Saltak og pulttak

🧱 Tre, takplater som etterligner enkel krum teglstein

Antall: 2

Saltak på hovedhytte, pulttak og flatt tak på anneks, takutstikk tilpasset tradisjonell byggeskikk

Taktekking og takkonstruksjon for nybygg

VVS Bad og kjøkken installasjoner

Nytt bad med vann og avløp, moderne installasjoner

VVS-installasjoner for ny fritidsbolig og anneks

Dører Ytterdører i tre

🧱 Tre

Antall: 5

Dører i tradisjonell stil, tilpasset ny hytte og anneks

Ytterdører for ny fritidsbolig og anneks

Terrasse Uteplass med rekkverk

🧱 Tre og glassrekkverk

Antall: 1

Ny terrasse på ca. 40 m², med lavere høyde og mer diskret utforming enn eksisterende

Terrasse tilknyttet ny fritidsbolig

Fasade Liggende trekledning

🧱 Tre

Liggende trekledning i naturfarge, stedstilpasset, i tråd med Kråkerøyhytte-tradisjon

Fasadebekledning for ny fritidsbolig og anneks

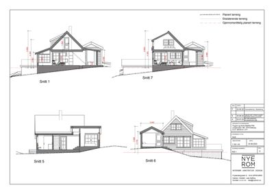
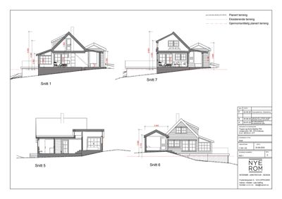
Plantegning

Enebolig 60.0 m²

Etasje 1 60.0 m²

Rom Areal Vinduer Dører
Stue/Kjøkken 101 33.4 m² 2 2
Gang 102 11.3 m² 0 3
Soverom 103 8.3 m² 1 1
Bad 104 5.7 m² 0 1

Fasader

Enebolig

Øst
Materiale
Tre
Taktype
Saltak
Høyde
2.8 m
Mønehøyde
4.3 m
Vinduer
1
Dører
1
Synlige etasjer
1
Nord
Materiale
Tre
Taktype
Saltak
Høyde
3.6 m
Mønehøyde
4.9 m
Vinduer
5
Dører
0
Synlige etasjer
2
Sør
Materiale
Tre
Taktype
Saltak
Høyde
2.8 m
Mønehøyde
4.9 m
Vinduer
4
Dører
1
Synlige etasjer
2
Vest
Materiale
Tre
Taktype
Saltak
Høyde
3.6 m
Mønehøyde
4.9 m
Vinduer
4
Dører
0
Synlige etasjer
2

Anneks

Nord Øst
Materiale
Tre
Taktype
Pulttak
Høyde
2.4 m
Mønehøyde
2.7 m
Vinduer
1
Dører
0
Synlige etasjer
1
Nord Vest
Materiale
Tre
Taktype
Pulttak
Høyde
2.4 m
Mønehøyde
2.7 m
Vinduer
2
Dører
0
Synlige etasjer
1
Sør Vest
Materiale
Tre
Taktype
Pulttak
Høyde
2.4 m
Mønehøyde
2.7 m
Vinduer
1
Dører
0
Synlige etasjer
1
Sør Øst
Materiale
Tre
Taktype
Flatt tak
Høyde
2.4 m
Mønehøyde
2.7 m
Vinduer
0
Dører
0
Synlige etasjer
1

Hendelser

14.04.2026 Uttalelse - eiendom 425/317 - Langøyveien 186 - tilstand på bygg
12.03.2026 Svar på e-post av 12.03.26 - Langøyveien 186 - Eiendom 425/317
11.03.2026 Avslutter sak - Lovlighetskontroll - dispensasjon - riving av eksisterende og oppføring av ny fritidsbolig - eiendom 425/317
10.03.2026 Anmodning om uttalelse - eiendom 425/317 - Langøyveien 186 - Klage rivning og oppføring
10.03.2026 Anmodning om uttalelse - Angående vedtak i klagesak - eiendom 425/317 - Langøyveien 186 - Klage rivning og oppføring
26.02.2026 Vedtak i klagesak - eiendom 425/317 - Langøyveien 186 - klage rivning og oppføring
29.01.2026 Kommentarer i forbindelse med klagesak - Eiendom 425/317 - Langøyveien 186
27.01.2026 Byantikvarens kommentarer til klagesak - Langøyveien 186
23.01.2026 Kopi: Kommentarer til sak - klage riving og oppføring av ny hytte - eiendom 425/317 - Langøyveien 186
09.01.2026 Melding om saksbehandlingstid og mulighet for kommentarer - Eiendom 425/317 - Langøyveien 186 - klage rivning og oppføring hytte
23.12.2025 Oversendelse av klagesak til Statsforvalteren - Langøyveien 186 - Eiendom 425/317
23.12.2025 Særutskrift - PU-sak 125/25 - Langøyveien 186 - Klage på riving av eksisterende bebyggelse og oppføring av ny fritidsbolig og anneks
23.12.2025 Tilleggsopplysninger - Klagesak - Langøyveien 186
23.12.2025 Orientering om politisk vedtak - Langøyveien 186 - Eiendom 425/317
15.12.2025 Henvendelse til planutvalget med kommentarer til klagesak - Langøyveien 186
10.12.2025 Anmodning om lovlighetskontroll av Fredrikstad kommunes vedtak i sak 96/2025 - Lovlighetsklage fra representantene Johannessen, Qvale og Karlsen
09.12.2025 Langøyveien 186 - Klage på riving av eksisterende bebyggelse og oppføring av ny fritidsbolig og anneks
04.12.2025 Oversendelse av saksprotokoll fra fylkesutvalget - eiendom 425/317 - Langøyveien 186
25.11.2025 Særutskrift - PU-sak 108/25 - Krav om lovlighetskontroll av sak PS 96/2025 fra planutvalgets behandling 09.10.2025
20.11.2025 Merknad til Fredrikstad kommunes oversendelse - eiendom 425/317 - Langøyveien 186 - riving av eksisterende bebyggelse og oppføring av ny hytte og anneks
19.11.2025 Tilbakemelding på e-post av 19.11.25 - Langøyveien 186 - Eiendom 425/317
19.11.2025 Angående tegninger til omprosjektert hytte - Uttalelse til klage - Langøyveien 186 - Eiendom 425/317
19.11.2025 Kopi: Anmodning om omgjøring - beslutning om utsatt iverksetting - riving og oppføring av fritidsbolig og anneks - eiendom 425/317
18.11.2025 Uttalelse til klage - Langøyveien 186 - Eiendom 425/317
18.11.2025 Orientering i forbindelse med klagesak - Langøyveien 186