NewConstruction UnderBehandling Fritidsbolig

Ny fritidsbolig med anneks på Målsnesveien 2185, Målselv

📍 Målsnesveien 2185 , 9321 MOEN

Nøkkelinfo

Sakstype
Nybygg
Bygningstype
Fritidsbolig
Bruksareal
48 m²
Kommune
Målselv
Fylke
Troms - Romsa - Tromssa
Gnr / Bnr
1 / 26
Saksnummer
2026/215
Fase
Under behandling

Om byggesaken

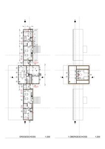
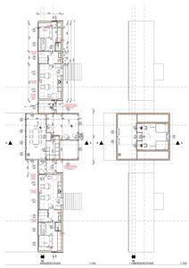
Ny frittliggende fritidsbolig/anneks på ca. 48 m² bebygd areal med flatt tak og lav gesimshøyde på 3,65 meter. Bygget er prefabrikkert av typen Omgi, med naturtilpassede materialer som trekledning og mørk takflate. Det plasseres nord for eksisterende garasje på eiendommen, med god terrengtilpasning og minimal masseforflytning. Fundamentering skjer på peler for å redusere terrenginngrep og sikre reversibilitet. Tiltaket er tilknyttet eksisterende vann- og avløpsnett og benytter eksisterende adkomst. Det søkes dispensasjon fra LNFR-formål og byggeforbud i 100-metersbeltet langs sjø. Tiltaket er planlagt som midlertidig med mulighet for fjerning uten varige inngrep, og det er gjennomført prøvegraving som viser fjellgrunn på stedet, noe som reduserer risiko for kvikkleire. Bygget skal ikke fungere som selvstendig boenhet, men som anneks underordnet eksisterende fritidsbolig.

Produkter og materialer

VVS Sanitærinstallasjoner

Sanitærutstyr og rørinstallasjoner innvendig, byggesett på fabrikk

Sanitærinstallasjoner for anneksets bad og toalett

Elektro Elektriske installasjoner

Elektriske uttak for vannvarmer, WC med hygiene dusj, elektrisk peis og sauna

Elektriske installasjoner tilpasset anneksets funksjoner

Ventilasjon Ventilasjonssystem

Ventilasjon tilpasset anneksets størrelse og bruk

Ventilasjon for inneklima i anneks

Vinduer Standard vinduer

Vinduer med innvendige rullegardiner og myggnett

Vinduer med tilhørende innvendige rullegardiner og myggnett

Tak Flatt tak

Antall: 1

Flatt tak med lav gesimshøyde 3,65 m

Flatt tak med minimal visuell eksponering

Grunnarbeid Veg og grunnarbeider

Graving, sprenging, oppfylling, planering og komprimering, overvannshåndtering

Grunnarbeider for tilrettelegging av byggeplass og overvannshåndtering

Fasade Trekledning

🧱 tre

Naturtilpassede materialer, mørk takflate

Utvendig trekledning og mørk takflate for lav visuell profil

Dører Tilt/svingdører

Antall: 2

To tilt/svingdører med innvendige rullegardiner og myggnett

Ytterdører med funksjonelle løsninger for lys og insektsbeskyttelse

Tømrer Innvendig og utvendig tømrerarbeid

Utførelse av tømrerarbeider for byggesett hytte på fabrikk, inkludert våtrom og luftetthet

Komplett tømrerarbeid for prefabrikkert anneks

Mur Plasstøpte betongkonstruksjoner

🧱 betong

Plasstøpte betongkonstruksjoner for pelefundamentering

Betongarbeid for fundamentering av anneks

Grunnarbeid Pelefundamentering

🧱 betong/stål peler

Fundamentering på peler for minimal terrenginngrep og reversibilitet

Pelefundamentering for å sikre stabilitet og redusere terrenginngrep

Maling Utvendig maling

Mørk farge på tak og naturtilpasset farge på trekledning

Maling for fasade og tak for å sikre visuell tilpasning

Fasader

Hovedbygg

Øst
Høyde
8.1 m
Vinduer
1
Dører
1
Synlige etasjer
4
Vest
Høyde
8.1 m
Vinduer
1
Dører
1
Synlige etasjer
4
Nord
Høyde
8.1 m
Vinduer
1
Dører
1
Synlige etasjer
4
Sør
Høyde
8.1 m
Vinduer
5
Dører
0
Synlige etasjer
4

Hendelser

16.04.2026 1/26 - Endring av tiltak - Søknad om tillatelse til midlertidig tiltak
08.04.2026 Sv: 26/215 - Spørsmål om tidligere korrespondanse / endring av tiltak
19.03.2026 1/26 - Spørsmål om tidligere korrespondanse - endring av tiltak
12.03.2026 1/26 - Svar på tilsvar til varsel om avslag - Søknad om rammetillatelse
24.02.2026 1/26 - Tilsvar til varsel om avslag - Søknad om rammetillatelse
20.02.2026 1/26 - Søknad om rammetillatelse. Varsling av avslag.
12.02.2026 1/26 - Søknad om dispensasjon fra kommuneplanens arealdel - LNFR-formålet og 100-metersbeltet fra sjø etter plan- og bygningslovens § 1-8 samt KPA § 7.2.1. Mangelbrev.
09.02.2026 1/26 - Søknad om rammetillatelse
09.02.2026 1/26 - Søknad om dispensasjon fra kommuneplanens arealdel - LNFR-formålet og 100-metersbeltet fra sjø etter plan- og bygningslovens § 1-8 samt KPA § 7.2.1
23.01.2026 1/26 - Svar på nabovarsel - nytt bygg - fylkesveg 854 - gbnr. 1/26 - Målselv kommune