Photo
Et fotografi av Balsfjorden med fjell i bakgrunnen, brukt som illustrasjon på forsiden av en hovedplan for vannforsyning.
1 / 8
NewConstruction
UnderBehandling
Fritidsbolig
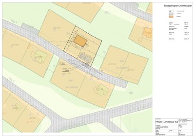
Ny fritidsbolig i Mårfjellveien 20, Meistervik
📍 Mårfjellveien 20 , 9055 MEISTERVIK
Nøkkelinfo
- Sakstype
- Nybygg
- Bygningstype
- Fritidsbolig
- Bruksareal
- 83 m²
- Boenheter
- 1
- Kommune
- Balsfjord
- Fylke
- Troms - Romsa - Tromssa
- Gnr / Bnr
- 87 / 141
- Saksnummer
- 2025/1586
- Fase
- Under behandling
Om byggesaken
Ny fritidsbolig på 83,25 m² BRA med pulttak og tre kledning i moderne arkitektur oppføres på Mårfjellveien 20 i Meistervik. Bygget har en etasje med flatt tak, store vindusflater mot sør for panoramautsikt, og inkluderer terrasse på 39 m². Hytta fundamenteres på fjell med grunnforhold som viser fjell på 0,3 m dybde. Prosjektet inkluderer ny innkjøring og tilknytning til privat vann- og avløpsanlegg. Området har utfordringer med vannforsyning og kapasitet i offentlig vannnett, og det pågår omfattende utredninger og tiltak for å sikre vannforsyning i området, inkludert mulige nye vannkilder og vannbehandlingsanlegg. Det er ikke offentlig vann og avløp tilgjengelig på eiendommen, og privat avløpsanlegg benyttes. Vannforsyningssituasjonen i området er under utvikling med planer om forbedringer i vannkvalitet og kapasitet, men dette påvirker ikke det fysiske byggeprosjektet.
Produkter og materialer
Grunnarbeid
Fundamentering på fjell
🧱 Fjell
Antall: 1
Fjell på 0,3 m dybde under byggegrunn
Fundamentering på fjell med stabile grunnforhold
Fasade
Tre kledning
🧱 Sibirsk lerk
Antall: 1
Vertikalt montert tre kledning i moderne nøytral farge
Fasade med tre kledning i sibirsk lerk, tilpasset moderne arkitektur
VVS
Privat vann- og avløpsanlegg
Antall: 1
Privat avløpsanlegg godkjent av kommunen, tilknytning til privat vannforsyning
Privat vann- og avløpsløsning uten offentlig tilknytning
Grunnarbeid
Innkjøring
Antall: 1
Ny innkjøring til eiendommen
Opparbeidelse av ny adkomst til fritidsboligen
Vinduer
Store vindusflater mot sør
Antall: 3
Store vindusflater for panoramautsikt mot sør
Vinduer med store glassflater for lys og utsikt
Tak
Pulttak
🧱 Ikke spesifisert
Antall: 1
Flatt pulttak
Tak med pulttakform og flatt tak
Fasader
Hovedbygg
Nord
- Materiale
- Tre
- Taktype
- Flatt tak
- Høyde
- 2.8 m
- Mønehøyde
- 4.2 m
- Vinduer
- 3
- Dører
- 0
- Synlige etasjer
- 1
Hendelser
16.04.2026
Tilsvar til forhåndsvarsel
27.02.2026
Uttalelse til klage - avslag på søknad om oppføring av fritidsbolig - 87/141 og 87/144
25.11.2025
Klage over vedtak om avslag på søknad om oppføring av fritidsbolig - 87/141 og 87/144 i Balsfjord kommune
05.11.2025
Vedtak om avslag på søknad om oppføring av fritidsbolig - 87/141
05.11.2025
Korrigering skrivefeil
27.10.2025
Supplering av søknad 87/141 - Mårfjellveien 20
02.10.2025
Ber om supplerende dokumentasjon - 87/141
30.09.2025
Supplering av søknad - 87/141
26.09.2025
Forhåndsvarsel om avslag på søknad - fritidsbolig - 87/141
16.09.2025
Søknad om rammetillatelse 87/141 - Mårfjellveien 20