NewConstruction Soeknad Fritidsbolig

Ny hytte på Monseplass, Bømlo

📍 Monseplass

Nøkkelinfo

Sakstype
Nybygg
Bygningstype
Fritidsbolig
Bruksareal
66 m²
Boenheter
1
Kommune
Bømlo
Fylke
Vestland
Gnr / Bnr
69 / 6
Saksnummer
2026/1748
Fase
Søknad

Om byggesaken

Ny frittstående hytte på 66,1 m² BRA med ett plan, oppført på pilarer for minimal terrenginngrep. Hytten inneholder kjøkken/stue på 30,4 m² med 2 vinduer og 1 dør, to soverom på 6,1 m² hver med vindu og dør, gang på 10,4 m², bad på 5,6 m², badstue på 2,9 m² og bod på 2,1 m² med vindu og dør. Bygget har saltak og trekledning, og fasadene har flere vinduer og dører, samt balkonger på noen sider. Det er planlagt minirenseanlegg for avløp og borehull for vannforsyning, og hytten har pipe. Adkomst skjer via privat vei med parkeringsplass på egen eiendom. Hytten er terrengtilpasset og prosjektert for fritidsbruk i et område uten offentlig vann og avløp.

Produkter og materialer

Trapper Innvendig trapp

Antall: 1

Innvendig trapp i hytten, type ikke spesifisert

Innvendig trapp i hytten.

Grunnarbeid Pilarfundament

🧱 Betong

Bygging på pilarer for minimal terrenginngrep, ingen sprengning

Fundamentering på pilarer for hytten.

VVS Minirenseanlegg

Antall: 1

Minirenseanlegg for avløp, inkludert utslippssøknad og plassering på egen eiendom

Minirenseanlegg for sanitært avløp.

Vinduer Fasadevindu

🧱 Tre/aluminium

Antall: 11

Vinduer i tre med saltakstilpasset utførelse, fordelt på fasader Sør-Vest (3), Nord-Øst (1), Sør-Øst (4), Nord-Vest (3)

Fasadevinduer i tre til hytten, totalt 11 stk.

Maling Utvendig og innvendig maling

Overflater utvendig og innvendig må males, ikke detaljert spesifisert

Maling av treflater og innvendige overflater.

Tak Saltak

🧱 Tre, taktekking ikke spesifisert

Antall: 1

Saltak med gesimshøyde ca 3,45 m og mønehøyde ca 3,46 m

Saltak til hytten med tilhørende takmaterialer.

Pipe Vedovnpipe

🧱 Mur/metal

Antall: 1

Pipe til hytten, tilknyttet vedovn eller peis

Pipe for ildsted i hytten.

Elektro Elektrisk installasjon

Elektriske installasjoner må utføres, ikke detaljert spesifisert

Elektrisk anlegg for hytte.

Bad Bad og badstue innredning

Bad og badstue med nødvendig sanitærutstyr og innredning

Innredning og utstyr til bad og badstue.

Betong Fundament og støttemurer

🧱 Betong

Betongarbeid utført av selvbygger

Betongarbeid til fundament og eventuelle støttemurer.

Tømrer Bygging av hytte

🧱 Tre

Tømrerarbeid utført av tiltakshaver som selvbygger med fagbrev

Tømrerarbeid for oppføring av hytte.

Terrasse Terrasse

🧱 Tre

Antall: 1

Terrasse mot vest, tilknyttet hytten

Utendørs terrasse i tre.

Gulv Innvendige gulv

Gulv i alle rom, ikke detaljert spesifisert

Innvendige gulv i hytte.

VVS Borehull for vannforsyning

Antall: 1

Borehull for forbruksvann i område uten offentlig vannforsyning

Borehull for vannforsyning til hytten.

Dører Ytterdør

🧱 Tre

Antall: 5

Ytterdører i tre, fordelt på etasje og fasader, inkludert inngangsdør og dører til terrasse/balkong

Ytterdører til inngang og utgang til terrasse/balkong.

Fasade Trekledning

🧱 Tre

Trekledning på alle fasader

Trekledning til utvendig fasade.

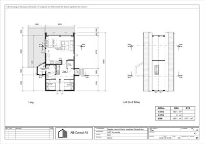
Plantegning

Hytte 66.1 m²

Etasje 1 66.1 m²

Rom Areal Vinduer Dører
Kjøkken/Stue 101 30.4 m² 2 1
Soverom 102 6.1 m² 1 1
Soverom 103 6.1 m² 1 1
Gang 104 10.4 m² 0 3
Bad 105 5.6 m² 0 1
Badstue 106 2.9 m² 0 1
Bod 107 2.1 m² 1 1

Fasader

Hytte

Sør-Vest
Materiale
Tre
Taktype
Saltak
Høyde
3.4 m
Mønehøyde
3.5 m
Vinduer
3
Dører
1
Balkonger
1
Synlige etasjer
1
Nord-Øst
Materiale
Tre
Taktype
Saltak
Vinduer
1
Dører
1
Synlige etasjer
1
Sør-Øst
Materiale
Tre
Taktype
Saltak
Vinduer
4
Dører
0
Balkonger
1
Synlige etasjer
1
Nord-Vest
Materiale
Tre
Taktype
Saltak
Vinduer
3
Dører
1
Balkonger
1
Synlige etasjer
1

Hendelser

16.04.2026 Eitt-trinns søknad - Nytt bygg - bustadføremål - 69/6 - Monseplass