NewConstruction UnderBehandling Fritidsbolig

Ny fritidsbolig med anneks i Murkelivegen 420, Vestre Slidre

📍 Murkelivegen 420 , 2960 RØN

Nøkkelinfo

Sakstype
Nybygg
Bygningstype
Fritidsbolig
Bruksareal
110 m²
Boenheter
1
Kommune
Vestre Slidre
Fylke
Innlandet
Gnr / Bnr
94 / 360
Saksnummer
25/5319
Fase
Under behandling

Om byggesaken

Ny fritidsbolig på 88 m² og tilhørende anneks på 22 m² oppføres på Murkelivegen 420 i Vestre Slidre. Bygningene får ubehandlet kledning som vil gråne naturlig, og taktekking i mørke, matte stålplater med anti-reflekterende behandling. Hytta har et formspråk som ligger lavt i terrenget og spiller på tradisjonell byggeskikk, med store vinduer montert med anti-reflekterende glass. Tomten ligger i et stølsområde med eksisterende bygninger som har tilsvarende taktekking. Det planlegges installasjon av vann og avløp, og bygningene tilpasses terreng og eksisterende bygningsmiljø. Det er gjennomført nabovarsling med positive merknader, og saken har vært gjenstand for dispensasjonsbehandling knyttet til taktekking.

Produkter og materialer

Dører Ytterdører og innerdører

Dører til vindfang, soverom, bad, bod, etc. iht. plantegninger

Dører for ny fritidsbolig og anneks

Tak Takplater i stål, sinusprofilert bølgeblikk

🧱 Stålplater med anti-reflekterende behandling

Mørke, matte takplater som ikke reflekterer, sinusprofilert som eldre bygg i området

Taktekking for fritidsbolig og anneks

Gulv Innvendige gulv

Ikke spesifisert, men vanlig for fritidsbolig

Innvendige gulv i fritidsbolig og anneks

Vinduer Fasadevindu med anti-reflekterende glass

Vinduer utformes og tilpasses bygget, montert med anti-reflekterende glass for å redusere lysrefleksjon

Vinduer for fritidsbolig med hensyn til synlighet og refleksjon

Grunnarbeid Oppmåling og grunnarbeid

Tomten må måles opp før byggestart

Oppmåling og grunnarbeid for nybygg

Tømrer Bygging av grunnmur og treoverbygg

Ansvarlig prosjekterende og utførende er Byggmester Ranheim AS med ansvar for grunnmur og treoverbygg

Tømrerarbeid for ny fritidsbolig og anneks

Fasade Ubehandlet trekledning

🧱 Ubehandlet tre som gråner naturlig

Bygningene føres opp i ubehandlet kledning som vil gråne naturlig over tid

Fasademateriale for ny fritidsbolig og anneks

VVS Vann og avløp

Planlagt installasjon av vann og avløp, søknad for avløp kommer i egen søknad

Vann- og avløpsinstallasjon for fritidsbolig

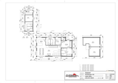
Plantegning

Enebolig 280.0 m²

Etasje 1 180.0 m²

Rom Areal Vinduer Dører
Stue 101 32.0 m² 2 1
Kjøkken 102 8.4 m² 1 1
Soverom 1 103 8.3 m² 1 1
Soverom 2 104 10.4 m² 1 1
Bad 105 5.1 m² 0 1
Vindfang 106 9.1 m² 1 1
Wc 107 1.3 m² 0 1
Gang 108 12.0 m² 0 0

Etasje 0 100.0 m²

Rom Areal Vinduer Dører
Bod 001 6.1 m² 1 1
Badstu 002 3.9 m² 0 1
Soverom 003 8.3 m² 1 1
Gang 004 80.7 m² 0 0

Fasader

Enebolig

Nord
Materiale
Tre
Taktype
Saltak
Vinduer
2
Dører
1
Synlige etasjer
1
Sør
Materiale
Tre
Taktype
Saltak
Vinduer
2
Dører
1
Synlige etasjer
1
Øst
Materiale
Tre
Taktype
Saltak
Vinduer
2
Dører
1
Synlige etasjer
1
Vest
Materiale
Tre
Taktype
Saltak
Vinduer
2
Dører
1
Synlige etasjer
1

Hendelser

14.04.2026 Gbnr. 94/1/360/0 - Saksframlegg - taktekking til ny behandling
20.03.2026 Gbnr. 94/1/360/0 -Klageavgjørelse - taktekking på ny fritidsbolig
08.12.2025 Gbnr. 94/1/360/0 - Tilføring av informasjon
02.12.2025 Førebels melding om handsaminga hos Statsforvaltaren
25.11.2025 Gbnr. 94/1/360/0 - Taktekking - Dispensasjon frå kommuneplanens arealdel. Oversending av sak til endelig avgjerd.
27.10.2025 Gbnr. 94/1/360/0 - Saksframlegg - Klage på formannskapets vedtak
23.10.2025 Gbnr. 94/1/360 - Saksfremlegg - Dispensasjon frå kommuneplanens arealdel - Taktekking
23.10.2025 Gbnr. 94/1/360/0 - Klage på vedtak
23.09.2025 Gbnr. 94/1/360 - Saksfremlegg - Dispensasjon frå kommuneplanens arealdel - Taktekking
12.09.2025 Uttale - dispensasjon - Vestre Slidre 94/1/360 - Murkelivegen 420 - taktekking
05.09.2025 Gbnr. 94/1/360/0 - Uttale til disp sak
12.08.2025 Gbnr. 94/1/360/0 - Høyring om dispensasjon frå kommuneplanens arealdel - Taktekking
04.08.2025 Gbnr. 94/1/360/0 - Søknad om tillatelse i ett trinn, søknad om dispensasjon, Murkelivegen 420