NewConstruction UnderBehandling Fritidsbolig

Ny fritidsbolig med vei og minirenseanlegg i Nedstrandsvegen 221

📍 Nedstrandsvegen 221 , 5567 SKJOLDASTRAUMEN

Nøkkelinfo

Sakstype
Nybygg
Bygningstype
Fritidsbolig
Bruksareal
124 m²
Boenheter
1
Kommune
Tysvær
Fylke
Rogaland
Gnr / Bnr
124 / 92
Saksnummer
2024/2190
Fase
Under behandling

Om byggesaken

Ny fritidsbolig over to plan med et bebygd areal på 89,8 m² og totalt bruksareal på 124,4 m² oppføres i Nedstrandsvegen 221. Bygningen har saltak med flatt tak på tverrfløy, og fasaden er i hovedsak tre med liggende bordkledning og enkelte naturgrå felt. Boligen inneholder stue, kjøkken, gang, bad, toalett og flere soverom fordelt på to etasjer. Eiendommen får privat vannforsyning og tilknytning til privat felles avløpsanlegg med minirenseanlegg. Det er godkjent opparbeidelse av tilkomstvei og teknisk plan for vei og avløp. Overvann skal infiltreres eller fordrøyes på tomten. Bygget er tilpasset terrenget med minimal terrenginngrep, og uteområder etableres med markterrasser og grøntareal. Det er én innvendig trapp i bygget. Fritidsboligen oppfyller reguleringsplanens krav til høyde, utnyttelse og terrengtilpasning.

Produkter og materialer

Fasade Liggende og stående bordkledning

🧱 Tre, naturgrå felter

Hovedsakelig liggende bordkledning med enkelte stående felter i naturgrå farge

Fasadematerialer for fritidsboligen

Trapper Innvendig trapp

Antall: 1

Innvendig trapp mellom to etasjer

Trapp for intern adkomst mellom etasjene i fritidsboligen

Dører Ytterdører og innerdører

🧱 Tre

Antall: 9

Ytterdører og innerdører i tre, totalt 9 dører

Dører til inngang og innvendige rom i fritidsboligen

Tak Saltak med flatt tak på tverrfløy

🧱 Taktekking matt mørk grå antrasitt eller lignende

Antall: 1

Saltak med flatt tak på tverrfløy, taktekking i matt mørk grå antrasitt

Taktekking og takkonstruksjon for fritidsboligen

Grunnarbeid Opparbeidelse av vei og turveg

Antall: 1

Opparbeidelse av tilkomstvei i tråd med reguleringsplan og teknisk plan, inkludert dispensasjon for LNF-område

Veiarbeid for adkomst til fritidsboligen

Maling Utvendig og innvendig maling

Maling av fasade og innvendige flater

Vinduer Fasadevindu

🧱 Tre

Antall: 16

Fasadevindu i tre, totalt 16 vinduer fordelt på to etasjer

Vinduer til fritidsboligens fasader, hovedsakelig trevinduer

Elektro Elektrisk installasjon

Elektriske installasjoner i fritidsboligen

Gulv Innvendige gulv

Innvendige gulv i fritidsboligen, materialvalg ikke spesifisert

VVS Privat vannforsyning og minirenseanlegg

Antall: 1

Privat vannverk tilkoblet, minirenseanlegg type Klaro 40 pe med utslipp til sjø, godkjent av kommunen

Vann- og avløpssystem for fritidsboligen med privat vann og felles minirenseanlegg

Betong Grunnmur og fundamentering

🧱 Betong

Grunnmur og fundamentering for fritidsboligen i henhold til tegninger

Betongarbeid for fundament og grunnmur

Terrasse Markterrasse

Markterrasse og grøntareal foran fritidsboligen

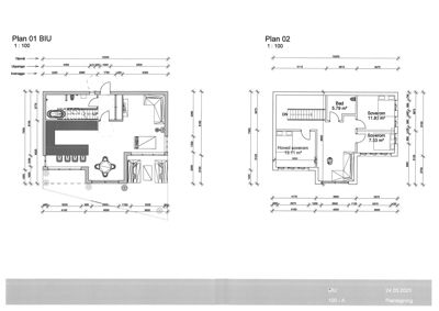
Plantegning

Enebolig 0.0 m²

Etasje 1 0.0 m²

Rom Areal Vinduer Dører
Stue 101 0.0 m² 3 1
Kjøkken 102 0.0 m² 0 1
Gang 103 0.0 m² 0 1
Bad 104 0.0 m² 0 1
Toalett 105 0.0 m² 0 1
Soverom 106 0.0 m² 0 1
Soverom 107 0.0 m² 0 1
Soverom 108 0.0 m² 0 1

Etasje 2 0.0 m²

Rom Areal Vinduer Dører
Stue 201 0.0 m² 3 1
Kjøkken 202 0.0 m² 0 1
Gang 203 0.0 m² 0 1
Bad 204 0.0 m² 0 1
Toalett 205 0.0 m² 0 1
Soverom 206 0.0 m² 0 1
Soverom 207 0.0 m² 0 1
Soverom 208 0.0 m² 0 1

Fasader

Enebolig

Sørvest
Materiale
Tre
Taktype
Saltak
Høyde
5.3 m
Mønehøyde
8.5 m
Vinduer
10
Dører
1
Synlige etasjer
2
Nordvest
Materiale
Tre
Taktype
Saltak
Høyde
5.3 m
Mønehøyde
8.5 m
Vinduer
0
Dører
1
Synlige etasjer
2
Nordøst
Materiale
Tre
Taktype
Saltak
Høyde
5.3 m
Mønehøyde
8.5 m
Vinduer
0
Dører
2
Synlige etasjer
2
Sørøst
Materiale
Tre
Taktype
Saltak
Høyde
5.3 m
Mønehøyde
8.5 m
Vinduer
3
Dører
1
Synlige etasjer
2

Hendelser

16.04.2026 Gbnr 124/92 - Søknad om igangsettingstillatelse - fritidsbolig - Nedstrandsvegen 221
12.12.2024 Vedtak om rammetillatelse - fritidsbolig - gnr. 124 bnr. 92 - Nedstrandsvegen 221
01.11.2024 Foreløpig svar på søknad - Fritidsbolig - gnr. 124 bnr. 92 - Nedstrandsvegen 221
25.10.2024 Ønsker å endre søknadstype - Fritidsbolig - gnr. 124 bnr. 92 - Nedstrandsvegen 221
18.10.2024 Ber om utsatt frist for tilbakemelding på mangler - Fritidsbolig - gnr. 124 bnr. 92 - Nedstrandsvegen 221
18.10.2024 Utsatt frist for tilbakemelding på mangler - Fritidsbolig - gnr. 124 bnr. 92 - Nedstrandsvegen 221
06.09.2024 Fortsatt mangler ved søknaden - Fritidsbolig - gnr. 124 bnr. 92 - Nedstrandsvegen 221
04.09.2024 Supplering av søknad - Fritidsbolig - gnr. 124 bnr. 92 - Nedstrandsvegen 221
10.06.2024 Tilbakemelding om mangler - Fritidsbolig - gnr. 124 bnr. 92 - Nedstrandsvegen 221
31.05.2024 Søknad - Fritidsbolig - gnr. 124 bnr. 92 - Nedstrandsvegen 221