Photo
Fotografi av en liten hytte i et fjellandskap med to personer foran.
1 / 48
NewConstruction
Soeknad
Fritidsbolig
Ny hytte med riving på Mossetra 51, Ørsta
📍 Øvrestien 4 , 6154 ØRSTA
Nøkkelinfo
- Sakstype
- Nybygg
- Bygningstype
- Fritidsbolig
- Bruksareal
- 35 m²
- Boenheter
- 1
- Kommune
- Ørsta
- Fylke
- Møre og Romsdal
- Gnr / Bnr
- 18 / 127
- Saksnummer
- 2026/7803
- Fase
- Søknad
Om byggesaken
Ny fritidsbolig på 34,56 m² oppføres på Mossetra 51 i Ørsta, som erstatter en eksisterende hytte som rives. Hytta har en etasje med stue på 28 m² og et soverom på 7 m², totalt 4 vinduer og 2 dører. Bygget har saltak og trekledning, og det er pipe på alle fasader. Tomten ligger i et område med aktsomhet for flere skredtyper og flom, men omfattende skredfarevurderinger og flomvurderinger viser at tiltaket tilfredsstiller krav til sikkerhet i trygghetsklasse S2 og F2. Det er én trapp i bygget, og det er ingen balkonger. Riving av eksisterende hytte utføres som egeninnsats av tiltakshaver, mens oppføring av ny hytte utføres av ansvarlig entreprenør.
Produkter og materialer
Pipe
Vedovnspipe
Antall: 1
Pipe på hytta
Elektro
Elektrisk anlegg
Antall: 1
Elektrisk anlegg for hytte
Tak
Saltak
🧱 Tretak med antatt taktekking (ikke spesifisert)
Antall: 1
Saltak på hytta med pipe
Tømrer
Oppføring av hytte
Antall: 1
Tømrerarbeid for oppføring av ny hytte
Trapper
Innvendig trapp
Antall: 1
Innvendig trapp i hytta
VVS
Sanitær og vanninstallasjoner
Antall: 1
VVS-installasjoner for hytte
Vinduer
Takvindu
Antall: 1
Takvindu i stue (antatt fra fasadetegninger og vanlig for hytter med saltak)
Vinduer
Fasadevindu
🧱 Tre eller tilsvarende
Antall: 6
Fasadevindu i tre på hytta, fordelt på stue og soverom
Grunnarbeid
Fundamentering og grunnarbeid
Antall: 1
Grunnarbeid for ny hytte, inkludert fundamentering
Dører
Ytterdør
🧱 Tre eller tilsvarende
Antall: 2
Ytterdører til hytta, en på sørfasade og en på vestfasade
Maling
Utvendig og innvendig maling
Antall: 1
Maling av treverk utvendig og innvendig
Fasade
Kledning
🧱 Tre
Antall: 1
Trekledning på alle fasader
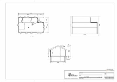
Plantegning
Hytte 35.0 m²
Etasje 1 35.0 m²
| Rom | Areal | Vinduer | Dører |
|---|---|---|---|
| Stue 101 | 28.0 m² | 3 | 1 |
| Sove 102 | 7.0 m² | 1 | 1 |
Fasader
Enebolig
Nord
- Materiale
- Tre
- Taktype
- Saltak
- Vinduer
- 5
- Dører
- 0
- Synlige etasjer
- 1
Sør
- Materiale
- Tre
- Taktype
- Saltak
- Vinduer
- 2
- Dører
- 1
- Synlige etasjer
- 1
Vest
- Materiale
- Tre
- Taktype
- Saltak
- Vinduer
- 6
- Dører
- 1
- Synlige etasjer
- 1
Øst
- Materiale
- Tre
- Taktype
- Saltak
- Vinduer
- 2
- Dører
- 0
- Synlige etasjer
- 1
Hendelser
22.04.2026
Vurdering av aktsemdområde for flaum - Gnr 18 bnr 127 - hyttepunkt 51
17.04.2026
Fagkunnig vurdering av aktsemdområde for flaum- Mossetra 51 - Gnr 18 bnr 127 - hyttepunkt 51
16.04.2026
Avklaring aktsemdområde for flaum
13.04.2026
Søknad om tillatelse i ett trinn