NewConstruction Soeknad Fritidsbolig

Ny fritidsbolig med riving på Storstilen 202, Mesnali

📍 Øyungen 1 , 2387 BRUMUNDDAL

Nøkkelinfo

Sakstype
Nybygg
Bygningstype
Fritidsbolig
Bruksareal
54 m²
Boenheter
1
Kommune
Ringsaker
Fylke
Innlandet
Gnr / Bnr
527 / 1
Saksnummer
26/5639
Fase
Søknad

Om byggesaken

Ny fritidsbolig på 53,8 m² BRA med saltak og trepanel, oppføres på tomt hvor gammel seterhus på ca. 29 m² rives. Bygget har to soverom, stue/spisestue, kjøkken, teknisk bod, gang og trapp, samt hems for lagring på 14,7 m². Takvinkel er 30 grader med sort shingel som taktekking. Bygget har flere vinduer og dører i tre, pipe og balkonger på sør- og vestfasade. Bygget plasseres i LNF-område med krav til setring og tilpasning til eksisterende bebyggelse. Det er planlagt grunnarbeid, mur, betong, isolasjon, tømrerarbeid, tekniske installasjoner og utvendige terrengtilpasninger.

Produkter og materialer

Pipe Pipe og ildsted

Antall: 1

Montering av pipe og ildsted

Pipe og ildsted for ny fritidsbolig

Ventilasjon Ventilasjonssystem

Antall: 1

Ventilasjon iht. TEK17 krav

Ventilasjon for ny fritidsbolig

Dører Ytterdører i tre

🧱 Tre

Antall: 7

Dører i stue, kjøkken, soverom, gang og teknisk bod

Ytterdører til ny fritidsbolig

Vinduer Fasadevindu i tre

🧱 Tre

Antall: 11

Vinduer i stue, soverom og teknisk bod, totalt 11 vinduer

Vinduer til ny fritidsbolig

Tak Saltak med shingel

🧱 Shingel, sort

Antall: 1

Takvinkel 30 grader, taktekking med sort shingel

Taktekking for ny fritidsbolig

Terrasse Balkong/terrasse i tre

🧱 Tre

Antall: 2

Balkonger på sør- og vestfasade

Utendørs balkonger i tre

Riving Riving av eksisterende bygg

Antall: 1

Riving av eksisterende seterhus på ca. 29 m²

Riving av gammel fritidsbolig/seterhus

VVS Vann og avløp

Antall: 1

Ingen innlagt vann, men tilrettelegging for vann og avløp

VVS-installasjoner for fritidsbolig uten innlagt vann

Grunnarbeid Grunnarbeid og oppmåling

Antall: 1

Utmåling, utskikking av tiltak, veg- og grunnarbeider, landskapsutforming

Grunnarbeid for ny hytte inkl. oppmåling og terrengtilpasning

Gulv Innvendige gulvflater

Antall: 1

Gulv i stue, soverom, kjøkken og gang

Innvendige gulvflater i ny fritidsbolig

Bad Bad og sanitærrom

Antall: 1

Bad utgår ifølge tegninger, men teknisk bod er inkludert

Sanitærrom i teknisk bod, bad ikke planlagt

Tømrer Tømrerarbeid og montering av elementer

🧱 Tre

Antall: 1

Montering av elementer på byggeplass, isolering, plastring og utlekting

Tømrerarbeid for oppføring av ny hytte i tre

Elektro Elektriske installasjoner

Antall: 1

Klart for elektroinstallasjoner

Elektriske installasjoner i ny fritidsbolig

Isolasjon Isolasjon i vegger og tak

Antall: 1

Isolasjon iht. TEK17 krav for fritidsbolig

Isolasjon for vegger, tak og gulv

Mur Fundament og murarbeid

Antall: 1

Prosjektering og utførelse av mur og betongarbeider, radonsperre

Fundamentering og murarbeid for ny fritidsbolig

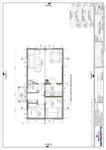
Plantegning

Hems 53.8 m²

Etasje 1 53.8 m²

Rom Areal Vinduer Dører
Apent ned 45.7 m² 0 0
Hems for lagring 14.7 m² 0 0

Enebolig 53.8 m²

Etasje 1 53.8 m²

Rom Areal Vinduer Dører
Stue/spisestue 101 22.5 m² 4 1
Kjøkken 102 3.9 m² 0 1
Soverom 1 103 6.8 m² 2 1
Soverom 2 104 4.5 m² 2 1
Gang 105 4.4 m² 0 3
Teknisk bod 106 1.9 m² 1 1
Trapp 107 2.6 m² 0 0

Fasader

Enebolig

Sør
Materiale
Tre
Taktype
Saltak
Høyde
5.0 m
Mønehøyde
4.2 m
Vinduer
2
Dører
0
Balkonger
1
Synlige etasjer
2
Vest
Materiale
Tre
Taktype
Saltak
Høyde
5.0 m
Mønehøyde
4.2 m
Vinduer
2
Dører
0
Balkonger
1
Synlige etasjer
2
Nord
Materiale
Tre
Taktype
Saltak
Høyde
5.0 m
Mønehøyde
4.2 m
Vinduer
2
Dører
1
Synlige etasjer
2
Øst
Materiale
Tre
Taktype
Saltak
Høyde
5.0 m
Mønehøyde
4.2 m
Vinduer
2
Dører
1
Synlige etasjer
2

Hendelser

15.04.2026 Søknad om tiltak er i LNF område med generelt byggeforbud - Gbnr 527/1, Storstilen 202, Mesnali
23.03.2026 Søkand om tillatelse - Riving av fritidsbolig, oppføring av ny, Gbnr 527/1, Storstilen 202, Mesnali